Немного кантри в обыденность Подмосковья
Проект был разработан для большой семьи на западе Подмосковья.
Стиль дома кантри
Дом двухэтажный с мансардным этажом
Цветовое решение: светлые стены с коричневой крышей и цоколем, контрастный камень в акцентах
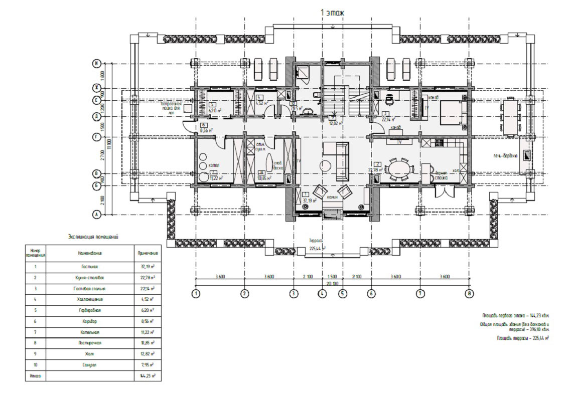
Планировочное решение:
на 1 этаже: гостиная-кухня-столовая с выходом на террассу, спальня, с.у.
на 2 этаже: 3 спальных комнаты с с.у. и гардеробными, кабинет
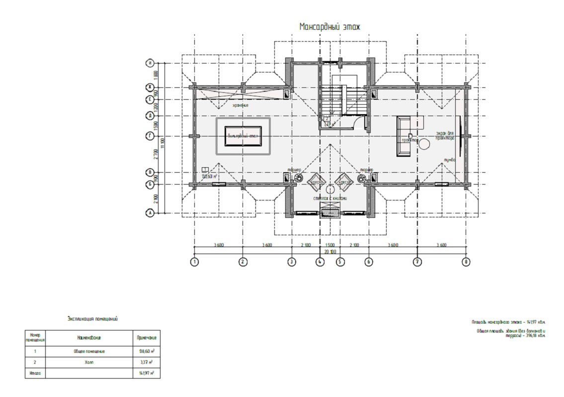
на мансардном этаже: комната отдыха с бильярдом и кинотеатром
Несущие конструкции:
фундамент - ж.б. плита
перекрытие - деревянное
стены - клееный брус
крыша - деревянный каркас
Фасады: цоколь - камень, стены декоративная пропитка
Отзывы
Пока отзывов нет. Будьте первым.












