Множественный выбор
Выбрать номинацию

Обыкновенный лофт

Дом состоит из основной двухэтажной (с цокольным этажом) и вспомогательной одноэтажной частей, которые соединены между собой закрытым переходом на первом этаже. В основной части, имеющей в плане форму, близкую к квадрату, размещаются: на первом этаже — центральный вход с высоким крыльцом, прихожая, большой холл, кухня-столовая, гостевая спальня, гардеробная, гостевой санузел и гостиная, уровень пола которой расположен ниже остальных помещений. Это придает гостиной еще больший визуальный объем и позволяет выходить на террасу почти на уровне земли — такой прием, как и панорамное остекление, позволил связать интерьер дома с ландшафтом. Камины в гостиной и на террасе имеют общую шахту для дымоходов.

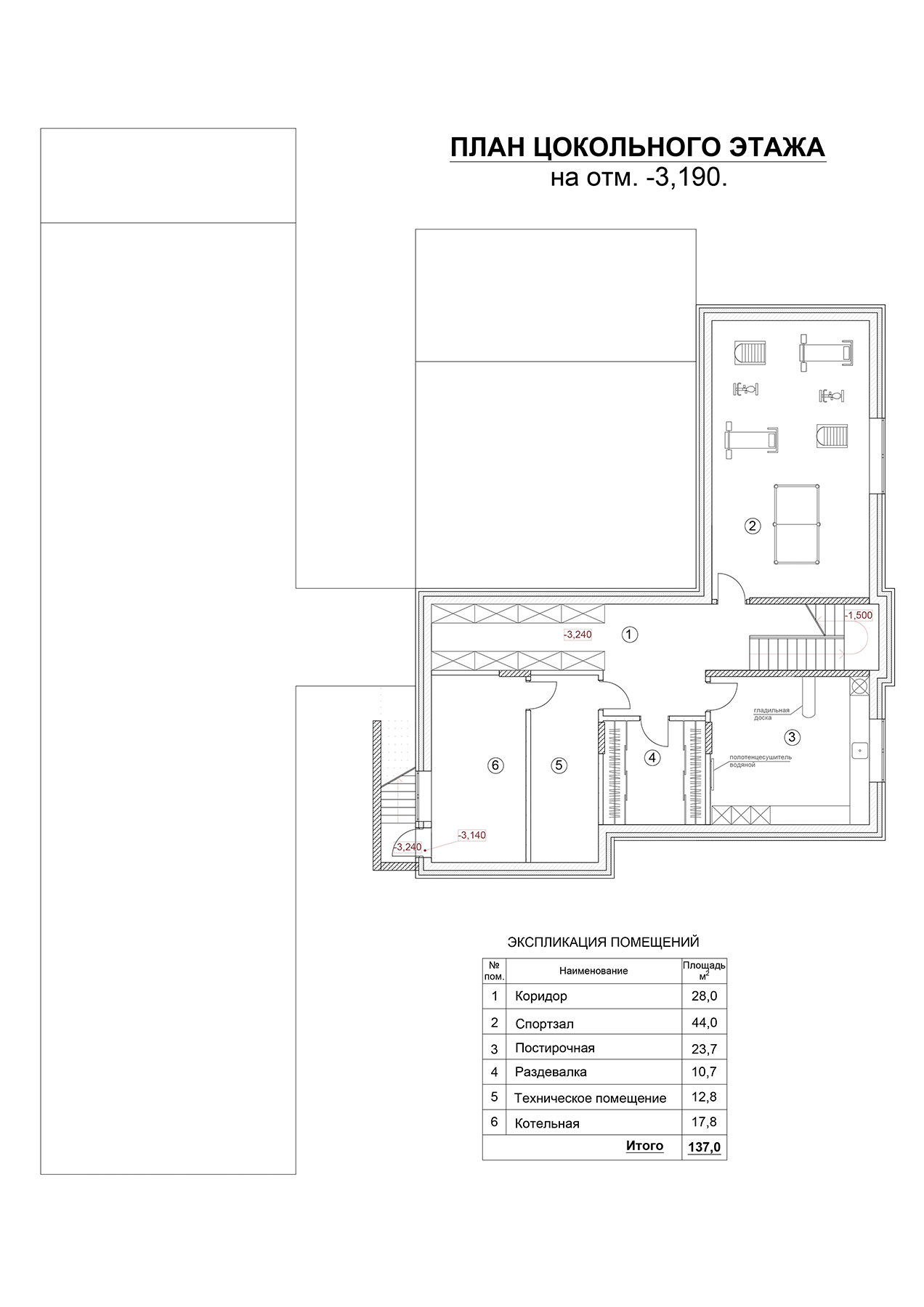
На втором этаже основной части дома, куда ведет одномаршевая лестница, расположены: хозяйская спальня с высоким потолком до кровли и балконом, две детские и еще одна спальня, а также два санузла и большая гардеробная. На цокольном этаже спланированы: техпомещение котельной, постирочная, кладовая и гардеробная, а также тренажерный зал.

Во вспомогательной одноэтажной части дома, пол которой находится на уровне гостиной, размещены: гараж на три машины, кабинет хозяина и релакс-комплекс с купелью, сауной и большой комнатой отдыха, откуда можно выйти на террасу, соединенную с террасой гостиной.

Дом монолитно-кирпичный с деревянной конструкцией каркаса кровли. Кровля многоскатная.

Фасады выдержаны в стиле лофт с применением в отделке облицовочного кирпича, плитки, дерева и листового металла. Декоративный пояс по периметру здания является важным конструктивным и эстетическим элементом композиции.

Выступы объемов основной части постройки придают ему еще большую архитектурную выразительность.

Выставка конкурсных проектов
ВЫСТАВКА КРАСИВЫЕ ДОМА - 2026

ФОТОГАЛЕРЕЯ
ЭКСПОЗИЦИИ
КОНКУРСНЫХ
ПРОЕКТОВ

КАК ЭТО БЫЛО
Выставка конкурсных проектов проходит дважды в год (Весна | Осень)

Отзывы

Можно использовать **жирный**, *курсив*, [ссылку](https://example.com), списки через - или 1.
Пока отзывов нет. Будьте первым.