Одноэтажная вилла
Одноэтажная вилла предназначена для круглогодичного проживания.
Основная концепция в проектировании — это стремление стереть границы между интерьером и экстерьером дома, расположена в молодом сосновом бору, за счет панорамного остекления, перетекающего открытого пространства и натуральных природных материалов: дерева, камня — и бетона. За счет использования в конструктивном каркасе дома монолитного железобетона достигается легкость и воздушность архитектурной формы.
Обилие остекления, открытые бетонные конструкции, сочетание лаконичной формы в отделке из белой штукатурки создают образ здания в стиле архитектурного минимализма. Планировочная структура здания строго учитывает рациональность и эффективное использования всего пространства, инсоляцию всех помещений. В планировке грамотно распределены помещения с учетом движения солнца и сторон света.
Дизайн проект Light Villa реализован в стиле экоминимализм. В интерьере реализована философия, в которой выражено стремление жить комфортно, просто и в гармонии с собой и окружающей средой.
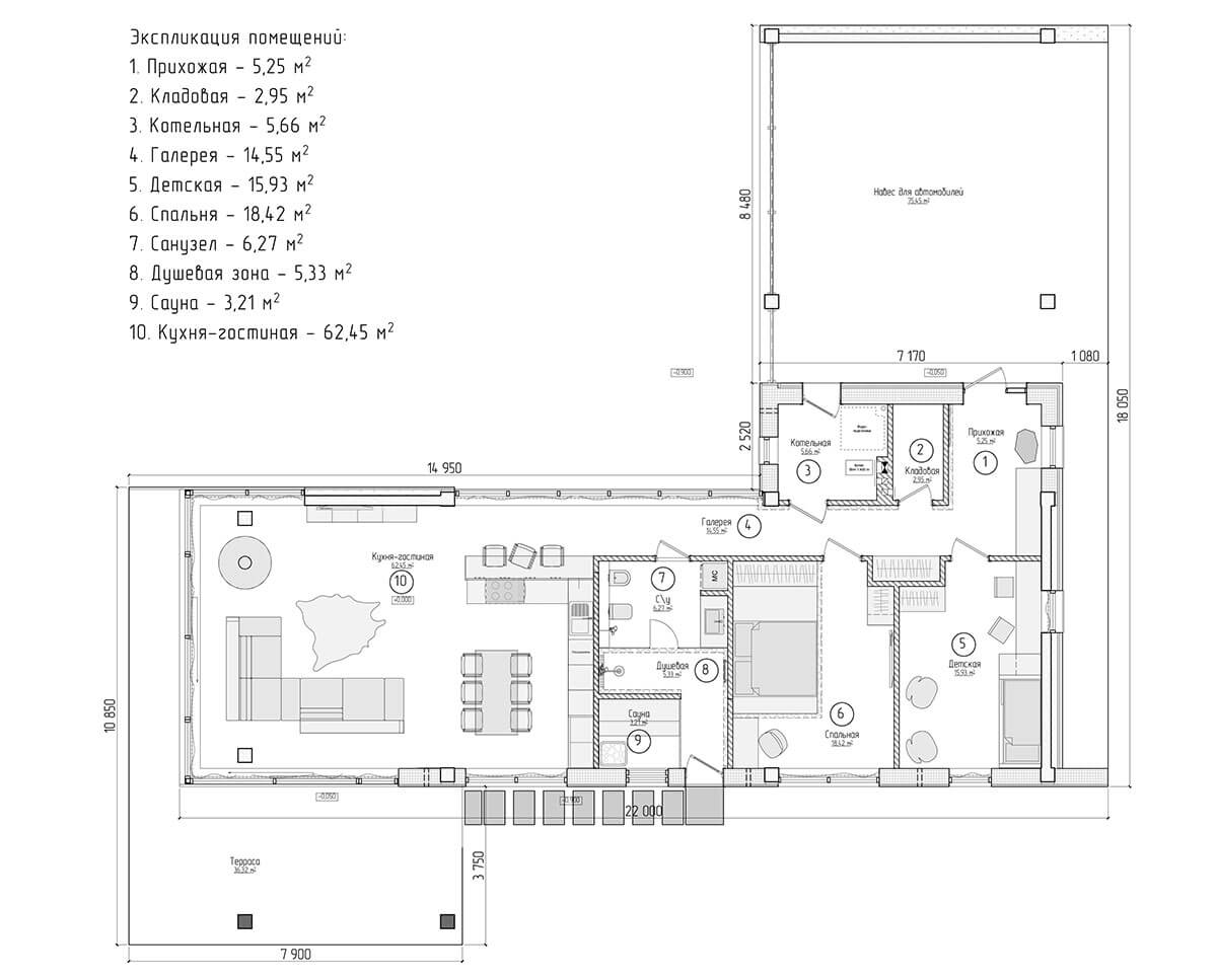
Функциональный состав проекта включает следующие помещения:
- кухню-столовую, совмещенную с гостиной. Зонирование осуществляется при помощи потолка, который заканчивается на границе барной стойки, совмещенной с рабочей поверхностью, линией стола и непосредственно самим остеклением, которое создает четкую линию разграничения. Кухонный стол — срез индонезийского дерева суар;
- большой санузел, включающий в себя душевую и сауну с видом на прекрасный природный ландшафт. Столешница под раковину и полки в нише выполнены из канадского дуба, а раковина сделана из речного камня;
- спальню с рабочей зоной. Кровать встроена в парящий над плоскостью пола подиум;
- детскую, в которой также организовано рабочее пространство. Вдоль стены размещена двухъярусная кровать. Пространство комнаты имеет достаточную площадь для развлечения и отдыха;
- прихожую с галереей. Места для хранения организованы с помощью систем скрытого монтажа мебели и выглядят как продолжение стены. Вместо пуфа — мраморизованный известняк;
- котельную с дополнительным выходом на улицу, что очень удобно, если владелец находится вне дома. Охрана или обслуживающая организация всегда будет иметь доступ, не заходя при этом в дом;
- кладовую, в которой располагается система хранения и электрощитовая для обслуживания технологий умного дома.
Основной изюминкой проекта является сауна с выходом на террасу и подвесной камин, который создает атмосферу места и уют.












