Охтинский Парк
Назначение объекта: хаммам в велнес-зоне. Отдельно стоящее здание, спа-комплекс из монолитного бетона.
Дизайн хаммама отвечает общей современной стилистике комплекса. В состав оборудования вошли все доступные опции.
Использованные отделочные материалы:
плитка Casalgrande Padana brown,
декоративные элементы Aparici decor silver,
мозаика Jasba senja maple на потолке,
мозаика Jasba mix peat-grey + Glamour silver на скамьях.
В отделке хаммама применяется мозаика, набранная индивидуально для этого проекта.
Панорамное остекление Palme (Австрия) по индивидуальным размерам, высотой 2000 мм. Двери открываются наружу и внутрь. Стеклянный фасад визуально расширяет пространство и подчеркивает общий стиль в оформлении спа-зоны.
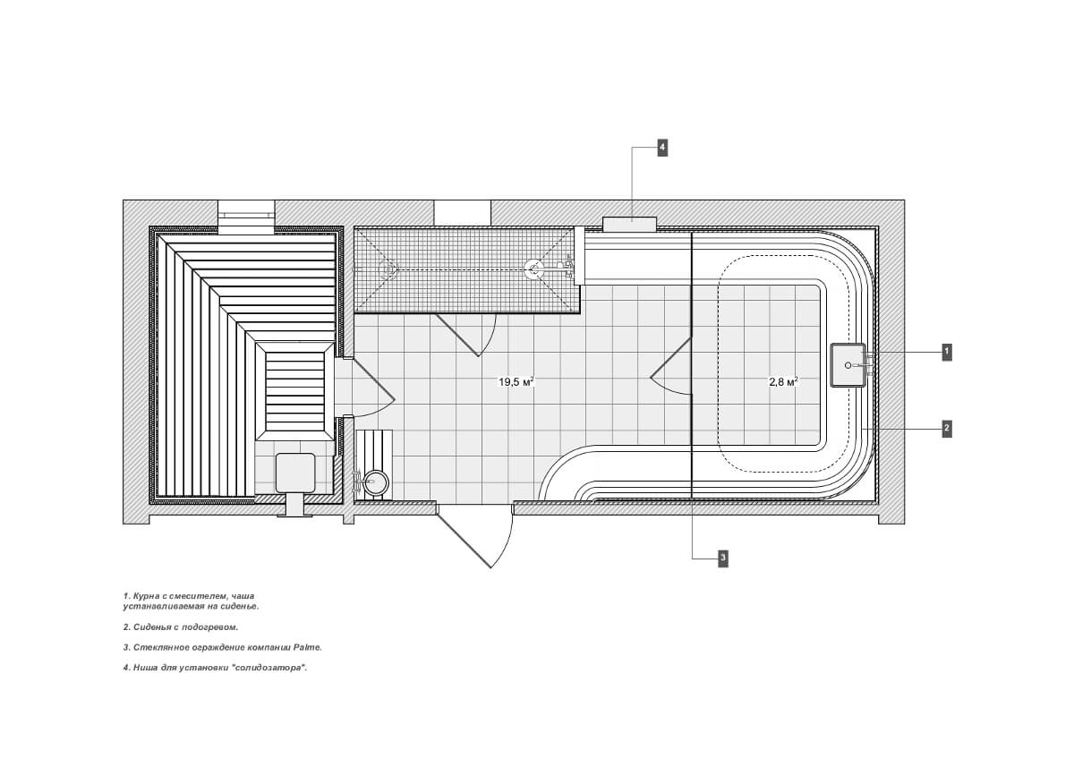
В хамамме и зоне отдыха лавки с подогревом. Лавки хаммама по замыслу дизайнера проходит сквозь стеклянное ограждение.
Выносное паровое оборудование Repabad (Германия). Парогенератор 15 кВт с автоматической декальцинацией. Опции: подсветка, ароматерапия, хромотерапия, соледоз, аудиосистема, система форсунок тумана, смеситель; техническая зона расположена над потолком хаммама, что позволило использовать всю площадь комплекса более эффективно. Доступ к оборудованию через скрытый люк из основного помещения.
Сводчатый потолок — современный тренд в строительстве хаммамов.
Подсветка состоит из трех независимых систем: заводская система освещения Repabad, звездное небо из 300 элементов с эффектом мерцания и LED закарнизная и подсветка полков. Каждая из систем имеет свой собственный набор сцен. Их сочетание дает бесконечно большое количество вариантов освещения.






