Omega House
В живописном подмосковном поселке архитекторы построили изысканный дом, в архитектуре которого присутствуют черты конструктивизма, а в интерьере — экологические мотивы.
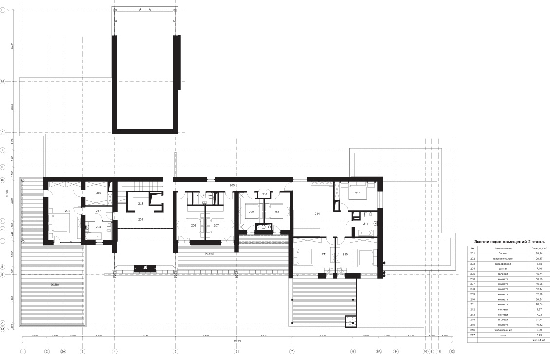
Главной задачей было максимально освоить территорию. Благодаря нестандартным объемно-планировочным решениям под застройку удалось выделить практически треть участка.
Активное применение скрытой симметрии, использование простых геометрических форм и строгих линий, подчеркнутых изящными деталями, сделали облик дома неповторимым.
Смещение главного входа влево относительно центральной оси позволило сделать центром всей композиции просторную двусветную гостиную. Деревянная рейка и мозаика из натурального тика, горизонтально смонтированные по стенам, создают ритм в отделке помещений и перекликаются с зашивкой фасадов горизонтальным планкеном. Этот же прием используется и в других помещениях дома — похожие перегородки и фрагменты отделки стен применены в оформлении интерьера.











