Онега
Ввиду того, что строительный рынок в России развивается, с одной стороны, очень стремительно, а с другой — крайне хаотично, проблемой современной архитектуры, на наш взгляд, стало отсутствие качественных проектов для среднего и эконом-класса. Застройщики частных домов площадью до 250–300 м² зачастую не могут позволить себе услуги хорошего архитектора, чьи работы стоят дорого.
Единственным выходом из этой ситуации нам видится создание коллекций типовых проектов, которые заказчики могли бы приобретать по умеренной цене благодаря их многоразовому использованию.
Пока неясно, кто будет создавать такие серии — крупные застройщики или частные архитектурные мастерские. Мы решили не ждать и сделать это своими силами, за свой счёт, на уровне эскизных проектов. И рады представить две серии типовых проектов под названиями «Русский Север» и «Русская Усадьба».
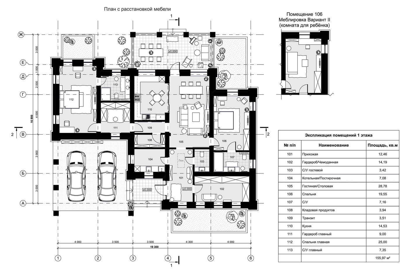
«Онега-155» — это одноэтажный дом площадью 155 квадратных метров, который сочетает в себе загородный комфорт и мотивы традиционной кирпичной усадьбы из тихой провинции, переосмысленной на современный лад.
Дом идеально подходит для семьи из двух взрослых и ребёнка или для пары с пожилыми родителями.
Не выходя из-под навеса для двух автомобилей, можно пройти ко входу в дом. Просторная светлая прихожая с большой гардеробной/чемоданной и гостевым санузлом ведёт в гостиную. Из гостиной можно выйти на крытую уютную уличную террасу с видом на внутренний двор. В прихожей находится котельная/постирочная и кладовая продуктов при кухне. Кухня может быть изолирована от гостиной за счёт сдвижных дверей. Личные комнаты расположены в разных концах дома, что обеспечивает приватность пространств. Спальни имеют отдельные санузлы, зоны хранения одежды и рабочие места. В мастер-спальне также спроектированы французские балконы с видом на сад. В доме предусмотрен люк на чердак для дополнительного хранения вещей. Минимальное количество коридоров и оптимизированный план помогают использовать каждый квадратный метр усадьбы нового времени для жизни.
Стены дома кирпичные, с отделкой камнем. Крыша дома многоскатная, кровля из фальцованной оцинкованной стали.








