Особняк Данилова
Дом построен в авангардной стилистике. Простейшие, казалось бы, формы, тем не менее они довольно трудны и в проектировани, и в строительстве.
Большие остекленные поверхности фасада работают на контрасте с массивными горизонтальными объемами второго этажа, выступающими консольно. Опорные колонны круглого сечения, окрашенные в темный цвет, не привлекают к себе лишнего внимания.
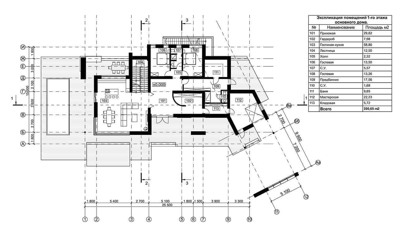
Дом сдвинут к границе с соседями, а гараж развернут под углом к основному корпусу, в целом план дома следует геометрии участка. Общественные пространства и гостевые комнаты размещены на первом этаже, приватные и детские — на втором, спортивные и технические помещения — в цокольном.
Прозрачность дома, хотя и не абсолютная, но значительная, совпадает с парадными помещениями.
Использование в разных плоскостях натуральных материалов, таких как деревянный планкен, белый известняк и клинкерная плитка, придает силуэту здания динамичность. Разные по цвету прямоугольники складываются в единый объем.
Площадь дома 506 кв.м.












