Панорама
Фотограф: Чекалов Михаил
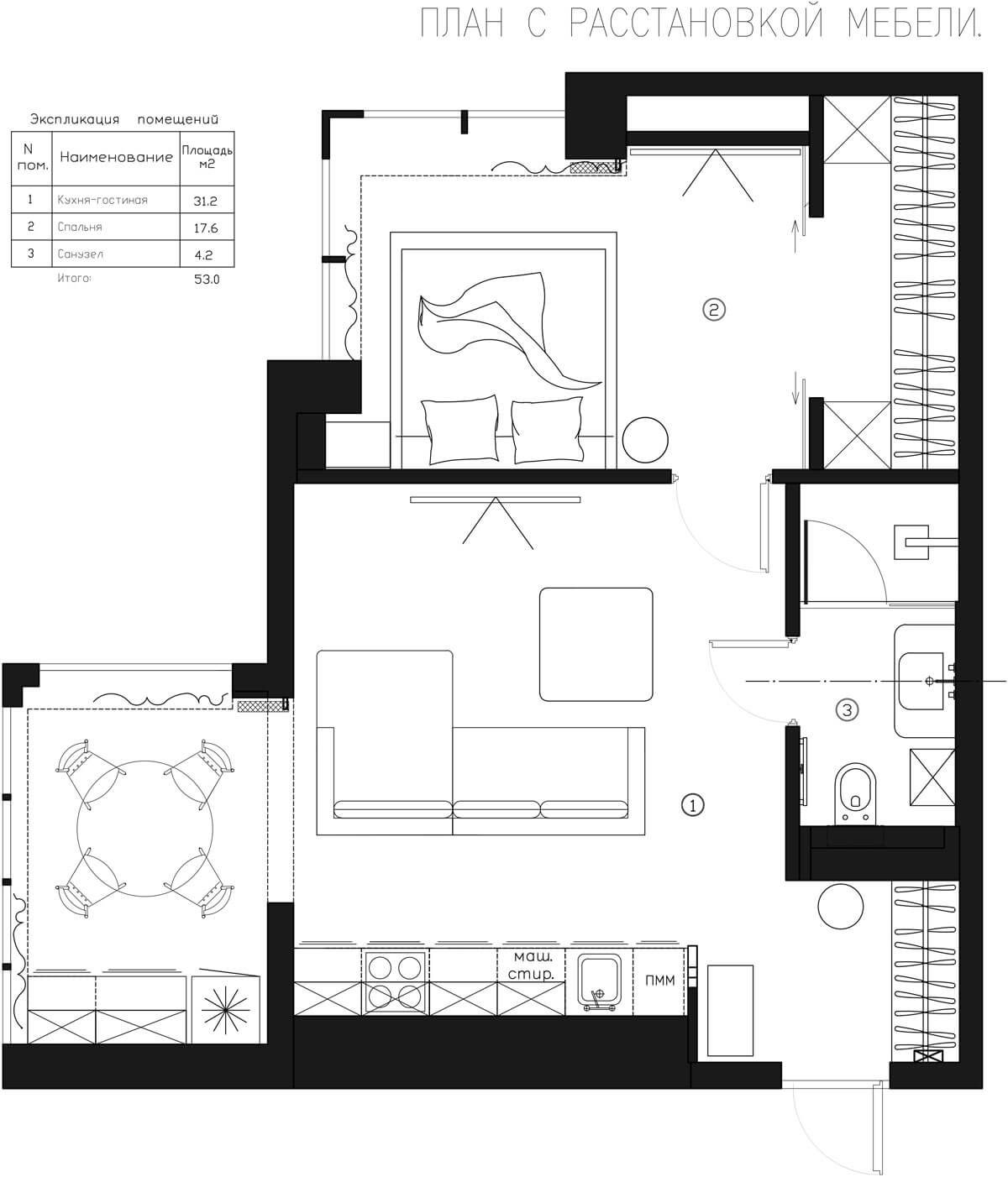
Супружеская пара заказчиков большую часть года живет в другом городе. При первой же возможности они приезжают в Анапу наслаждаться красотой в свою Морскую квартиру площадью 54 кв.м. Благодаря восхитительному виду из панорамных окон квартиры на высоком этаже, где город и море как на ладони, супруги и купили этот объект недвижимости.
Благодаря частичной перепланировке помещений, автору удалось воплотить, без исключений, все пожелания заказчиков. Концепция дизайн-проекта квартиры с асимметричной композицией сложилась благодаря впечатляющим видам из окон. Исторически сложилось, что Анапа имеет хаотичную застройку, поэтому город насыщен самыми различными сооружениями и пестрит яркими кровлями. Тему экстерьера в интерьере поддержали предметы с геометрическими принтами неправильной формы и яркие детали в качестве декора.
Чтобы усилить радость заказчиков от жизни в городе на черноморском побережье, дизайнер сделала в лаконичной кухне верхние фасады зеркальными. Сейчас в них красиво отражается небо и море.
Между кухней и столовой находится ригель — несущая конструкция. Он не позволил расширить проем и объединить рабочую зону. Поэтому на лоджии Анастасия устроила не продолжение этой кухни, а новую интерьерную композицию. Появился небесного цвета оригинальный буфет в полном соответствии оттенкам открывающегося пейзажа. Чтобы ещё мягче вписать буфет в красивую историю Морской квартиры, его художественно состарили; и этот посудный шкаф приобрёл вид раритета из бабушкиного наследства.
Столешницы на кухне и в буфете выполнены из натурального камня.
За телевизором в гостиной всё та же морская тема и пестрота архитектурных конструкций прослеживается в фактурной плите керамогранита. Этот прочный и колоритный каменный слэб красно-сине-коричневых тонов идеально вписался в композицию квартиры. Чтобы его визуально удлинить и адаптировать по высоте, автор использовала снизу молдинг, выкрашенный в такой же темно-пурпурный цвет. Получился зрительный эффект цельного полотна гранитного камня. Рядом с ним дизайнер использовала отдельные молдинги. Она расположила их так, что если кто-то проходит мимо них, светотень от молдингов меняется и создаётся впечатление, будто они двигаются вместе с человеком.
Желание заказчицы просыпаться с видом на море было удовлетворено полностью и даже усилено декором кровати. Для этого было выполнено текстильное изголовье уникальной формы по авторским лекалам дизайнера. Рисунок ткани на обивке одновременно поддерживает тему хаоса, и структурирует пространство своей чёткой геометрией изголовья. Если приглядеться к текстильным принтам внимательнее, то различимы рыбы и волны. Они еще интереснее усиливают морскую тему.
Одним из главных украшений стены с изголовьем кровати стало оригинальное зеркало, достойное называться произведением современного искусства. Это авторская работа из стекла, эффектно отражающая свет, выполнена Московской художницей.
Тумбы с двух сторон от кровати выполнены из натурального камня.










