Парус
Проект дома, предназначенного для временного времяпрепровождения, отдыха за городом. Площадка для проектирования располагается в Ленинградской области в сосновой роще, недалеко от Финского залива.
Формообразование и тематика дома взяты из корабельного дела. Заказчик работает в этой сфере, и ему хотелось подчеркнуть в дизайне род своей деятельности.
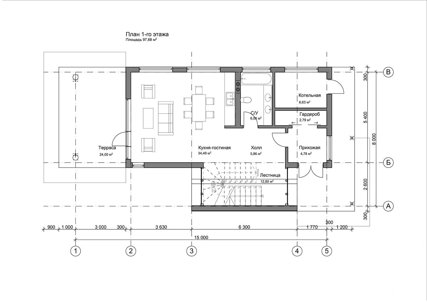
В доме два этажа, общая площадь — 170 кв.м.
1-й этаж: прихожая, гардероб, котельная, с.у., холл, лестница, кухня-гостиная, терраса.
2-й этаж: лестница, коридор, три комнаты.
Конструктивная часть дома выполнена из клееного бруса. Для отделки выбраны натуральные натуральные. В облицовке внешних стен применены бежевые каменные панели, натуральное дерево, металл, керамическая черепица.
Со стороны входной группы находится уникальная стена, изогнутая, напоминающая парус. Она служит для конструктивного крепления лестницы, а также создает барьер, скрывая пространство от взгляда соседей, прохожих (территория не имеет забора).
Изогнутая стена плавно перетекает в крышу. Крышу и стену облицевали керамической черепицей.









