Множественный выбор
Выбрать номинацию

Персональное решение*

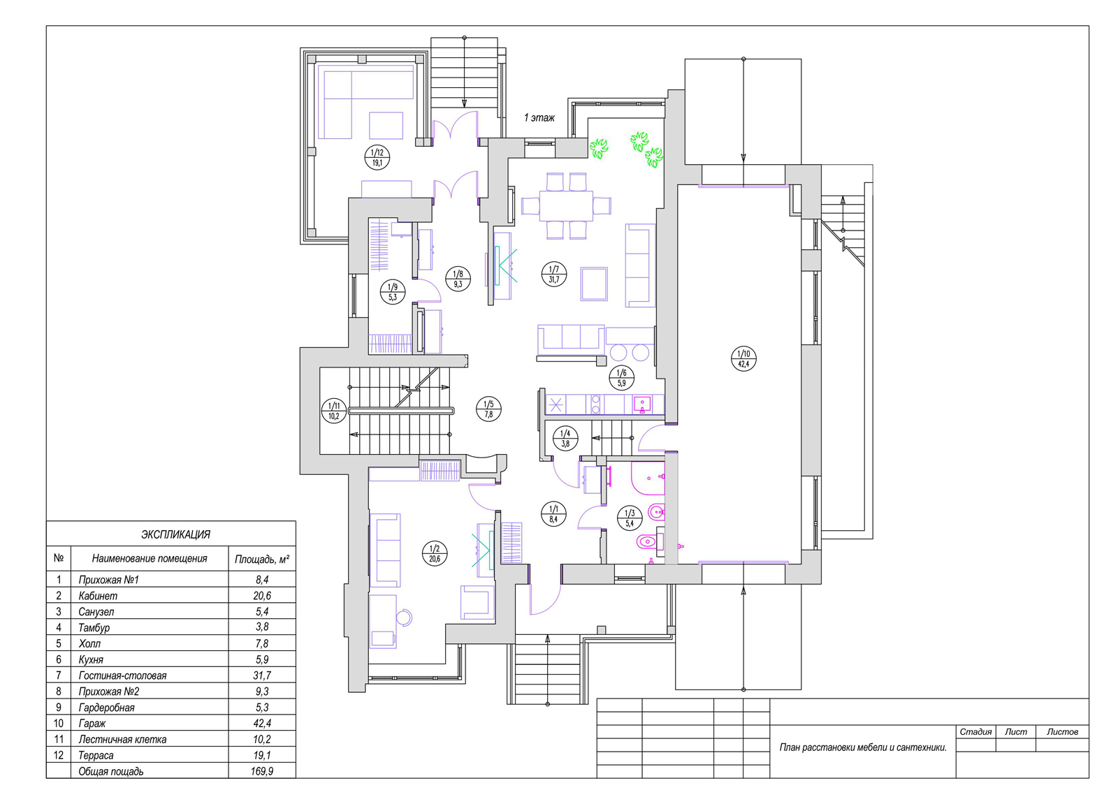
Заказчики хотели, чтобы их дом был непохож на другие, поэтому дизайнерам сразу стало ясно, что речь пойдет не об одном определенном стиле. Исходя из этого, для оформления интерьера выбрали необычный микс хайтека и кантри со средиземноморскими мотивами — любимой темой хозяев.

Умело используя сочетания различных стилей, дизайнерам удалось создать неповторимый персонализированный интерьер, комфортный для хозяев. При переосмыслении существующего проекта двухуровневого коттеджа и понимая, что для всех пожеланий заказчиков просто не хватит места, дизайнеры решили добавить цокольный этаж, расширили эркер для лестницы и присоединили к дому две открытые веранды. Таким образом, удалось максимально увеличить жилую площадь дома, так необходимую хозяевам.

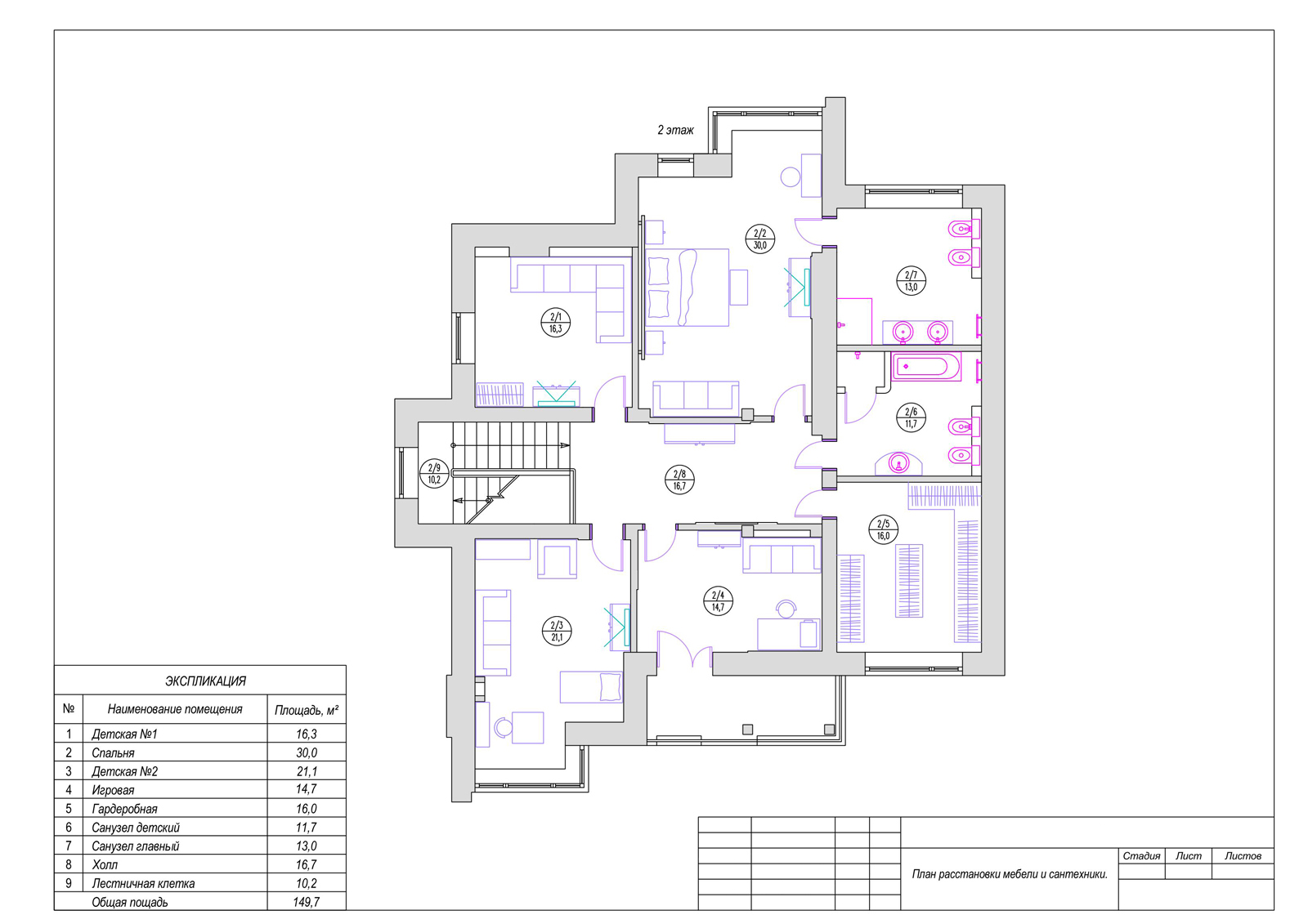
Во всех зонах просматривается индивидуальность и личность заказчиков. В гостевой зоне «холодным» хайтечным светильникам противостоят теплые цвета стен с декоративной штукатуркой и современные витражи в технике фьюзинг со средиземноморскими мотивами. Приватные зоны второго этажа в монохромной гамме моккачино и серебристых оттенков создают ощущения покоя, необходимого хозяевам во второй половине дня.

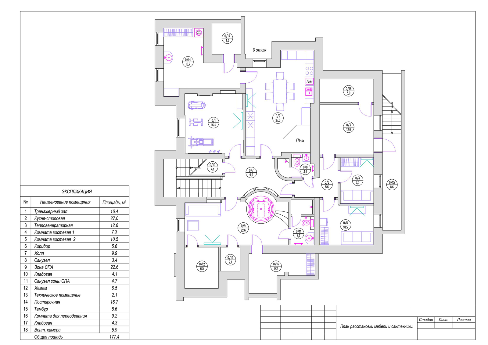
В цоколе функционирует кухня с настоящей дровяной печью, в которой можно не только запекать мясо или рыбу, но и также приготовить великолепную пиццу. Интерьер цокольного этажа необычен и представляет собой индивидуальное современное кантри с выполненной под заказ мебелью и удивительной люстрой с витражными элементами, повторяющими рисунок изразцов эксклюзивной печи. Так же в цоколе дома есть комфортная wellness-зона со SPA-зоной в морском стиле, гидромассажной ванной и собственным массажным кабинетом. Персонализированный интерьер дома в Подмосковье стал удобным местом для постоянного проживания заказчиков.

Фото: Константин Дубовец

Выставка конкурсных проектов
ВЫСТАВКА КРАСИВЫЕ ДОМА - 2026

ФОТОГАЛЕРЕЯ
ЭКСПОЗИЦИИ
КОНКУРСНЫХ
ПРОЕКТОВ

КАК ЭТО БЫЛО
Выставка конкурсных проектов проходит дважды в год (Весна | Осень)

Отзывы

Можно использовать **жирный**, *курсив*, [ссылку](https://example.com), списки через - или 1.
Пока отзывов нет. Будьте первым.