Персональное решение
Заказчики хотели видеть свой дом светлым, а дизайн особым, индивидуальным.
Использование туфа в оформлении фасада частного дома в Подмосковье не случайно. Туф — прекрасный материал, обеспечивающий хорошую тепло- и звукоизоляцию, морозостоек, водостоек. Этот камень легок в обработке, прочен и долговечен. Кроме того, фасад из туфа невероятно декоративен.
Чтобы фасад получился более интересным, применили контрастное сочетание самого светлого оттенка туфа с темными рамами окон, крыши и входных групп. Большие панорамные окна удачно подчеркнули рустами из камня. Использование карнизов и рустов из туфа позволило придать законченный вид фасаду современного коттеджа. Ступени входных групп выполнены из искусственно состаренного темного гранита чуть светлее входных групп.
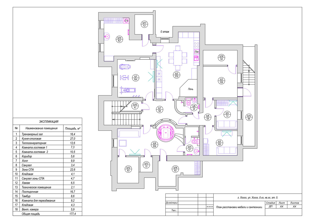
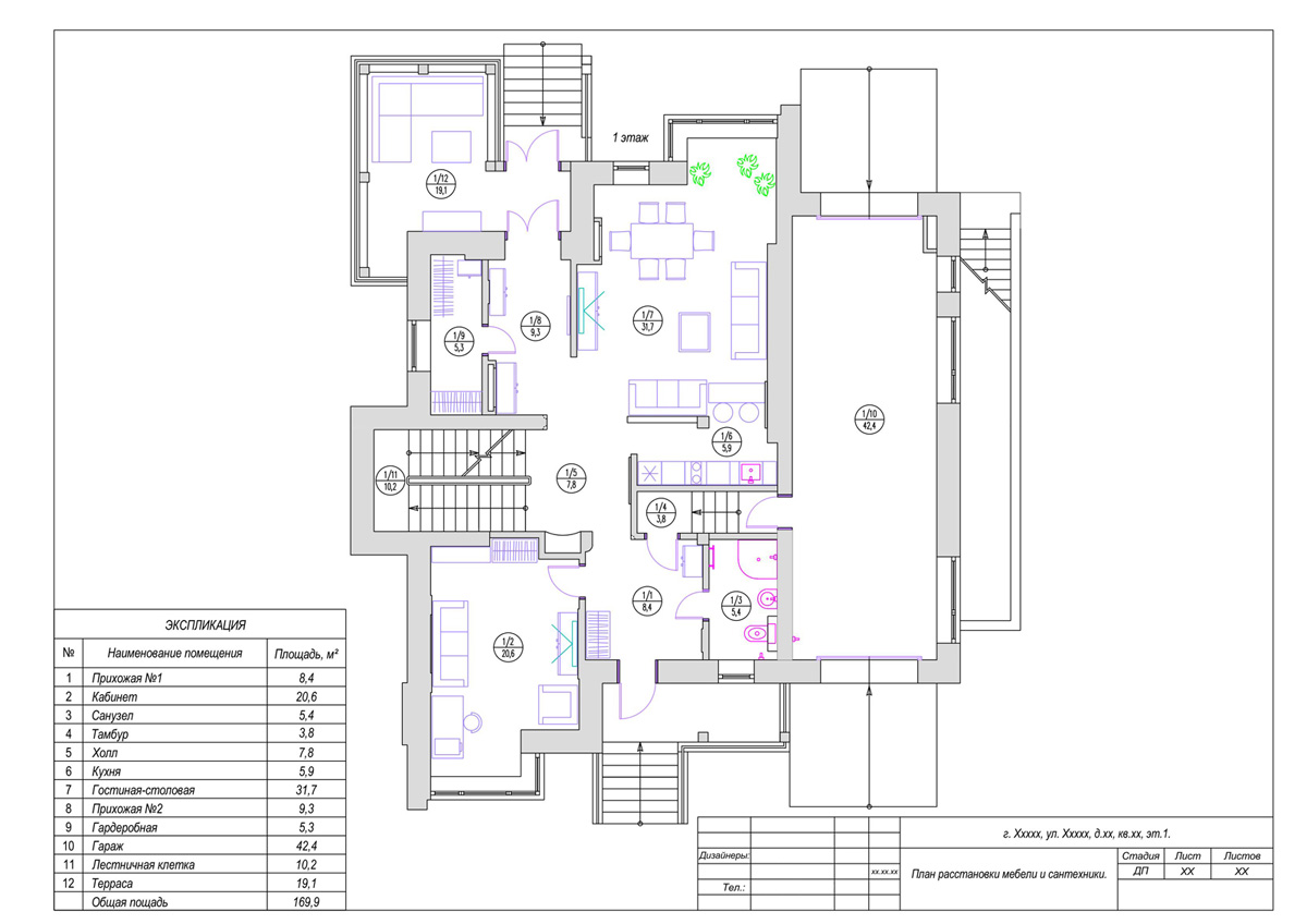
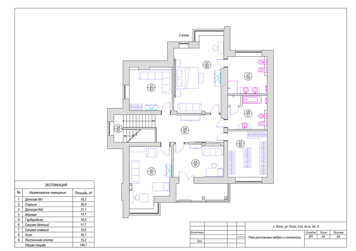
Переосмысливая существующий проект двухуровневого коттеджа и понимая, что для всех пожеланий заказчиков просто не хватит места, дизайнеры решили добавить цокольный этаж с окнами, расширили эркер для лестницы и присоединили к дому две остекленные веранды. В итоге удалось максимально увеличить жилую площадь дома, так необходимую хозяевам.
Дом в Подмосковье стал удобным местом для постоянного проживания заказчиков, а отделка фасадов натуральным туфом сделала его заметным эффектным объектом в коттеджном поселке.






