Первые лучи солнца
Пришло время реконструировать дом — и интерьер устарел, и семья выросла… К тому времени и сами заказчики уже понимали, каким хотят видеть свое обновленное жилище. С целью создать удобный, современный, просторный дом для семьи супруги и обратились в дизайн-студию.
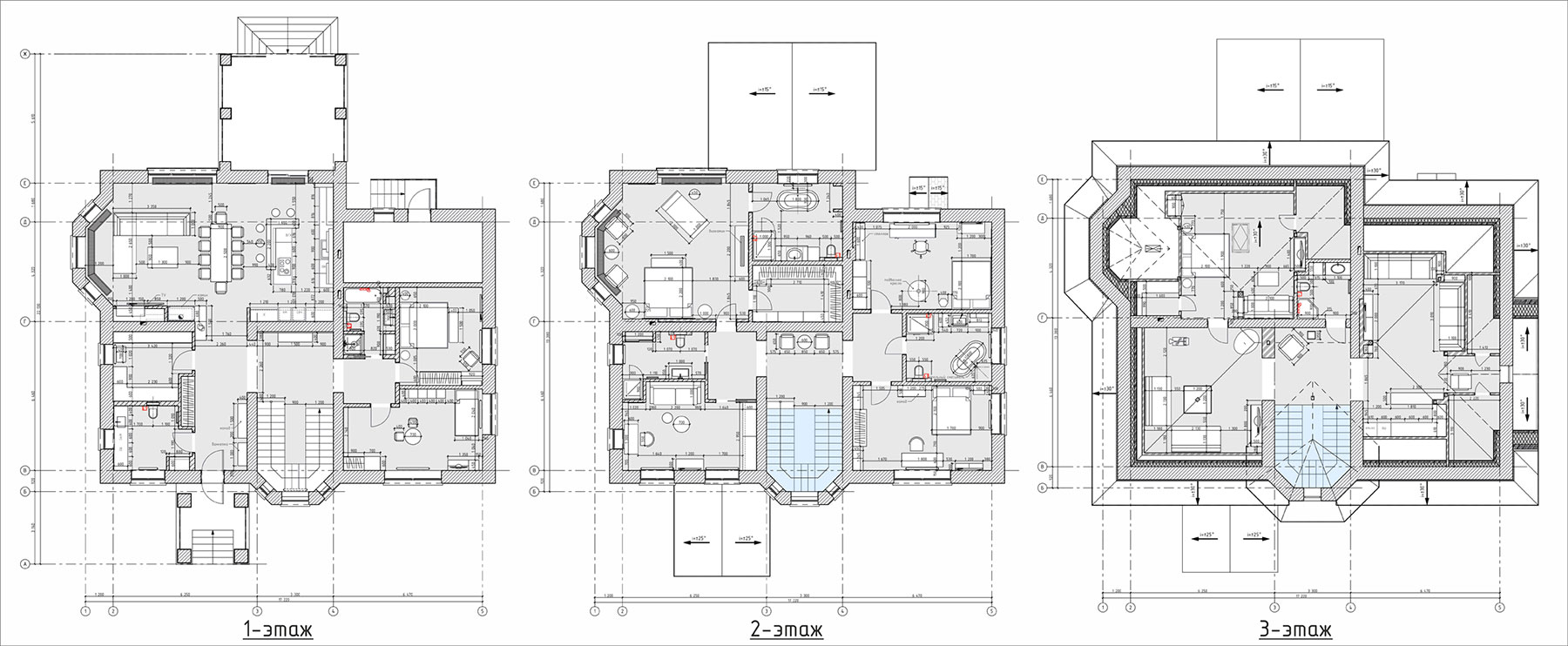
Благодаря грамотному планировочному решению удалось решить задачу создания новых функциональных зон — комнат отдыха, санузлов, гардеробных и постирочной. Первый этаж предназначен для всей семьи и гостей и представляет собой единое пространство с зонами гостиной с большим камином и современной кухни. Второй этаж — приватные комнаты членов семьи с индивидуальными санузлами и гардеробными. Каждое из них имеет неповторимый интерьер, подчеркивающий индивидуальность и возраст хозяина.
Одним из сложных и интересных стало помещение мансарды, которое ранее не использовали. Сложные конструкторские решения позволили соединить лестницей второй и мансардный этажи, обыграть имеющиеся стойки стропильной системы. Благодаря тесному тандему конструктор — дизайнер родилось совершенно новое пространство — комфортное для жизни и отдыха всех членов семьи.
Цветовая палитра основана на теплых природных оттенках: белого, серого, коричневого — в текстуре натурального камня, декоративной штукатурке и деревянной отделке, и элегантно «приправлена» яркими акцентами мебели, светильников, аксессуаров и картинами в стиле импрессионизма.
Результатом совместной работы стал стильный, современный дом, точно отображающий характер и образ жизни заказчиков.















