Множественный выбор
Выбрать номинацию

Под облаками

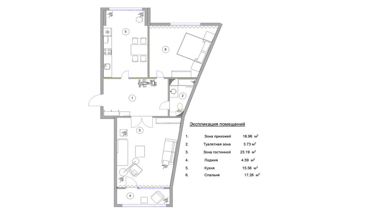
Двухкомнатная квартира площадью 82 м2 находится в наукограде Московской области, в монолитном многоэтажном доме.

Квартира создавалась для девушки, ценящей спокойствие, лаконичность и здоровый образ жизни.

Основная идея проекта: свобода, простор, спокойствие, функциональность.

В данном проекте стояла задача сочетать несколько стилей, отсюда получилось пространство, сочетающее в себе элементы классики, лофта и современности.

Основное пожелание хозяйки — отсутствие открытой планировки, изолированность каждого помещения и организация фитнес-зоны.

Каждое помещение получилось со своим характером.

Фитнес зона расположена в просторном холле и выделена акцентным темно-зеленым цветом. Каменная плитка подчеркивает брутальный характер этого помещения.

Помещение полностью отделено от внешнего шума и городской суеты — размышлять, наблюдая из окна за бескрайними просторами природы, не покидая города, для хозяйки не мечта, а реальность.

Панорамное окно, открывающее вид на прозрачно-прохладное небо-энергетический центр квартиры.

Идею свободы продолжает отсутствие конкретного рабочего места: работать с ноутбуком можно из любой точки квартиры.

В проекты применены авторские предметы столярных изделий и декора. Девушке по наследству перешел старинный стол, его хозяйка решила оставить. Стол был отреставрирован и помещен на кухне.

Фотограф – Машкин Андрей

Выставка конкурсных проектов
ВЫСТАВКА КРАСИВЫЕ ДОМА - 2026

ФОТОГАЛЕРЕЯ
ЭКСПОЗИЦИИ
КОНКУРСНЫХ
ПРОЕКТОВ

КАК ЭТО БЫЛО
Выставка конкурсных проектов проходит дважды в год (Весна | Осень)

Отзывы

Можно использовать **жирный**, *курсив*, [ссылку](https://example.com), списки через - или 1.
Пока отзывов нет. Будьте первым.