Множественный выбор
Выбрать номинацию

Подушкино

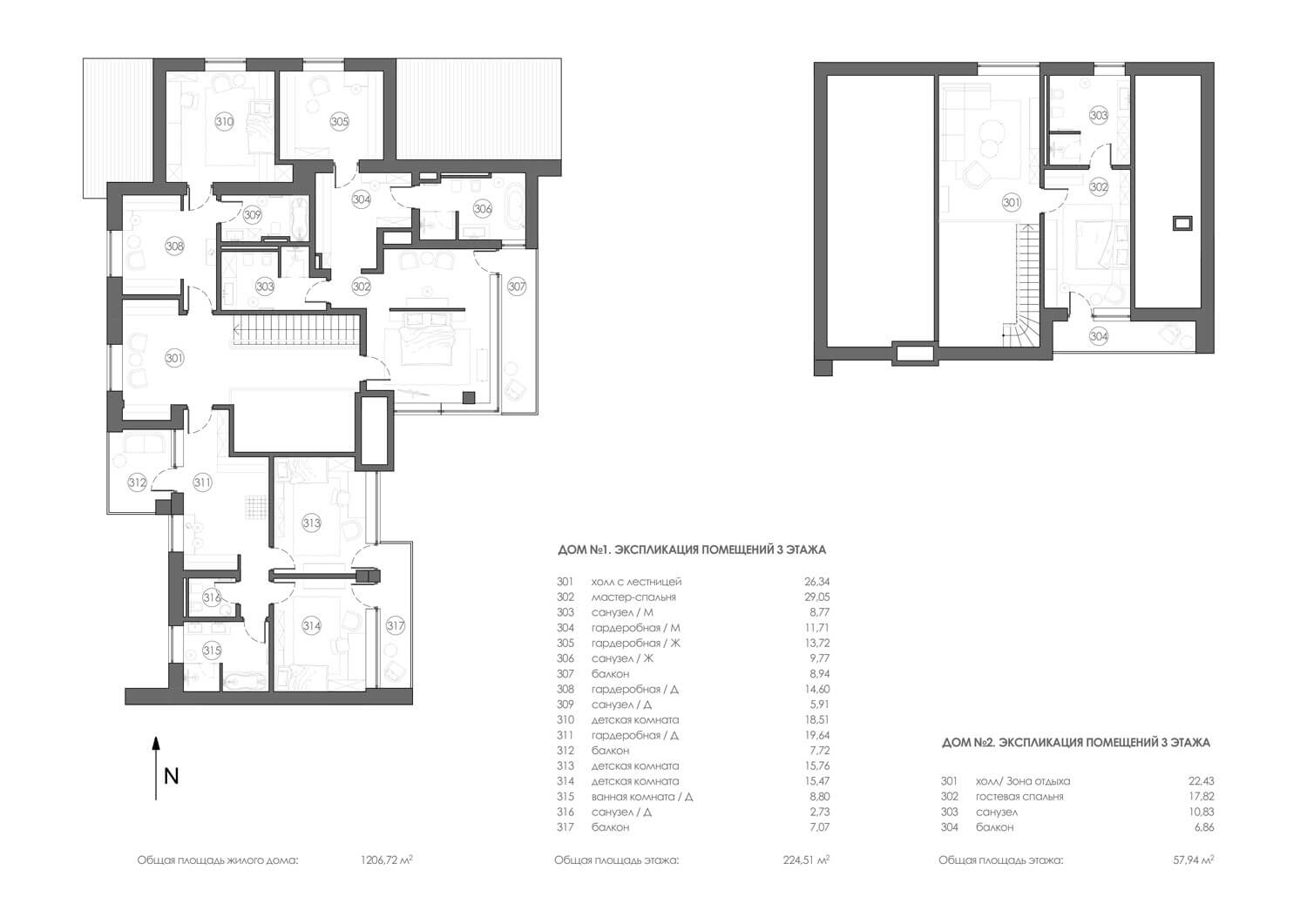
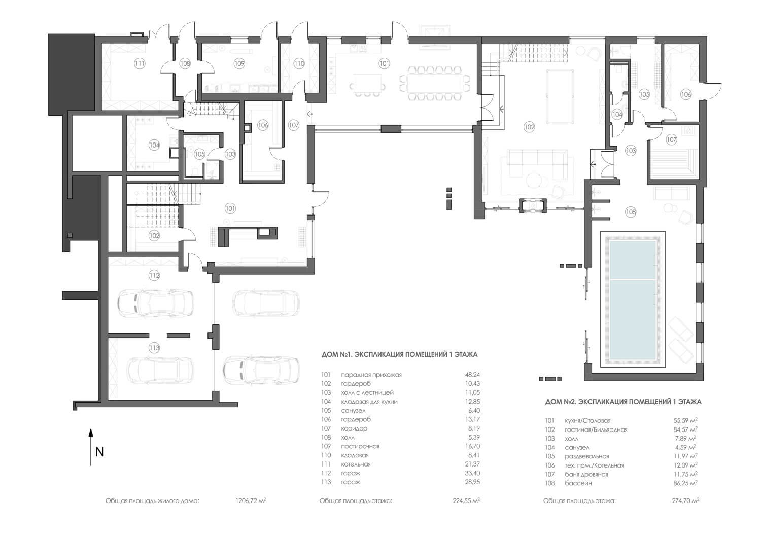
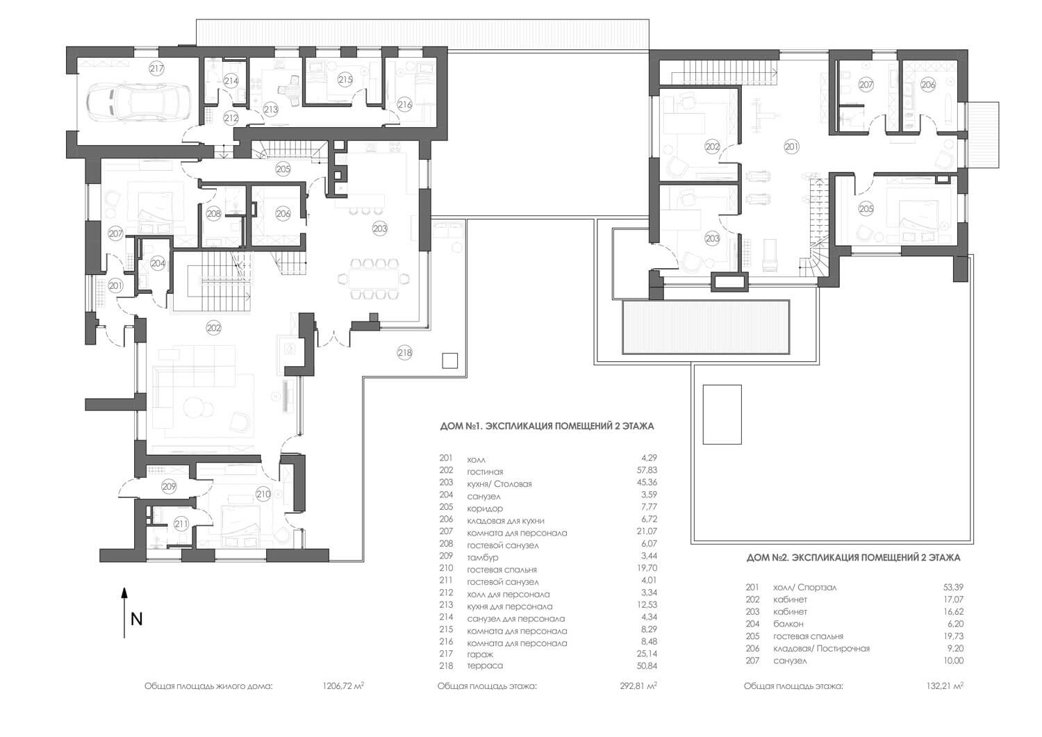
Общая площадь дома – 1206,72 м²
Количество спален – 6

Загородный дом с банным комплексом создан в современном стиле с элементами «барнхауса». Он выигрышно сочетает в себе фальцевую двускатную кровлю, длинные кубические объемы, камень в отделке и витражное остекление.

Особенность участка – сильный перепад рельефа, более 4 метров, по этой причине к планировочным решениям мы подошли нестандартно, был создан по-настоящему многоуровневый объект. Одна из основных идей – разделение функциональных потоков жилого дома и банного комплекса, а также формирование внутреннего уединенного пространства двора, который позволяет соединить все зоны в единый ансамбль.

На первом уровне жилого дома предусмотрен блок со вспомогательными помещениями, доступ к которому осуществляется со стороны внутреннего двора. Другим важным композиционным элементом является полноценный банный комплекс с большой комфортной зоной отдыха, бассейном и дровяной баней. Кухня-столовая – транзитная зона между жилым домом и банным комплексом.

На втором этаже дома расположились основные жилые помещения, из которых предусмотрен выход на террасу-балкон, огражденный стеклянными панелями с видом на внутренний двор. Соединением между комплексом и домом на этом уровне является зеленая кровля из многолетних растений.

На третьем этаже также расположены жилые помещения с панорамным остеклением, которые создают эффект расширения пространства. Несмотря на большую площадь, этот комплекс органично вписывается в природный рельеф.

Выставка конкурсных проектов
ВЫСТАВКА КРАСИВЫЕ ДОМА - 2026

ФОТОГАЛЕРЕЯ
ЭКСПОЗИЦИИ
КОНКУРСНЫХ
ПРОЕКТОВ

КАК ЭТО БЫЛО
Выставка конкурсных проектов проходит дважды в год (Весна | Осень)

Отзывы

Можно использовать **жирный**, *курсив*, [ссылку](https://example.com), списки через - или 1.
Пока отзывов нет. Будьте первым.