Приватные термы*
Александр Македонский завоевал пол-Европы. В местах, где останавливалось его войско, возводились форумы, жилища, храмы, термы …
Наши прогрессивные современники заботливо накрыли руининизированные остатки сооружений завоевателей и … снова превратили их в «термы».
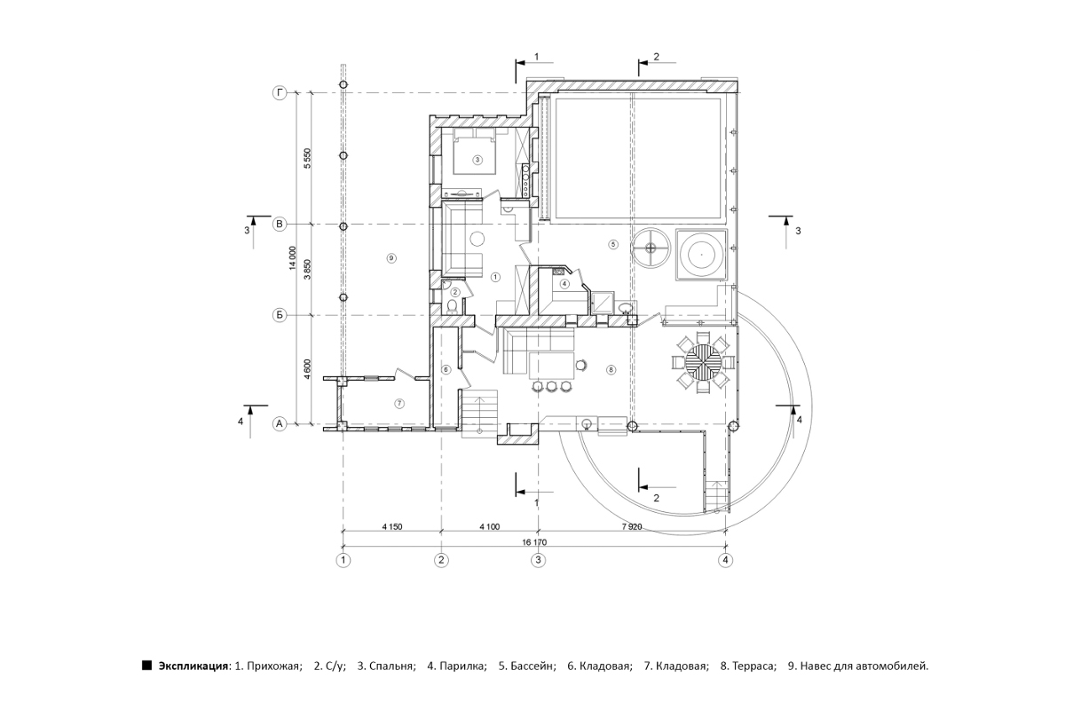
Планировочное решение просто! Бассейн — гостевой дом с хаммамом в один этаж. Конструкция — металлический каркас, накрывающий руины, с алюминиевыми витражами — парником, впитывающим солнце.
В отделке песчаник, итальянский туф, дерево, плитка.
Оборудование бассейна и котельная в подвальном этаже.
Отзывы
Пока отзывов нет. Будьте первым.













