Приватный chillout
Это небольшое уютное шале принадлежит семье из трех человек и используется как загородный дом для отдыха, встреч с друзьями, проведения вечеринок.
Изначально существовал другой проект дома, и в соответствии с ним на участке уже был сделан фундамент. Однако заказчик почувствовал, что что-то не так, и обратился в дизайн студию, для разработки нового проекта. Учитывая, что фундамент дома уже был заложен, проектирование было ограничено определенными рамками. Но в итоге все получилось очень удачно, и все участники процесса — хозяева нового шале и его автор — остались очень довольны результатом.
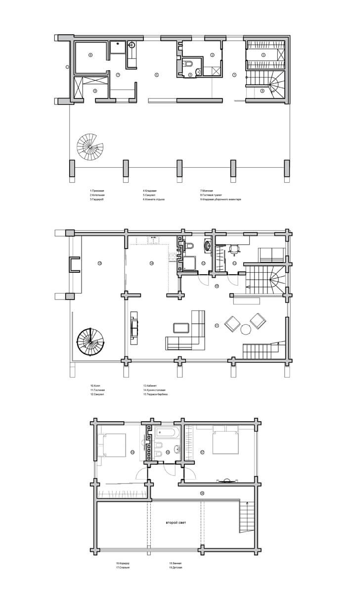
Дом имеет три уровня. На нижнем уровне размещены прихожая, сауна и комната отдыха, санузел, а также технические помещения.
На втором — кабинет, каминный зал, объединенный с гостиной и столовой, и кухня с выходом на крытую террасу для барбекю. Терраса специально поднята на уровень второго этажа, чтобы хозяева могли видеть окрестности поверх забора, ограждающего участок. Винтовая лестница соединяет кухню и верхнюю террасу с нижней террасой. Это позволяет укоротить путь. Возле нижней террасы устроена летняя кухня. Третий уровень занимают спальня, детская комната и ванная.
Проектирование и строительство заняли два года. Нижний уровень сложен из кирпича, верхние — из деревянного клееного, окрашенного бруса. Для отделки дома использованы натуральные экологичные материалы: дерево, керамическая плитка, керамогранит, натуральная паркетная доска.
Кухня, столы, кровати, корпусная мебель изготовлены белорусскими производителями по эскизам дизайнера. Декор мебели также разработан индивидуально.
Главным украшением гостиной является французский камин. Это настоящий арт-объект. Элегантная дровница составляет ему отличную пару.
Лестница, ведущая из прихожей на второй этаж — эксклюзивная модель, разработанная специально для этого шале. Ее дизайн идеально соответствует характеру дома.
В целом стилистику интерьера можно охарактеризовать как фьюжн. Скандинавский колорит превосходно уживается с настроением загородных домов Прованса. А реплики французского ампира дополняют картину.
Владельцы дома и дизайнер хотели сделать дом легким, воздушным, наполненным светом. Именно таким он и получился. В интерьере преобладает белый цвет — белые крашеные стены и потолки, ступени лестницы, полы из огромных плит белого керамогранита, светлая корпусная мебель и чехлы на диванах. Белый цвет прекрасно дополняют оттенки синего и голубого.













