Проект «АА» (2A)
Домовладение «АА» расположено в России, ближнее Подмосковье, в 45 км от города Москва по Дмитровскому или Ярославскому шоссе, на территории коттеджного посёлка «Домик в лесу».
Идея создание проекта «АА» возникла не случайно, у нас давно была мысль создать посёлок, либо какую-то его часть в уже существующем закрытом посёлке из строений, которые были бы объединены одной концепцией, одним направлением, но при этом были бы совершенно разными. Мы точно понимали, кто должен стать владельцем наших домов. Это должен быть житель мегаполиса, у которого уже есть своё жильё в черте города, но ему необходимо вырываться из оков города на свежий, лесной воздух, полностью отвлечься от насущных проблем, забот и набраться сил, либо не отвлекаясь от работы, больше находится на природе. При этом он должен получить нечто большее, чем просто дом в утилитарном понятии его назначения. Наш проект должен был стать «вторым домом» горожанина. Мы хотели создать не просто один проект, так как человек не может видеть только свой дом, он будет видеть и ОКРУЖЕНИЕ, и нашей главной задачей было создать «Семью» строений, каждый из которых многократно усиливает положительные эмоции от пребывания здесь. То есть, строение должно относится к целому посёлку так, как целый поселок относится к строению. Здравый смысл, логичность, естественность и поэтичность легли в основу созданиязданий. Всеми этими критериями обладает концепция «Органичной архитектуры» Френка Ллойда Райта, и мы постарались использовать элементы «органичной архитектуры» в создании проекта здания и всей нашей части посёлка в целом. Проект «АА» имеет пластичные, органические формы, они естественны для восприятия, при этом внутреннее пространство ортогонально.
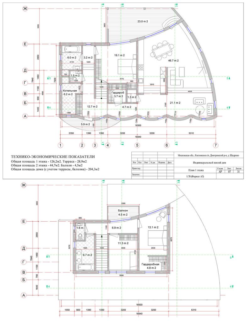
Дом «АА» с общей площадью всех помещений, террас и балконов 200 кв. м. Со стороны внутрипоселковой дороги и парковки он как бы закрыт, у него узкие световые проемы, небольшие окна прикрывают от нежелательных взглядов, главный восточный фасад смотрит на лес, большие окна не нарушают приватность, шторы не предусматриваются. Из дома есть выход на крытую террасу, расположенную также в восточной части дома. Общее пространство гостиная-столовая-кухня сориентировано по трём сторонам света (кроме северной). В доме три спальни и2,5 сан узла. Одна из спален второго этажа имеет двойное назначение и может быть использована как рабочий кабинет, или место для творчества. Эта комната расположена напротив лоджии, у комнаты в этом месте стеклянная стена-перегородка, что обеспечивает инсоляцию света, визуальный контакт с природой и открывает потрясающий вид на лес. Дом расположен на участке с естественным уклоном в сторону притока реки Яхрома, это позволило «посадить» дом по ландшафту и получить разноуровневые полы первого этажа, что, в свою очередь, привело у лучшему зонированию пространства.

























