Проект Агиос
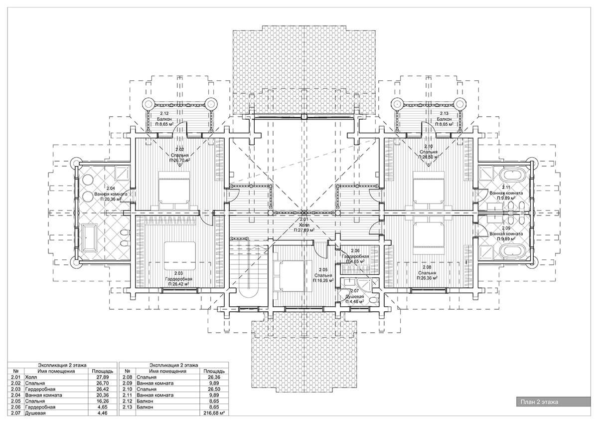
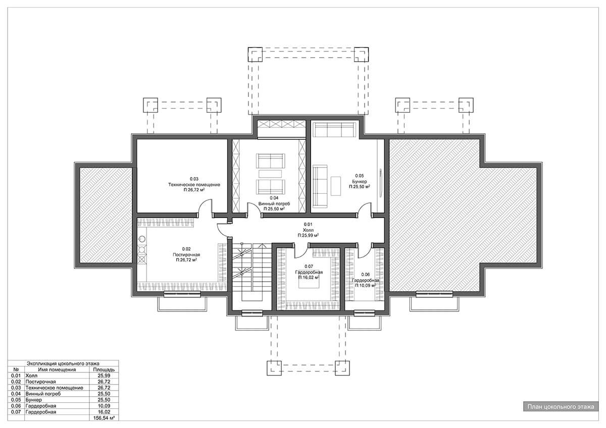
Проект «Агиос» — это самый большой деревянный комплекс ручной работы на острове Кипр. Два жилых дома, две бани, гараж и въездная группа занимают общую площадь около 2000 кв.м. Для Кипра это принципиально новый подход к строительству — из-за климата на острове существует годами сложившаяся традиция строительства домов из камня и бетона. Однако в лесах неподалеку от Лимассола мы наблюдаем ярко выраженную сезонность, свойственную средней полосе России. И при качественном подходе к строительству деревянный дом здесь станет комфортным местом для жизни, гармонично вписанным в окружающую среду.
Все строения комплекса выполнены с применением плотницких технологий ручной работы из материалов, которые были привезены на остров из России. Основной материал строительства — высококачественный сибирский кедр от 340 мм в вершине. Сруб полностью изготовлен на производственной базе компании-застройщика в Подмосковье и доставлен на остров морем. Остальные строительные материалы и предметы интерьера также привезены морем из-за границы — России, Европы и Америки. Управление проектом ведется из двух точек — непосредственно на объекте и из основного офиса компании-застройщика в Москве. Команда, собранная на объекте, интернациональна — к строительству привлечены высококвалифицированные плотники, инженеры и бригадиры из России, Литвы, Кипра и других стран.
Все деревянные строения комплекса собраны по принципу безусадочной технологии застройщика.
На сегодняшний день работы по строительству объекта близятся к завершению, ориентировочная сдача объекта — декабрь 2020 года.













