Проект Антарес
СПА-комплекс предназначен для комфортного отдыха и проживания гостей.
В качестве цветового решения фасадов выбрано благородное сочетание теплого оттенка дерева и насыщенного серого цвета. Карнизы кровли оформлены каменными панелями с подсветкой. В сочетании с лаконичной архитектурой данные элементы придают облику комплекса современный вид. Большое количество террас позволяет с комфортом насладиться отдыхом на свежем воздухе. Комплекс гармонично сочетается с окружающим ландшафтом — вековыми соснами, бережно сохраненными при создании проекта.
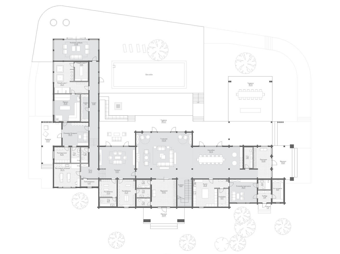
Панорамное остекление позволяет любоваться лесным пейзажем и делает внутреннее пространство максимально открытым. Конструктивно дом выполнен из клееного бруса в сочетании с технологией фахверк. Внутренняя планировка решена функционально и комфортно: для гостей есть два входа – со стороны подъездной аллеи и от главного дома.
На первом этаже расположены зона персонала с отдельным входом, столовая, гостиная со вторым светом и камином и СПА-зона. Она включает в себя две раздевалки, массажный кабинет, парную, две душевых и комнату отдыха с выходом на отдельную террасу.
На втором этаже находятся апартаменты для гостей. Спа-комплекс идеально подходит для расслабления и отдыха в целительной атмосфере соснового бора.









