Проект дома Берлога у Моря
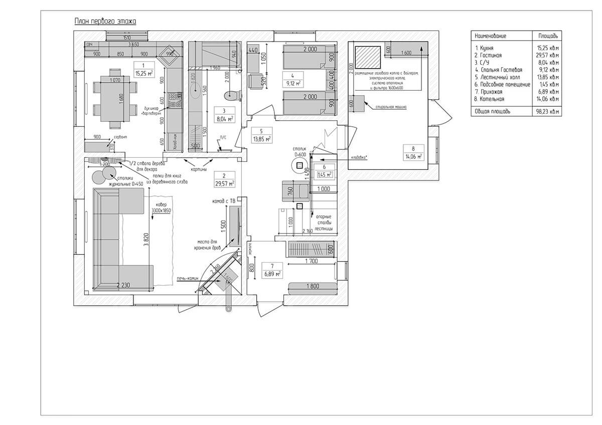
Объектом для дизайн-проекта стал двухэтажный загородный дом из профилированного бруса, с большой верандой. Первый этаж имеет общую площадь 98,23 кв.м. Пожеланием заказчика было предусмотреть такие помещения, как:
кухня 15,25 кв.м. — с фукциональным размещением бытовой техники и кухонным гарнитуром, обеденной зоной на 4–6 персон;
гостиная 29,57 кв.м. — с большим диваном, главной фокусной точкой печью-камином, предусмотреть выход на террасу;
гостевая спальня 9,12 кв.м. — зона отдыха для гостей, с местом хранения;
с/у 8,04 кв.м с большой душевой;
лестничный холл 13,85 кв.м. – с лестницей для подъема на второй этаж;
прихожая 6,89 кв.м.
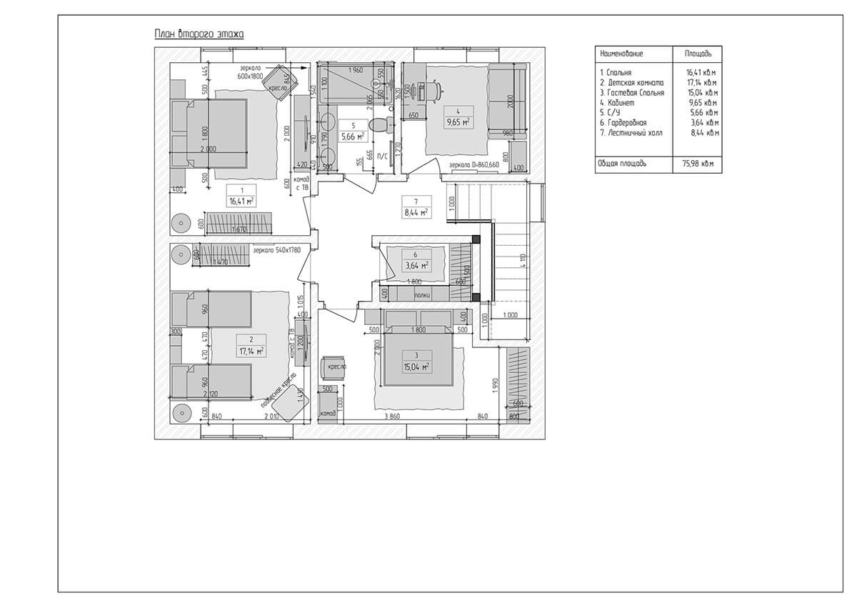
Второй этаж мансардный, с двускатной крышей. Имеет свободную планировку и общую жилую площадь 75,98 кв.м.
Для функционального зонирования требовалось три спальни.
Спальня хозяина дома: двухспальная кровать, прикроватные тумбы, кресло, шкаф для одежды, ТВ + тумба. Детская спальня: две односпальные кровати, прикроватные тумбы, кресло подвесное, пуф, шкаф для одежды, ТВ + тумба. Гостевая: двуспальная кровать, место для одежды.
Санузел для хозяина: с большой душевой, раковиной на две чаши.
Кабинет: стол, рабочее кресло, диван (раздвижной), хранение для наград, декора со службы.
Коридор: проходная зона в комнаты.
Гардеробная: вешала, полки, ящики для одежды Заказчика.
В комнатах требовалось добавить больше естественного освещения, за счет расширения оконных проемов.
Заказчиком является мужчина, основное увлечение которого — рыбалка и охота, отдых с семьей на свежем воздухе, вдали от суеты, поэтому дом расположен на окраине леса, на берегу Рыбинского водохранилища — это и способствовало остановиться на рустикальном стиле интерьера. В его основе — эффектный контраст деревенского и изысканного, грубости и благородства, он создает ощущение защищенности и психологического комфорта, дает возможность уединиться и почувствовать единение с природой. Таким образом природная красота, выраженная в натуральных материалах, естественных текстурах, древесных оттенках, присутствует во всех помещениях дома, использована как при строительстве, так и в декоре.
«Дышащая» древесина и камень, сохраняющий зимой тепло, а летом свежесть и прохладу, обеспечивают особый микроклимат в доме. Но при всей простоте форм и материалов необходимо было организовать эффективное жилое пространство, очень надежное, теплое и долговечное. Деревянные полы, благодаря своей простоте и массивности создают основу для характерного стиля, настоящие деревянные балки с сучками и трещинами, натуральный камень на стенах и в облицовке печи-камина, штукатурка, мебель и двери грубой обработки, натуральные ткани (лен, хлопок, шерсть), шкуры — все это несет особую энергетику и подчеркивает увлечения и натуру хозяина дома. Спокойная природная палитра тонов разбавлена яркими вкраплениями декора. Цветные подушки и ковры привносят в интерьер особенный колорит и выразительность. Любая конструктивная деталь дома практична и функциональна, дизайнеру удалось создать территорию комфорта, теплый семейный уголок с индивидуальностью и традиционностью.












