Проект двухэтажного дома Берген
Сочетание традиций и современности — именно так можно охарактеризовать данный проект. Главная муза и источник вдохновения для проекта — норвежская архитектура. Последние десятилетия были особенно плодотворны для «северной страны», так как сейчас она занимает лидирующие позиции в рамках архитектурных решений. В Норвегии мы учимся сочетать современные технологии и скандинавское традиционное зодчество.
Основные материалы проекта — клееный брус, камень и много стекла. Комбинация деревянных балок и отделки «грубым» камнем во внешнем облике дома позволяет производить яркое впечатление и вызывает желание рассмотреть объект поближе. Часть кровли является стеклопрозрачной, что не только выглядит эффектно, но и создает особую атмосферу внутри здания. Спать под звездным небом и мечтать о покорении космоса.
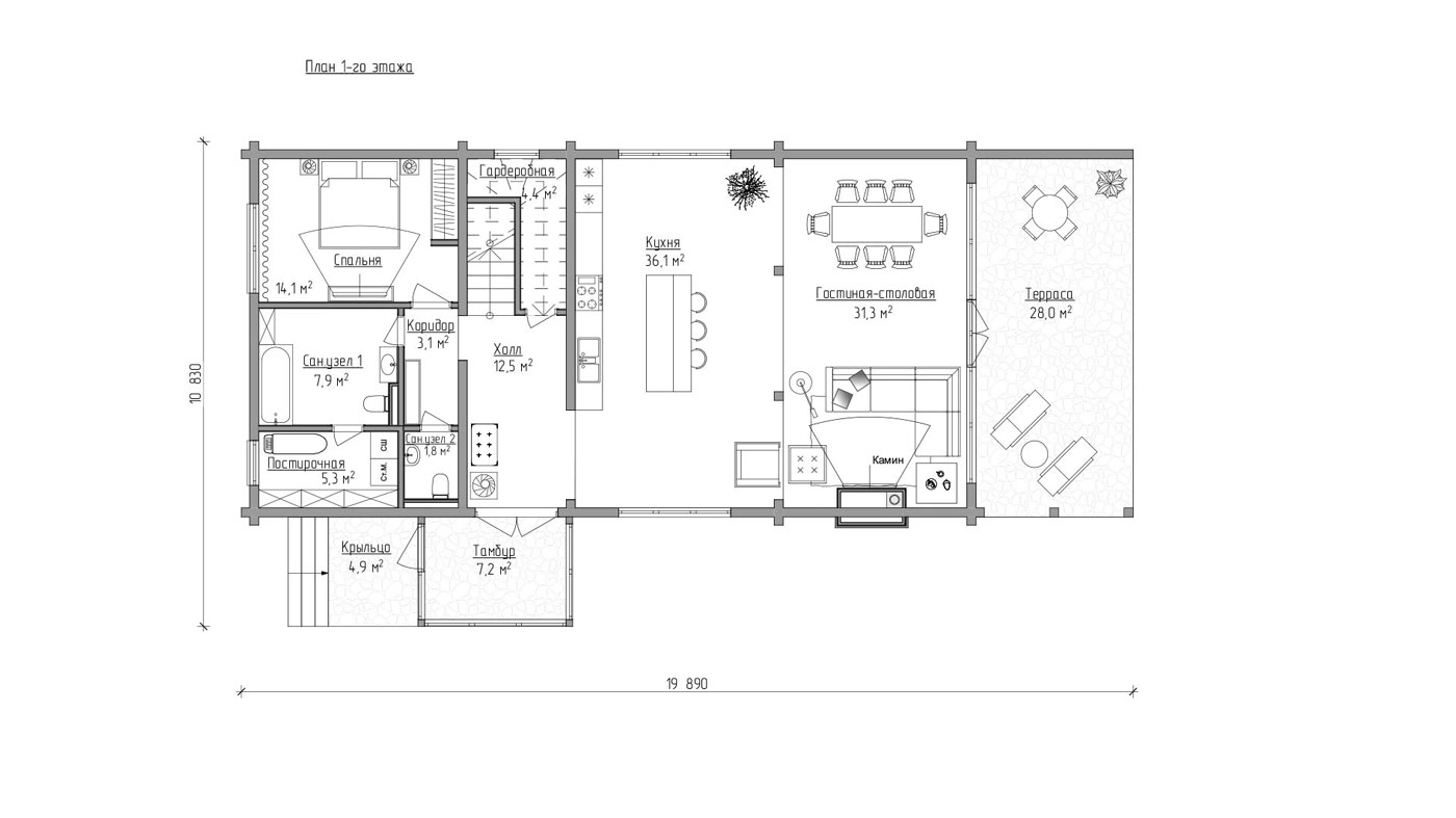
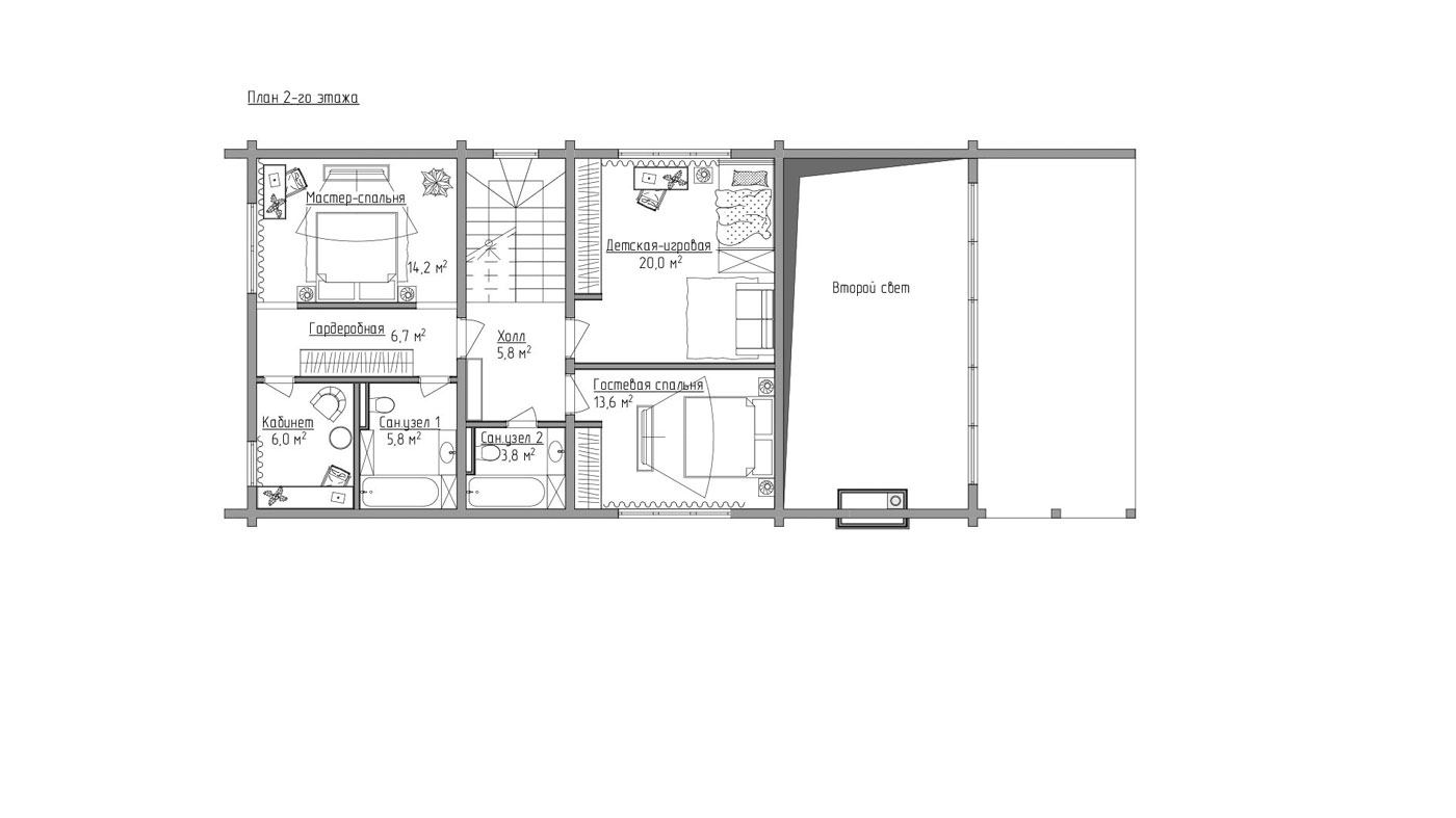
Просторная терраса ведет в кухню-гостиную, где можно принимать гостей и проводить спокойные вечера на диване. Здесь также расположена техническая зона (котельная и постирочная). Второй этаж полностью оборудован под хозяйские спальни.
Второй свет — главный герой проекта. Именно он визуально увеличивает площадь дома и дает ощущение большого воздуха, позволяя вдыхать полной грудью. Более того, двухсветное помещение всегда делает иллюминацию более насыщенной.






