Проект индивидуального жилого дома с дизайн-студией
Малоэтажный жилой дом выполнен с учетом функциональных, технических, архитектурно-художественных и экономических требований. Двухэтажный коттедж рассчитан на семью с двумя детьми. В его структуру включена дизайн-студия с отдельным входом.
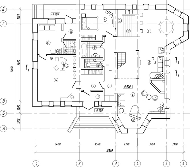
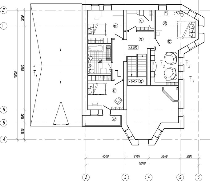
В климатической зоне средней полосы России вход в дом осуществляется через тамбур. На первом этаже расположены прихожая, гостиная, TВ-зона, гостевая, кухня, столовая и раздельный санузел. Структуру пространства задает расположенная в центральной части лестница, ограниченная с двух сторон стенами. Трехгранные эркеры обеспечивают хорошую освещенность помещений. На втором этаже находятся две детские спальни и просторная спальня родителей, где предусмотрена дополнительная зона отдыха.
Коттедж включает в свою структуру дизайн-студию, а это значит, что внешний облик дома должен быть безупречным. Классический кирпичный фасад дополняют декоративные элементы. Цокольная часть достаточно высокая, что придает зданию величественность. Натуральный камень, используемый в отделке фасада, кроме своего практического назначения выполняет эстетическую функцию: сланец выглядит дорого, элегантно и благородно.





