Проект индивидуального жилого дома в коттеджном поселке
Дом предназначен для строительства в коттеджном поселке регулярной квартальной застройки жилыми домами среднего ценового диапазона.
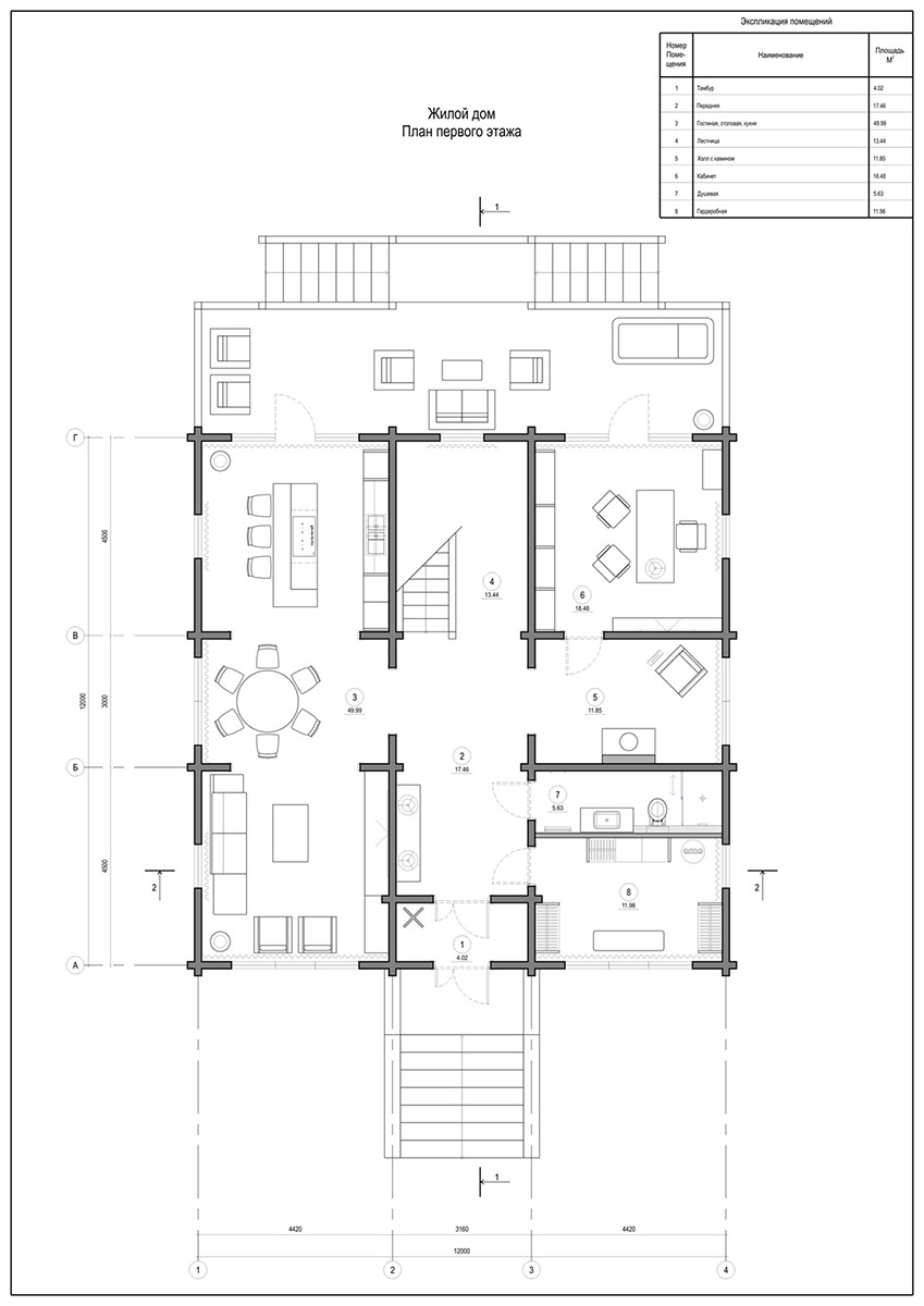
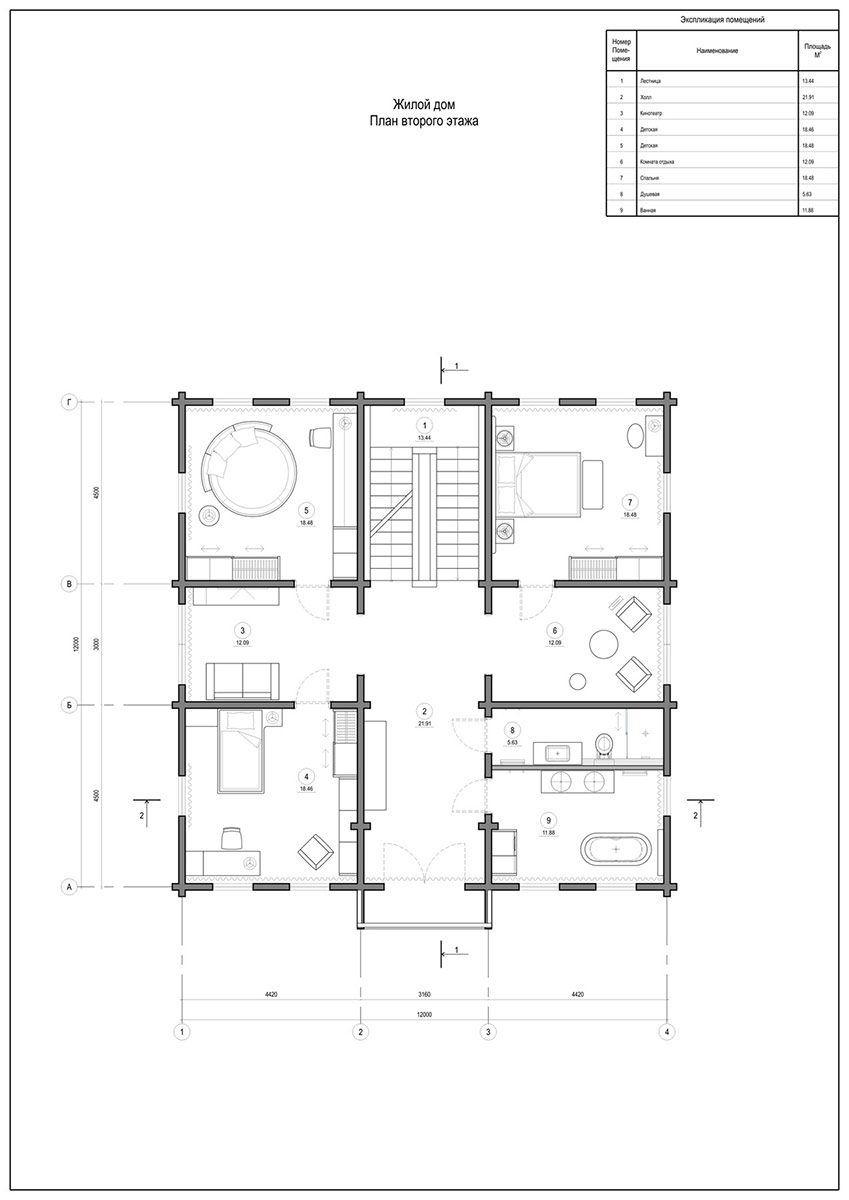
Основные характеристики жилого дома:
• лаконичность и надежность конструктивной схемы;
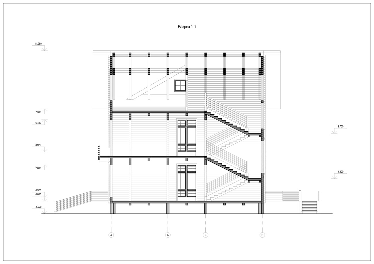
• высота этажа – 3600 мм;
• наличие чердака, который при увеличении состава семьи можно переоборудовать для размещения жилых помещений;
• отсутствие гаражей и технологических помещений в жилом доме.
В качестве материалов стен предлагается использовать клееный брус.
Окна и двери из металлопластика. Полы из массивной доски, натурального камня, керамической плитки.
Кровля — металлическая, фальцевая.
Водоотвод с кровлей организован в лотки и водосточные трубы, далее в общепоселковую ливневую канализацию.
Водоснабжение централизованное от водопроводной сети.
Канализация в общепоселковую канализационную систему с очистными сооружениями.
Отопление от газовой котельни, расположенной в хозблоке.
Газоснабжение — централизованное.
Электроснабжение от электрической сети.
На участке размещен хозблок, блокированный с хозяйственными постройками соседнего участка. Здание хозблока включает в себя автомобильную стоянку (по два машиноместа для каждого участка), банные комплексы, помещения котельных.
На участке также расположены открытая гостевая автомобильная стоянка на четыре автомобиля, барбекю, крытая веранда, спортивная площадка, дорожки и другие элементы благоустройства.
Технико-экономические показатели
Земельный участок:
Площадь земельного участка — 2791,503 м²
В том числе площадь застройки — 403,285 м²
Площадь озеленения — 881,048 м²
Площадь мощения — 835,154 м²
Площадь спортивной площадки — 668,865 м²
Жилой дом:
Площадь помещений — 265,31 м²
Хозблок:
Площадь помещений — 109,38 м²
Крытая веранда:
Площадь — 38,26 м²












