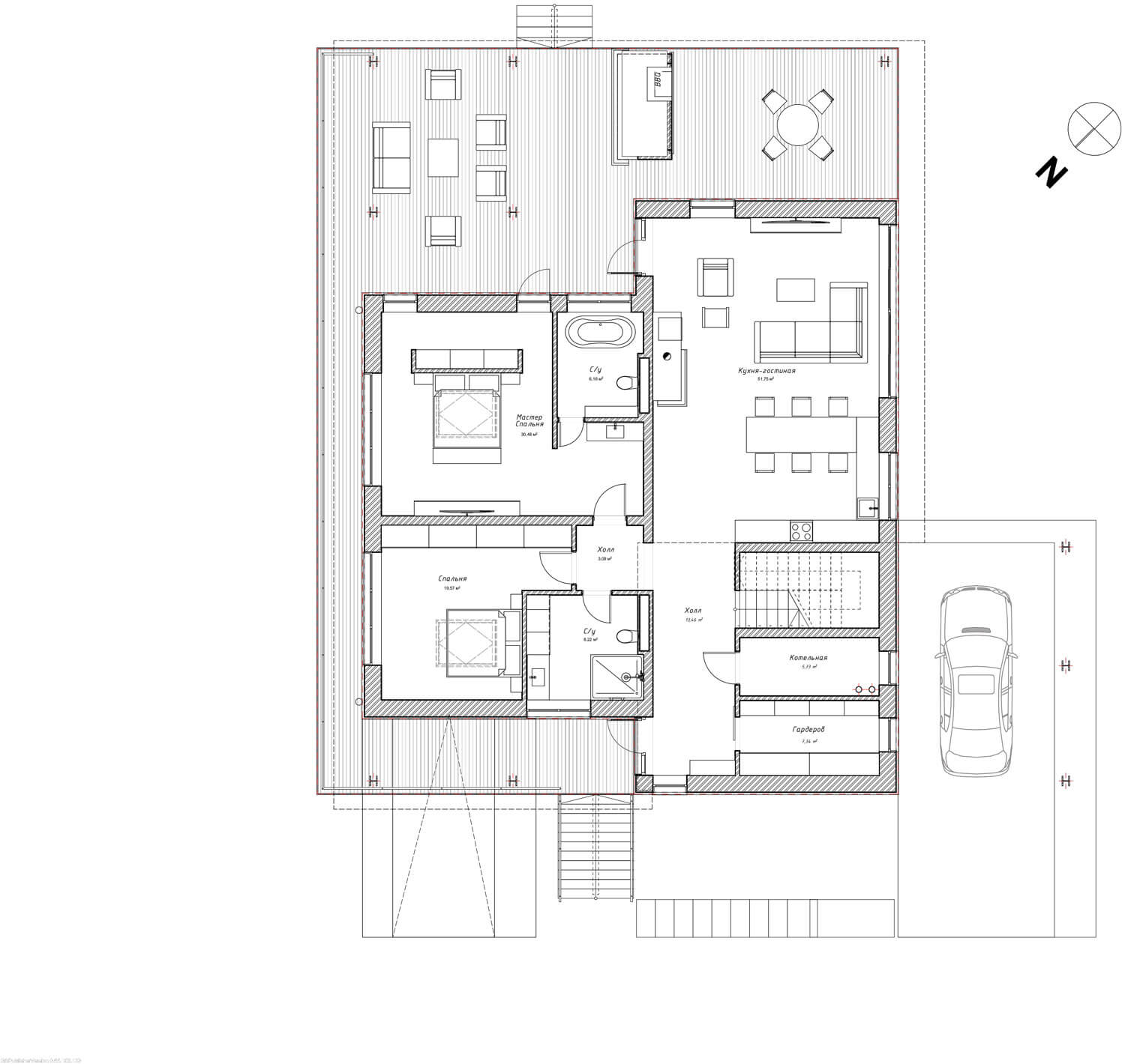
Проект Терек
Общая площадь — 377,9 м2 (план 22.07)
Площадь 1 этажа — 350,8 м2
Холл — 13,5; 3,1 м2
Гостиная-кухня — 51,8 м2
Спальня — 30,5; 19,6 м2
Санузел — 8,2; 6,2 м2
Гардеробная — 7,3 м2
Котельная — 5,7 м2
Терраса — 114,7 м2
Площадь 2 этажа — 27,2 м2
Лофт — 27,2 м2
Отзывы
Пока отзывов нет. Будьте первым.











