Проект жилого дома Вишневый сад
Двухэтажный дом с подвалом в сосновом лесу.
Отправной точкой при строительстве дома послужила идея большого панорамного витража, позволяющего стереть границу между жилым пространством и вековым лесом, граничащим с участком.
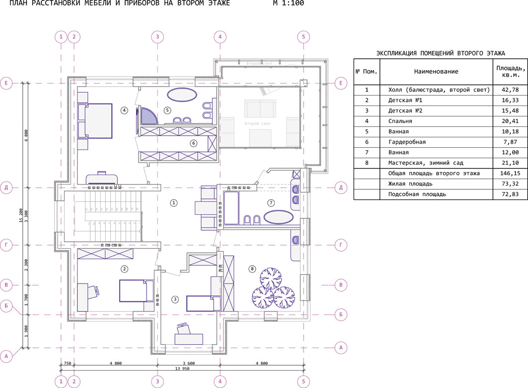
Дом расположен на участке в 2000 м². В нем предусмотрены просторная гостиная с кухонной зоной на первом этаже, а также все необходимые подсобные пространства для удобной жизни. На втором этаже размещены спальня родителей с ванной и гардеробной, две детские комнаты и зимний сад-мастерская для занятий хобби. В подвале дома находятся тренажерный зал и котельная.
Галерея второго этажа (над гостиной), с одной стороны, удобна для общения владельцев дома, а с другой — она выполняет важную роль в условиях сибирского климата. На галерее расположены дополнительные приборы отопления. К тому же отсюда легко обслуживать верхнюю часть 120-метрового стеклянного витража.
Дом реализован в 2016 году, сейчас владельцы дома заканчивают обустройство интерьеров и планируют разбить вишневый сад на придомовой территории.












