Прованс в клееном брусе
Стиль для загородного дома из клееного бруса выбрали самый логичный и уютный — прованс.
Дом с видом на озеро. Общая площадь 200 кв. м, для семьи из четырех человек. Планировка дома идеально подходит для комфортного отдыха всей семьи.
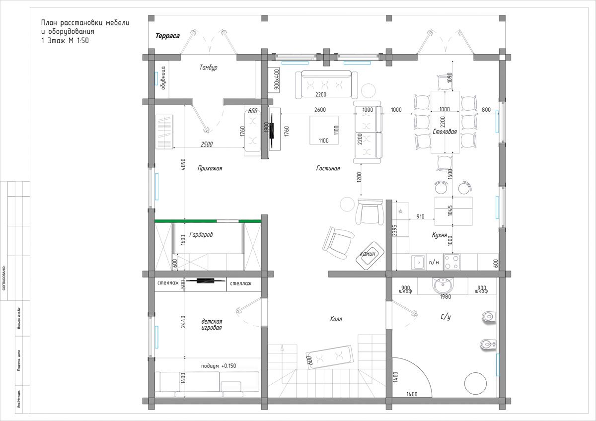
В огромной прихожей при входе — фреска с оленями, уютная консоль с состаренным рамочным зеркалом. В гостиной окна со «вторым светом», резная, заказная мебель и мягкая мебель в текстиле в стиле прованс. Гостиная соединяется большой аркой с кухней-столовой, в которой расположили стол на 8 персон. Кухня Marchi.
Над кессонными потолками первого и второго этажа трудились несколько специалистов. Их украшают резные балки из шпона и оригинальная укладка вагонки. Полы 1-го и 2 -го этажей выложены модульным паркетом — идеальное сочетание с балками клееного бруса. В оформлении кованых перил для лестницы использованы растительные мотивы, их дизайн поддерживают светильники лестничного марша, окрашенные в специально подобранные цвета.
Каминная печь — «буржуйка» выполнена из изразцов с деревенской тематикой. На втором этаже каминную трубу облагородили этим же материалом. Около камина разместили два одинаковых по форме кресла, но разных по цвету — в поддержку двух основных диванов гостиной.
Санузел первого этажа — огромное помещение площадью около 17 кв. м. В нем разместили мебель с умывальником в центре во всю стену. Напротив — душевая кабина и фитобочка, напротив которой — телевизор (идея хозяина дома). Единственная комната в доме, выходящая за рамки прованса, — детская игровая. Там главными героями стали Дарт Вейдер и космос. Черный потолок со звездами и мебель в виде космического корабля, а также роспись художника на тему «Звездных войн».
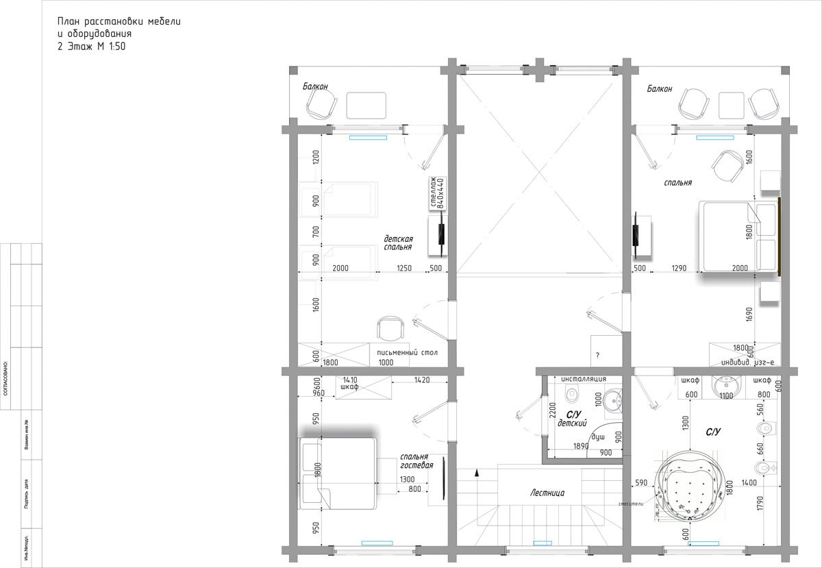
Второй этаж состоит из спальни для гостей, спальни и санузла для детей и спальни для хозяев с внутренним входом в санузел. В некоторых комнатах резная мебель подбиралась из готовой, в других изготавливалась на заказ. Спальня детей выполнена в морском стиле, с зеркалами-люками, огромной резной картой на стене. Стеллажи с резными боковинами, светильники в морском стиле и шкафы, выполненные на заказ по эскизам дизайнера. Из спальни хозяев можно попасть в санузел хозяев — просторное помещение с круглой ванной посередине. Текстиль для этого санузла подбирали светлых, нежных цветов и оттенков, в тон обоям на возводимой стене, скрывающей за собой инсталляции для унитаза и биде.
В ходе ремонта у заказчика появилась идея добавить в комнаты второго этажа маленькие окна под потолком, которые выходят на помещение гостиной со вторым светом. Идею проработали и добавили два полукруглых окна в две спальни, что очень оригинально украшает и сами спальни и вид на потолок с гостиной.
Колоссальная работа проделана в семимесячный срок.












