Множественный выбор
Выбрать номинацию

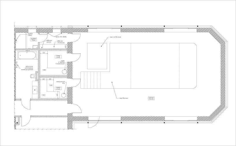
Разработка дизайна помещений спа-комплекса. Бассейн

В данном проекте представлен небольшой бассейн в частном доме. Задача заключалась в том, чтобы привнести в помещение нотку тепла и уюта при помощи простых и дешевых чистовых материалов.

На стенах решено использовать простую и недорогую плитку российского производства. Для визуального «усложнения» восприятия пространства бежевая плитка на стенах присутствует в двух вариантах: ровная и рельефная. Ее поддерживает керамогранит «под дерево», уложенный на полу.

Декоративные бра на стенах визуально добавляют разнообразия в оформление стен.

В помещении бассейна планируется также организовать тренажерный зал, поэтому в широкой части зала будут установлены тренажеры.

Бассейн скиммерный. Мозаичный пояс в чаше бассейна отделяет зону спа от зоны плавания

Объект расположен в Московской области, в 35км от МКАД.

Дизайн-проект находится на стадии реализации.

Выставка конкурсных проектов
ВЫСТАВКА КРАСИВЫЕ ДОМА - 2026

ФОТОГАЛЕРЕЯ
ЭКСПОЗИЦИИ
КОНКУРСНЫХ
ПРОЕКТОВ

КАК ЭТО БЫЛО
Выставка конкурсных проектов проходит дважды в год (Весна | Осень)

Отзывы

Можно использовать **жирный**, *курсив*, [ссылку](https://example.com), списки через - или 1.
Пока отзывов нет. Будьте первым.