RELAX-HOUSE
Удивительное, оторванное от цивилизации место на берегу озера. Единение с природой, возможность созерцать и медитировать — основа концепции всего комплекса. Визуальная связь всех построек с берегом озера, возможность находиться внутри и не терять связи с волшебной силой потрясающих видов. Панорамные окна дома и веранды в нашем климате — место отдыха и общения на природе, прозрачная дверь и окна бани ни на секунду не прерывают общение с волшебным окружением.
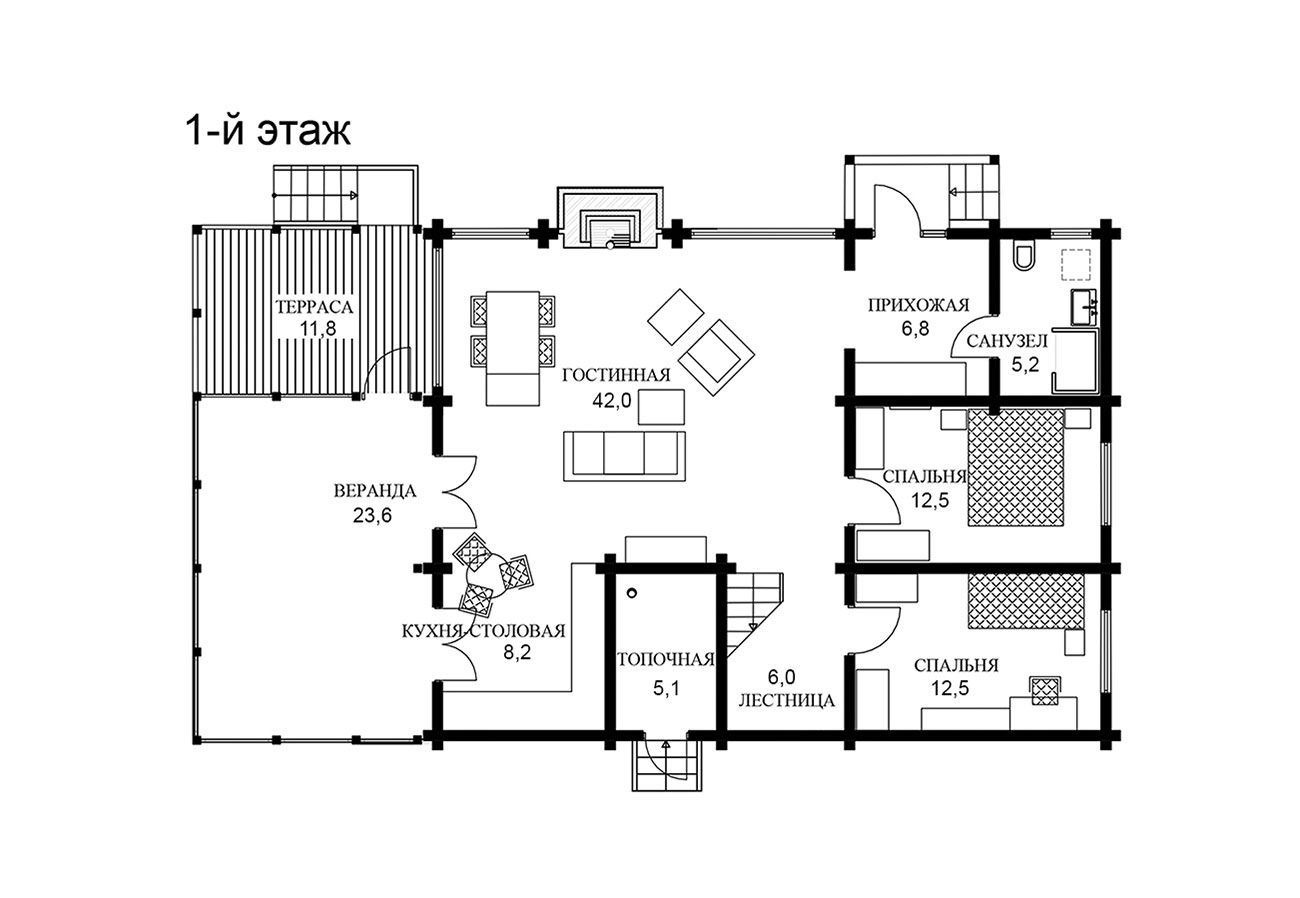
Планировка
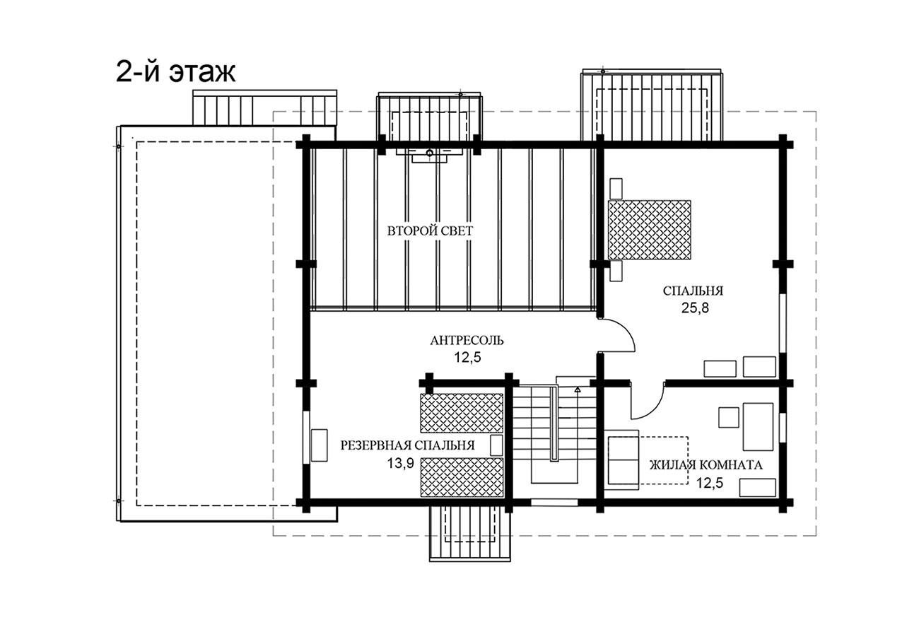
Дневная зона дома: прихожая, двусветная гостиная с кухней-столовой и остекленной верандой, две спальни и душевая. Деревянная лестница ведет на антресоль второго этажа, где находятся дополнительные спальни. Котельная с отдельным входом с улицы.
Баня — традиционная парная с комнатой отдыха и террасой в непосредственной близости от пирса, который приспособлен для купания, ловли рыбы, лодочного причала.
Летний павильон служит исключительно местом приготовления барбекю и отдыха на открытой террасе в хорошую погоду.











