Репино СПА
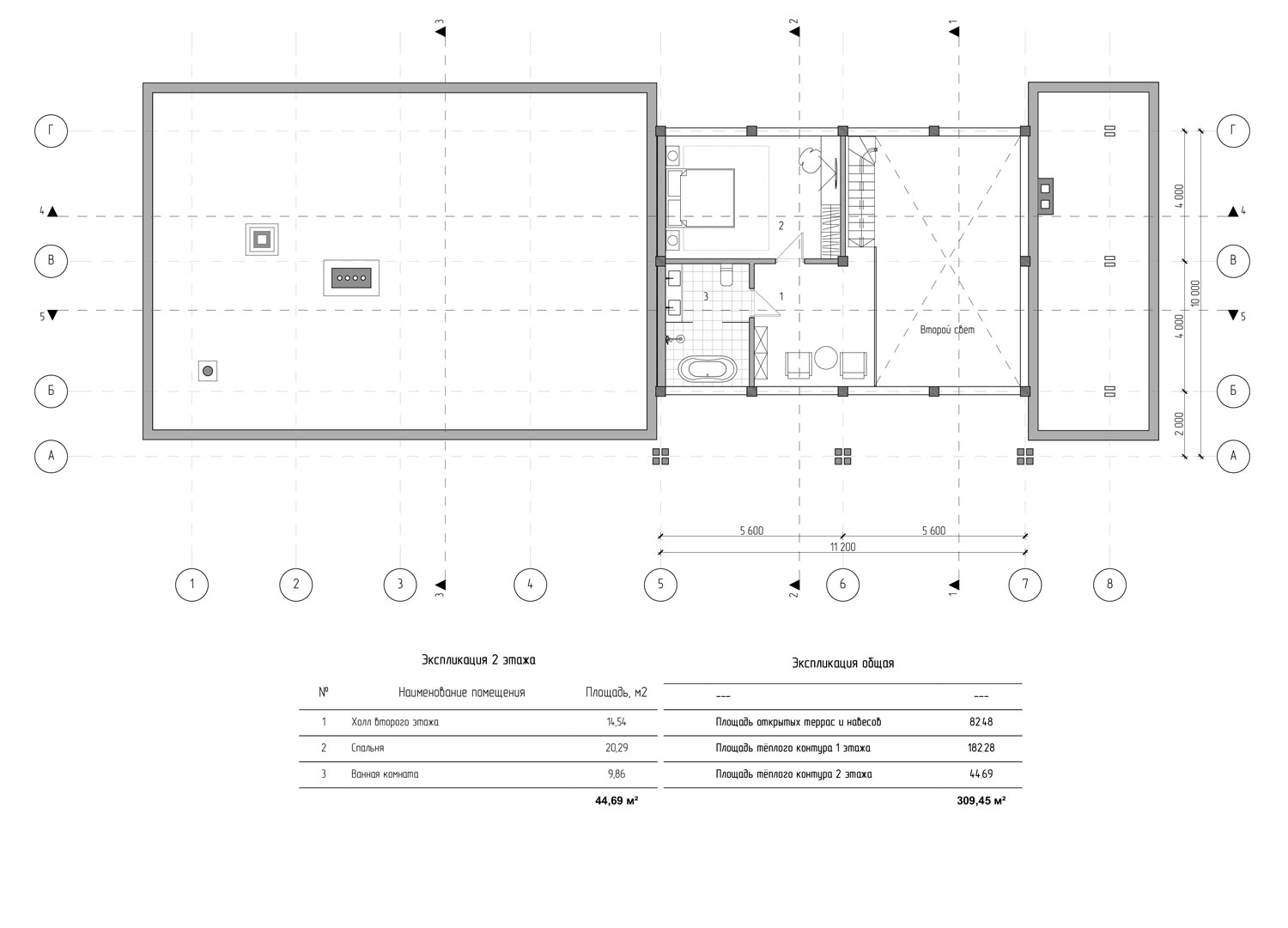
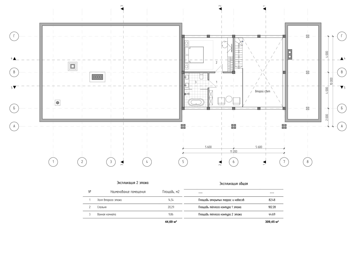
Банный комплекс расположен в городе Санкт-Петербург, посёлок Репино. Общая площадь комплекса составляет 309,45 м².
Стилистическое решение интерьера продиктовано архитектурным образом, в котором сочетаются необработанные брёвна Keloпервого этажа и клеёного бруса по технологии фахверк второго. Многообразная и натуральная фактура бревенчатых стен служит акцентом, а строгие клеёные конструкции являются связующим элементом лаконичного интерьера.
Пространство бассейна и спа зоны с остеклением в верхней части крыши добавляет простора и лёгкости, наполняя помещение рассеянным светом. Интерьеры сформированы без использования декоративных и цветовых акцентов, где лаконичная мебель серых оттенков и акцентное освещение тёплого света, создаёт уютную и умиротворяющую атмосферу.





















