Множественный выбор
Выбрать номинацию

Ресторан КОНКЕЙВ

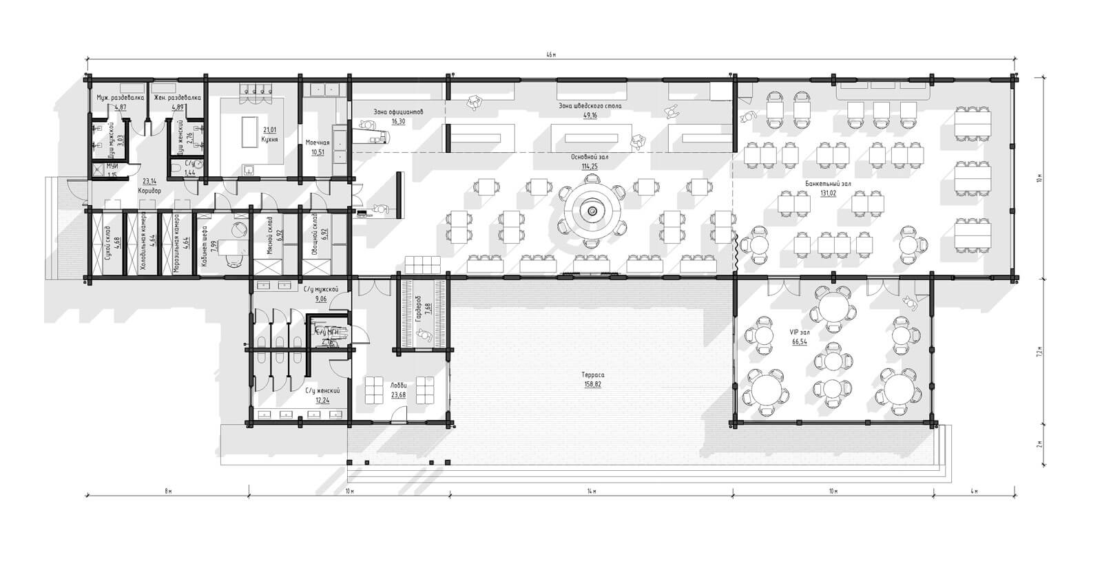
Планировочное решение ресторана сформировано 3 отдельными зонами, каждая из которых может работать обособленно. Так VIP зал – это стеклянный объем с высокими потолками и более приватной атмосферой. Здесь можно проводить небольшие мероприятия и бизнес встречи. Интерьер зала предполагает открытые конструктивные элементы – фермы, дизайнерские светильники и множество зелени.

Банкетный зал – это пространство для крупных праздников. Главная особенность зала – панорамное остекление высотой около 6м. Перед ним отлично разместиться сцена или президиум. В зависимости от количества гостей зал можно объединить с основным или VIP залом.

Основной зал – центральное пространство, где размещается зона встречи гостей и шведский стол. Главная особенность зала – подвесной камин – очаг ресторана и световые фонари в крыше.

Более того ресторан имеет зону террасы, которая в зависимости от сезона может использоваться как площадка для мероприятий, летней кухни и др.

Кухня спроектирована с учетом всех основных требований и нормативов. Планировочное решение подходит для ресторана с самой разной кухней. Однако наша концепция предполагает свежие фрукты и овощи, а также фермерское мясо.

Ресторан рассчитан на единовременную посадку 180-200 человек. Форма работы ресторана предполагает использование шведского стола и официантов работающих на обслуживание зоны выдачи и чистоту зала. Во время мероприятий и банкетов формат работы может быть смешанный, либо полностью на обслуживании официантов.

На фасаде симметрию объекту придает входной блок. В нем гостей встречает просторное лобби с гардеробом и санузлами. При работе мы думали об инклюзивности этого места и учитывали необходимые требования комфорта людей с особенностями.

В экстерьере особенностями ресторана стали сложная геометрия объекта и арочные окна, которые создают динамику фасада в комплексе с панорамным остеклением. Входную группу и интерьеры украшают геометричные пано.

Выставка конкурсных проектов
ВЫСТАВКА КРАСИВЫЕ ДОМА - 2026

ФОТОГАЛЕРЕЯ
ЭКСПОЗИЦИИ
КОНКУРСНЫХ
ПРОЕКТОВ

КАК ЭТО БЫЛО
Выставка конкурсных проектов проходит дважды в год (Весна | Осень)

Отзывы

Можно использовать **жирный**, *курсив*, [ссылку](https://example.com), списки через - или 1.
Пока отзывов нет. Будьте первым.