Множественный выбор
Выбрать номинацию

Резиденция на побережье Черного моря

Данный проект разработан для семьи ценителей полного эмоционального погружения в естественный природный ландшафт морского побережья. Дом расположен в гористой местности, на живописном берегу Черного моря. На юге участок граничит с морским побережьем, на севере — с горами. Все основные визуальные пространства дома максимально открыты южному морскому пейзажу. Видовые зоны интерьера перетекают в экстерьер моря, неба и гор.

Заказчики — люди молодые и спортивные — не чужды, однако, и современного искусства, что артикулируется несущей конструкцией, напоминающей стилизованного жирафа. Конструктивный «жираф», несомненно, является своего рода арт-объектом и бесспорной «изюминкой» данного проекта. Спортзал со СПА-комплексом, включающим в себя хамам, сауну с массажной, а также открытый бассейн с переливом, подчёркивает, в свою очередь, ориентированность заказчиков на активный и здоровый образ жизни. Стеклянная стена зрительно объединяет геометрическую водную гладь бассейна и бескрайние морские дали.

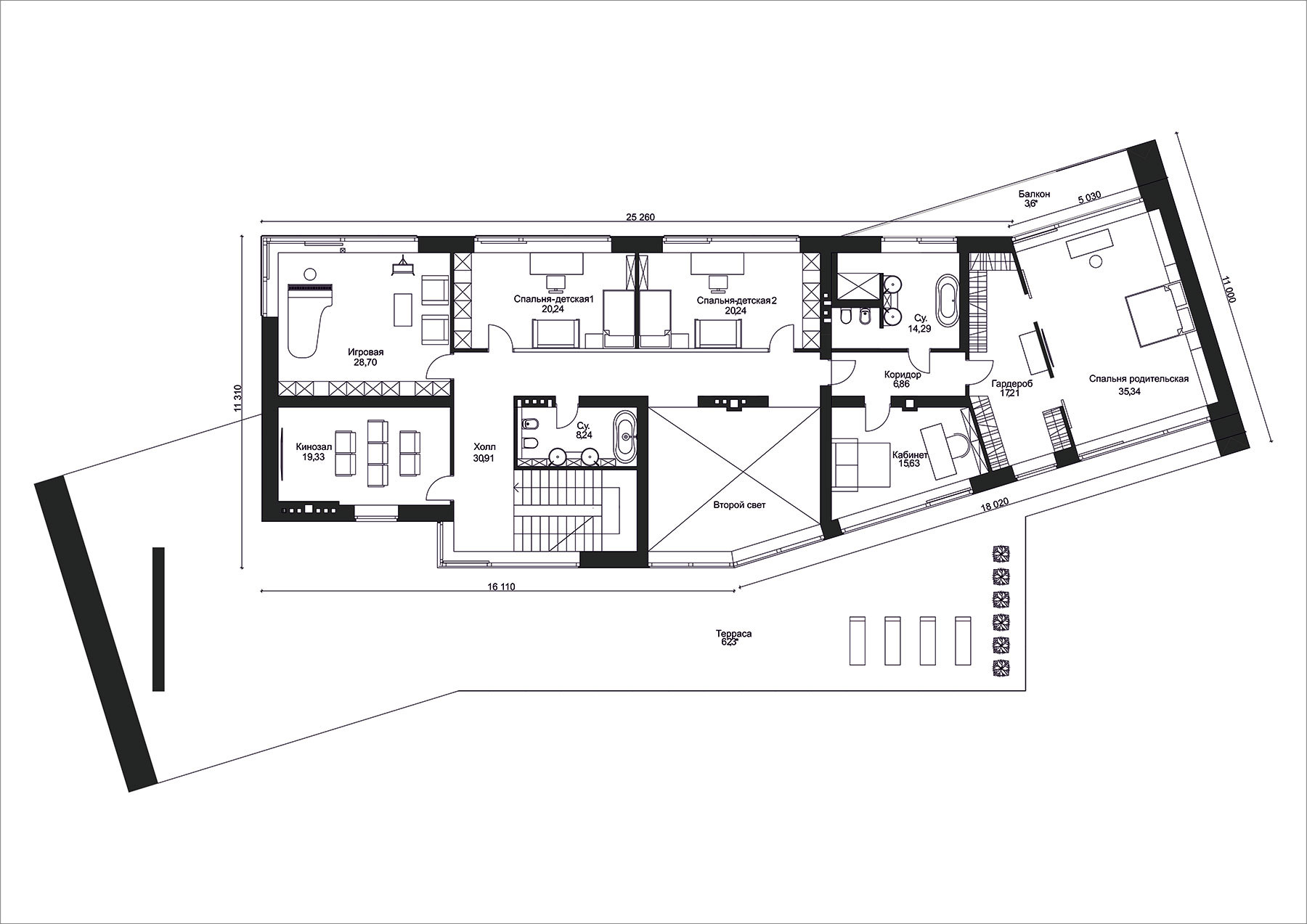
Здание трехуровневое с техническим цоколем и двумя жилыми этажами. Первый этаж характеризуется открытой планировкой и предназначен для комфортного приёма большого количества гостей и различных вариантов проведения совместного досуга. На втором этаже расположены спальни, детские и все помещения, требующие уюта, функциональной и эмоциональной защищённости.

Дом выполнен в средиземноморском стиле, что вполне логично и естественно для данного участка и климата.

Общая площадь дома — 793.52 м².

Выставка конкурсных проектов
ВЫСТАВКА КРАСИВЫЕ ДОМА - 2026

ФОТОГАЛЕРЕЯ
ЭКСПОЗИЦИИ
КОНКУРСНЫХ
ПРОЕКТОВ

КАК ЭТО БЫЛО
Выставка конкурсных проектов проходит дважды в год (Весна | Осень)

Отзывы

Можно использовать **жирный**, *курсив*, [ссылку](https://example.com), списки через - или 1.
Пока отзывов нет. Будьте первым.