Резиденция Сады Майендорф 93-3
Частная трехэтажная резиденция площадью 1437 м² расположена на участке в 1700 м² в поселке «Сады Майендорф» (деревня Жуковка, Московская область).
Для отделки фасадов использованы клинкерный кирпич и натуральный камень доломит, а для мощения территории — натуральный термообработанный гранит и деревянный декинг.
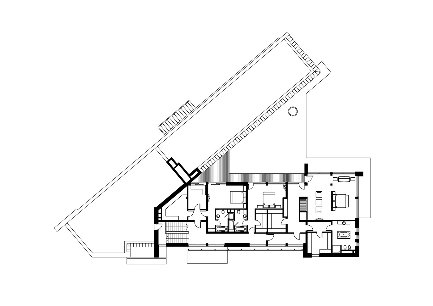
Форма дома повторяет форму треугольного участка. При посадке удалось сохранить столетние сосны, окружающие коттедж.
Из основных помещениях дома с панорамным остеклением открывается вид на просторное патио, образованное двумя корпусами, расположенными под углом 45 градусов. На первом и втором этажах расположены гостиная, спа-комплекс, патио-терраса, пять спален с балконами и автономная зона для охраны и водителей. На цокольном этаже находятся гараж на 7 машин, производственная кухня и две квартиры-студии для персонала.











