Романтичная классика
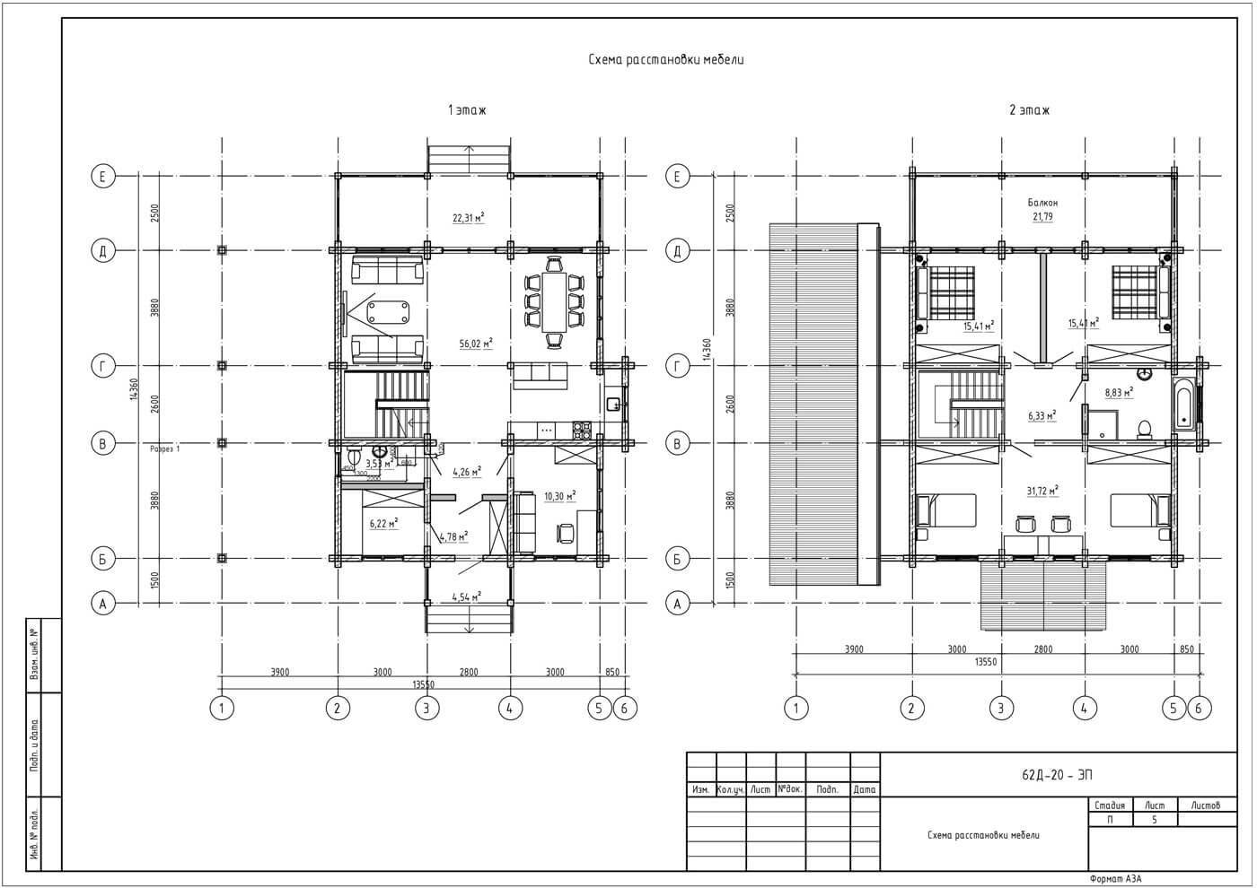
Индивидуальный жилой дом КБ-240 сочетает в себе традиционный для деревянных домов вид в сочетании с современной планировки. Это дом для тех, кто ценит экологичность деревянных домов, но не хочет идти на компромиссы в вопросах комфорта. Дом встречает нас гардеробной зоной, проходя которую мы видим двери, ведущие в гостевой санузел и кабинет хозяина дома. Большую часть первого этажа занимает светлая кухня-гостиная с выступающей зоной мойки с видом на посадку и кухонным островом. Отсюда же можно попасть на крытую террасу, которая отсылает к кантри стилю. Здесь можно разместить обеденный стол и принимать гостей в летнее время.
Все спальные комнаты вынесены на второй этаж дома. Это решение позволяет выделить приватную часть дома и не мешать домочадцам.
Архитектура дома отсылает к классическому для клееного бруса финскому стилю. Двускатная крыша, выносы клееного бруса над террасой и балконом и окна с белыми наличниками придают дому особый шарм.












