Ручьи Алисы
Городской дом
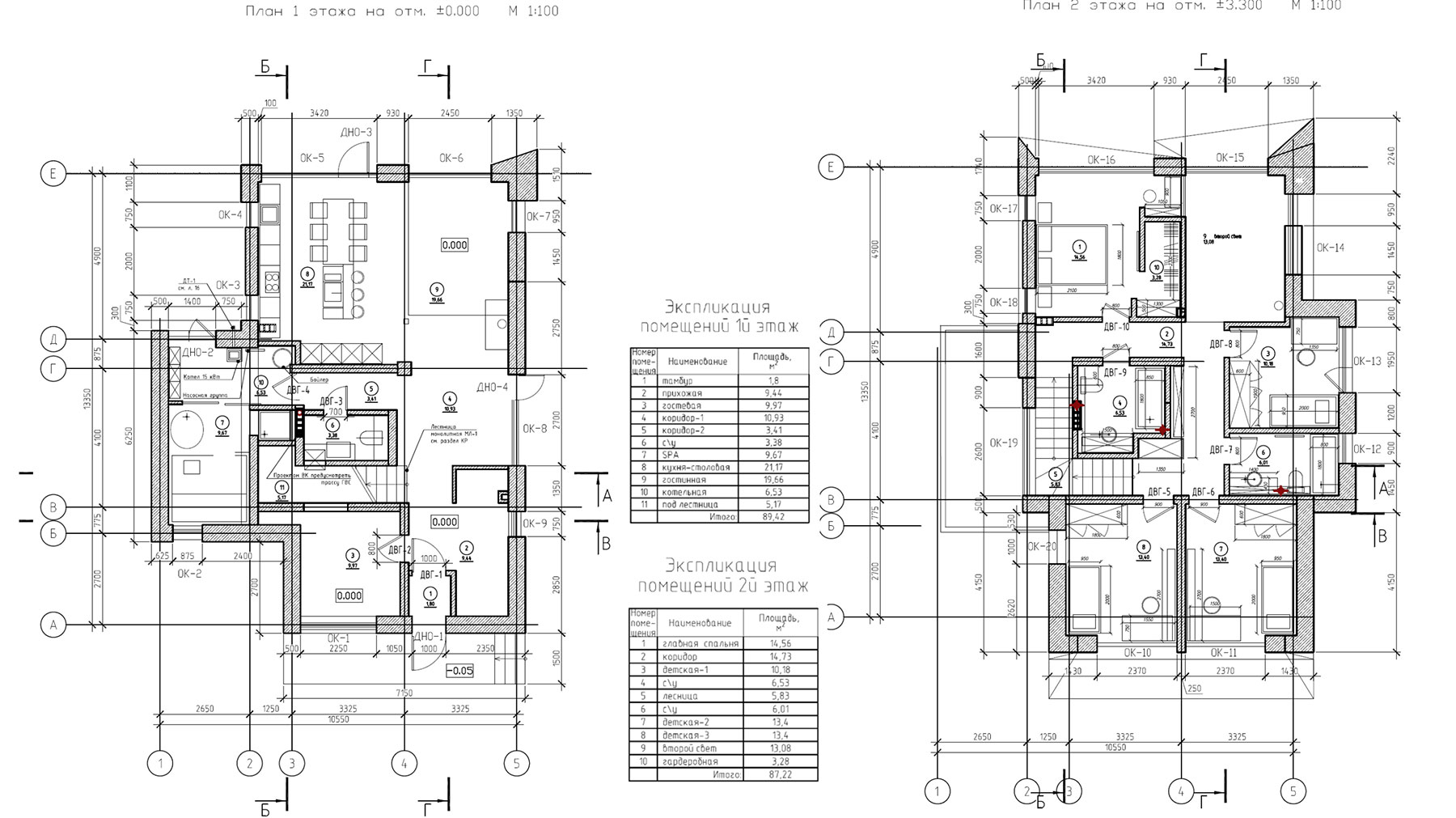
Главный фасад, выходящий на улицу, сформирован выдвинутым над входной группой объемом второго этажа. В этом объеме размещены две комнаты для детей. Малая площадь этих помещений компенсируется высотой потолка. Подъем высоты перекрытия над главным фасадом, динамичный наклон кровли — прием, позволяющий создать образ «Дома-корабля» и установить в детских двухъярусную мебель.
Все «приватные» фасады внутреннего двора — композиция из соразмерных человеку архитектурных объемов. Их дизайн отличает милая небрежность дачных построек. Это впечатление поддерживает и выбор фасадной отделки: как будто кустарно сколоченная обшивка первого этажа, фрагменты реечных фасадов, штукатурка на основе каменной крошки, не требующая идеального качества нанесения.
На не видимый с улицы фасад вынесены объем небольшой спа-зоны с сауной и купелью и скрытая от посторонних глаз терраса.
Свет проходит в дом со всех сторон: утром он проникает в спальню и кухню-столовую, а вечером солнце освещает гостиную и две большие террасы.












