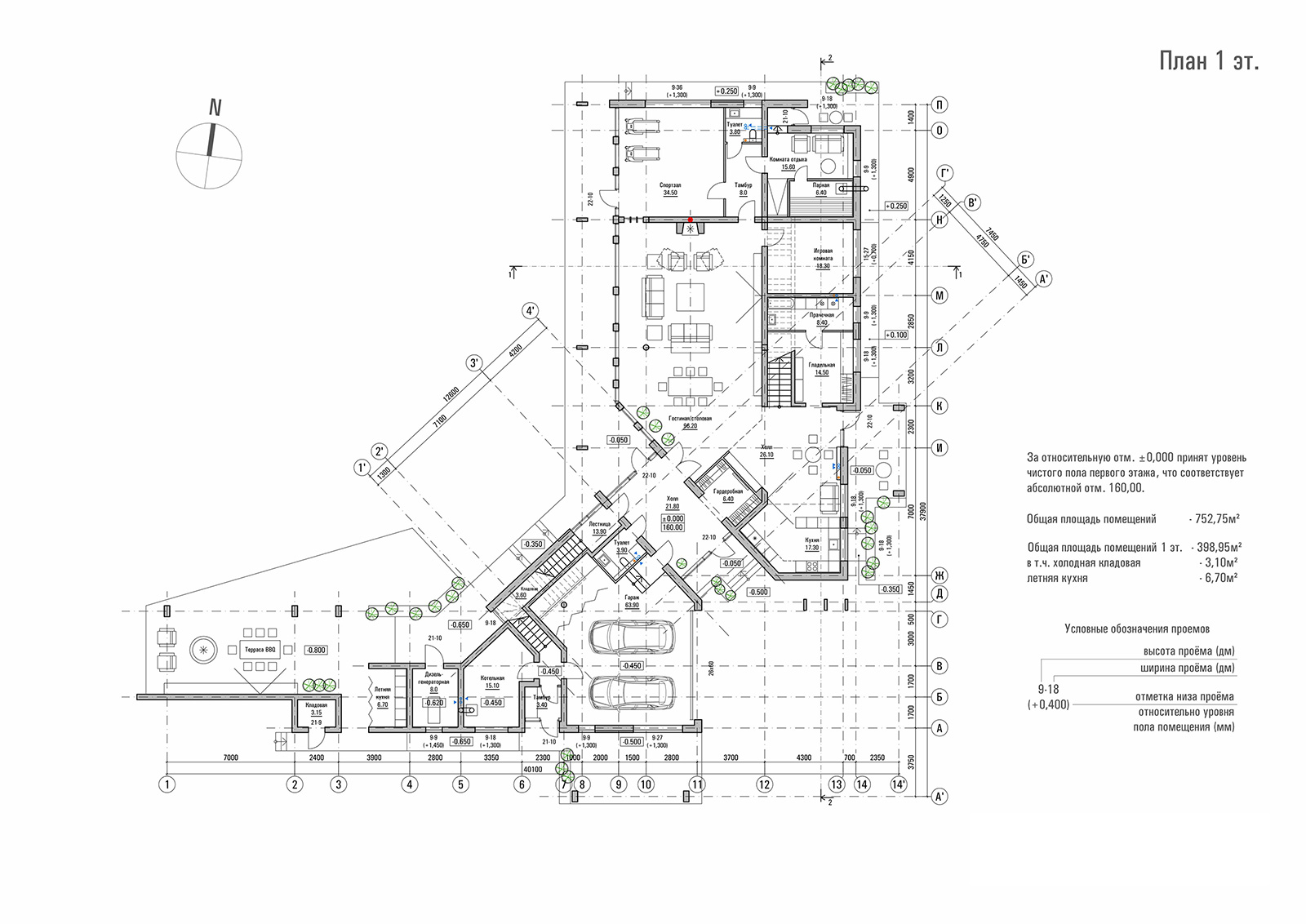
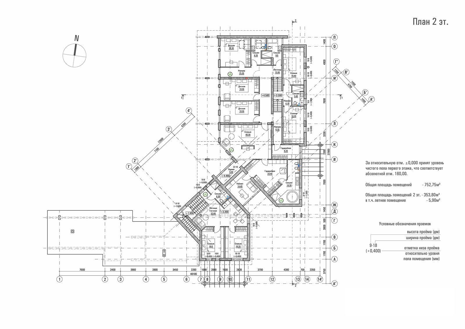
SAM House
Дом расположен в восточной части участка. Граница западной части участка примыкает к благоустроенной набережной реки и является зоной наилучших видов. План дома напоминает амфитеатр, который и послужил основным лейтмотивом для создания функциональной схемы. Дом состоит из трех различных функциональных блоков. Протяженная терраса западной части, объединяет блоки в единую композицию.
Иерархия расположения блоков подчеркнута рельефом участка. Наивысшая точка участка в северо-восточной части представлена 2-х этажным жилым блоком. Юго-восточный угол занимает объем гаража с жилой частью для персонала. Композицию завершает блок технических помещений, перетекающий в открытую террасу с BBQ, расположенную вдоль южной границы участка. Внешние стороны дома, обращенные на соседние участки, сформированы второстепенными помещениями с минимальным количеством окон. Внутренняя часть основного блока, обращенная на запад, представляет собой сплошной витраж. Такое расположение объемов и функциональных зон позволило добиться максимальной приватности жилой части и двора, раскрыв все основные помещения в сторону наилучших видов.
Общая площадь помещений дома: 752,75 м²
Площадь помещений 1 этажа: 398,95 м²
Площадь помещений 2 этажа: 353,80 м²












