Shab 98
Главная особенность двухэтажного пентхауса на Шаболовке с большой террасой — сплошное фасадное остекление и впечатляющий вид на городские пейзажи. Именно поэтому интерьер, разработанный авторами проекта, решен в природных оттенках: палитра не спорит с экстерьером, а, скорее, становится его продолжением.
При этом современный дизайн и дух мегаполиса органично сочетаются с домашним уютом.
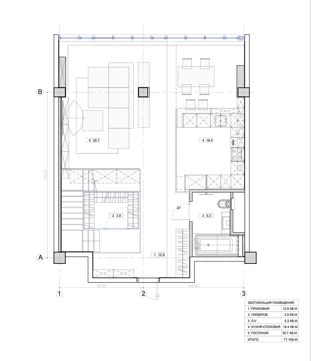
Первый этаж пентхауса — единое пространство с прихожей, гостиной и кухней. Конструктив лестницы организован вокруг прозрачного гардероба: стеклянные перегородки сохраняют освещенность и не замыкают прихожую в глубине квартиры. Гардеробная и лестница стоят на подиуме: со стороны гостиной в нем организованы системы хранения, которые переходят в композицию под телевизором. Стену замыкает камин: отделка портала вторит дизайну кухни, создавая ощущение единства. Кухню зонирует настоящий трансформер — система раздвижных реечных перегородок. Каждое полотно можно независимо сдвигать, целиком или частично открывая кухню к гостиной. Гарнитур с лаконичными матовыми фасадами утоплен в стену и не отвлекает внимание от основных архитектурных решений.
Второй этаж — приватная территория владельцев, где расположены спальни и санузлы. В мастер-спальне изголовье формируют системы хранения с распашными дверцами. Боковины и часть потолка у шкафа для одежды декорированы зеркалом, а пространство справа и слева от кровати — глянцевыми панелями: таким образом, система хранения будто растворяется в пространстве. Темная плитка под мрамор в санузле контрастирует со светлой спальней. Частично опущенный потолок подчеркивает объем душевой и служит основой для лейки на комфортной высоте.
Терраса — это 40 м² личного пространства на крыше, а связь с экстерьером достигается за счет прозрачного потолка. Летом сдвижную стеклянную кровлю можно полностью открыть и проводить время на свежем воздухе. Без уютного камина не обошлось и здесь: так, терраса стала всесезонным местом для отдыха и смотровой площадкой.











