Шале с характером
Индивидуальный жилой дом КБ-228 построен по авторскому проекту в коттеджном поселке «Никольская Усадьба» в 20 км от г. Казань. Это загородный дом для постоянного проживания в финском стиле для молодой семьи.
Архитектура дома формируется сочетанием односкатной и двускатной крыш, которые зрительно делят объем здания на 3 части. Центральная часть отведена под кухню-гостиную, которая имеет высокие потолки по уклону крыши до 5,09 м и второй свет. В других помещениях, в которых проводится меньше времени – высота составляет 2,75 м в низкой точке и 3,24 м в высокой точке. Такой объем дает много воздуха в комнатах и дополнительный комфорт проживания. Фасад выполнен в трендовых натуральных и минималистичных цветовых сочетаниях.
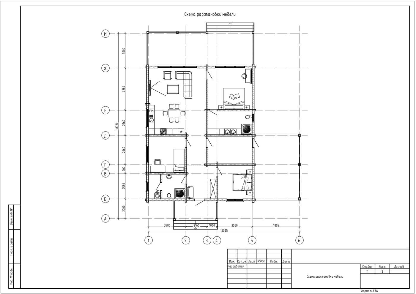
Главная задачей проекта стало стремление создать удобную и просторную планировку одноэтажного дома при ограниченных размерах участка, при этом продумать расположение зон отдыха, детской площадки, бани, хоз.блока и навеса на 2 автомобиля. Авторам проекта удалось скомпоновать строения на участке таким образом, чтобы ландшафтные решения зрительно увеличивали свободные зоны и делали их максимально функциональными. Дом в плане имеет вытянутую форму, длиной 19,4 м в осях. Решение с проходной кухней-гостиной позволило минимизировать количество коридоров, оставив при этом жилые и детскую комнату с видом на юг. Окна мастер-спальни ориентированы на север, и для дополнительного источника естественного света в этой комнате предусмотрено мансардное окно. Большая ванная комната вмещает ванную, душевую, унитаз и две раковины.
Вход в дом осуществляется с галереи террасы таким образом, чтобы перемещаясь по участку человек видел красивый главный фасад, обращенный во двор Сам дом, в свою очередь, изолирует зоны отдыха от шума дороги.
Технология строительства – клееный брус (ель и сосна) сечением 200х180 мм.










