Множественный выбор
Выбрать номинацию

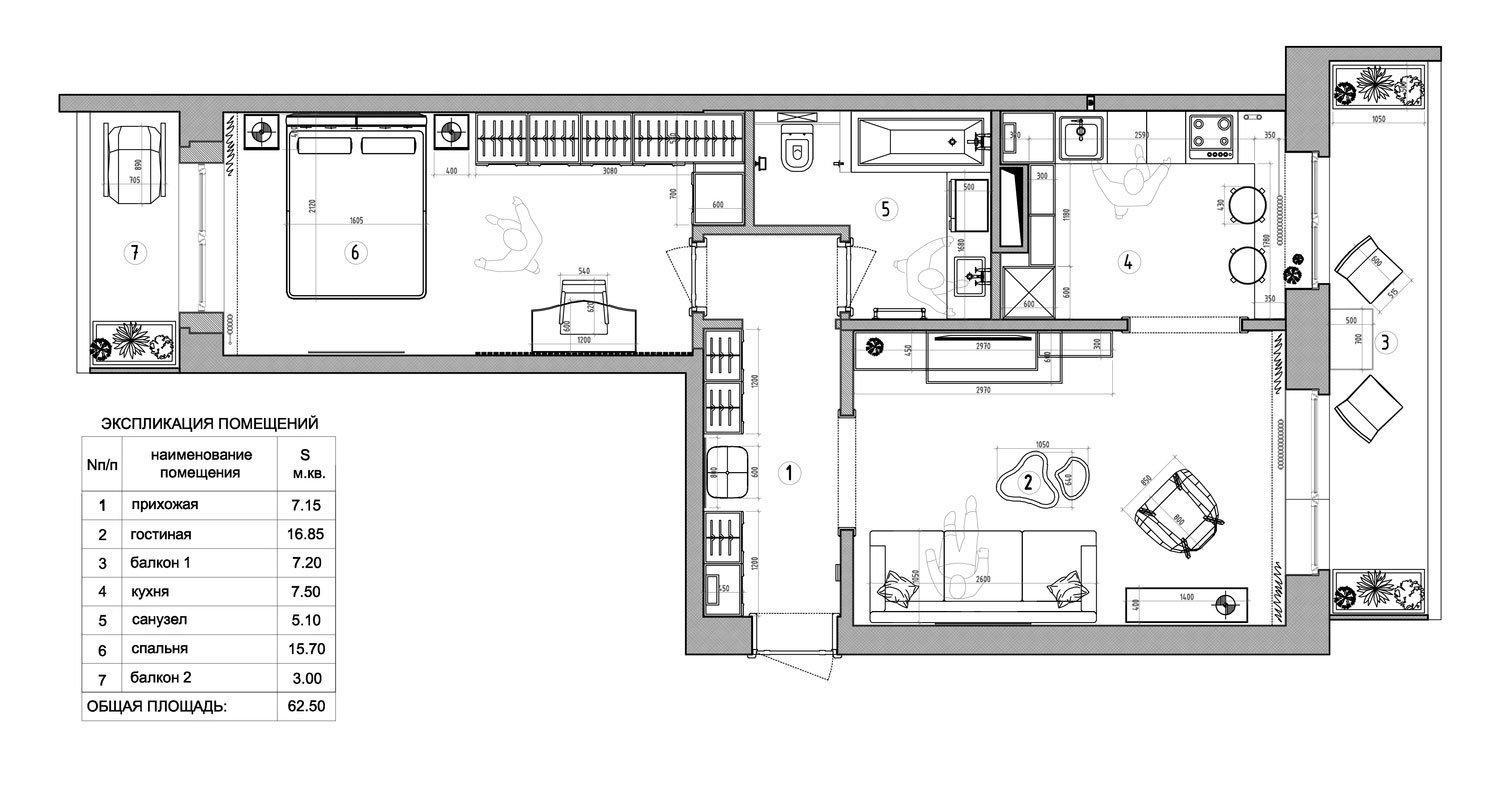
Скандинавские ноты

Интерьер создан для молодой девушки, вернувшейся в Россию из Европы после обучения.

Ее основным желанием было сохранение европейских стандартов архитектуры и дизайна в своей новой квартире.

При работе над стилистической концепцией интерьера команда дизайнеров поставила во главу ряд трендов: эргономичную и функциональную архитектуру пространства; благородные, но смелые тона и оттенки; современные скандинавские мотивы в противопоставлении классическим элементам.

Демократичность, свежесть, молодость — эти темы образуют единую сюжетную линию, пронизывающую все пространство интерьера и органично сочетающуюся с видами центрального столичного района.

Выставка конкурсных проектов
ВЫСТАВКА КРАСИВЫЕ ДОМА - 2026

ФОТОГАЛЕРЕЯ
ЭКСПОЗИЦИИ
КОНКУРСНЫХ
ПРОЕКТОВ

КАК ЭТО БЫЛО
Выставка конкурсных проектов проходит дважды в год (Весна | Осень)

Отзывы

Можно использовать **жирный**, *курсив*, [ссылку](https://example.com), списки через - или 1.
Пока отзывов нет. Будьте первым.