Со вкусом меда
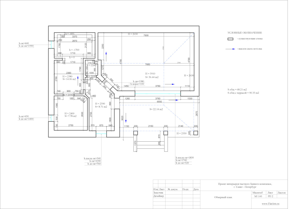
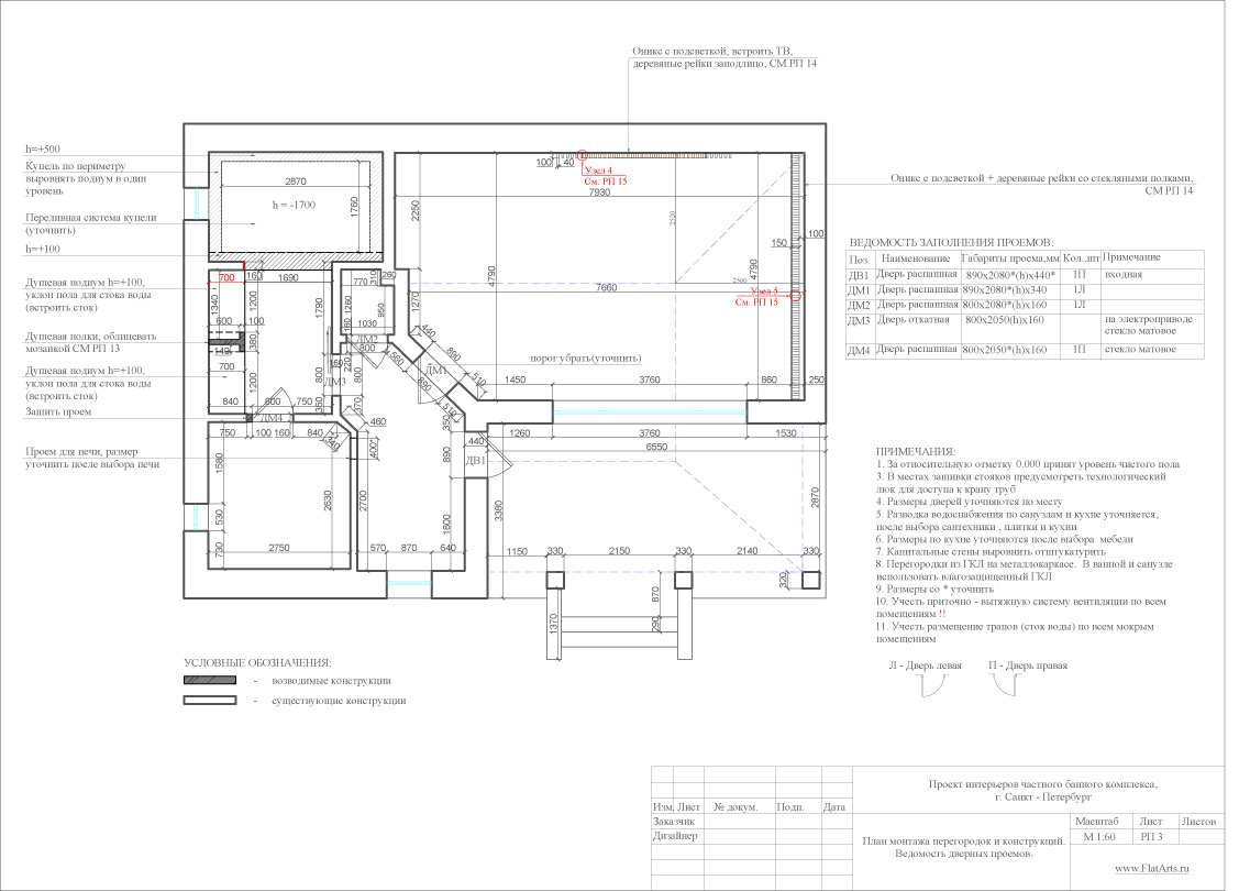
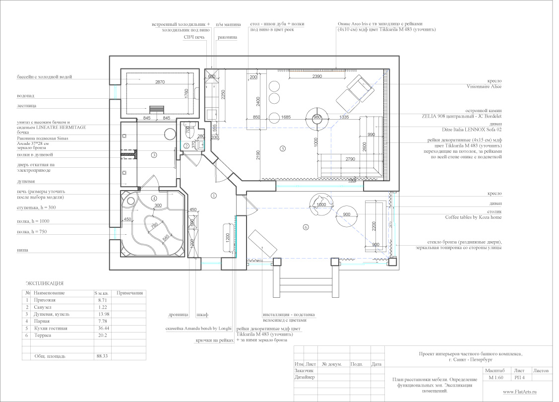
Банный комплекс представляет собой отдельно стоящее строение площадью 80 м2 на участке с загородным домом. Оно включает в себя веранду, холл, сауну, душевую с купелью и помещение для отдыха с эффектным подвесным камином.
В данном проекте в мокрой зоне использованы мозаика и плитка «под мрамор» от итальянской компании Atlas Concorde.
Для отдыха предназначена кухня-гостиная, декорированная деревянными рейками и ониксом, излучающим янтарно-медовое теплое сияние. В ее интерьере звучат нотки живой природы: потолок решен при помощи лаковых МДФ панелей в виде сот, которые повторяют дизайн напольной плитки от итальянской фирмы Via Emilia.
Отзывы
Пока отзывов нет. Будьте первым.
























