Софка в соснах
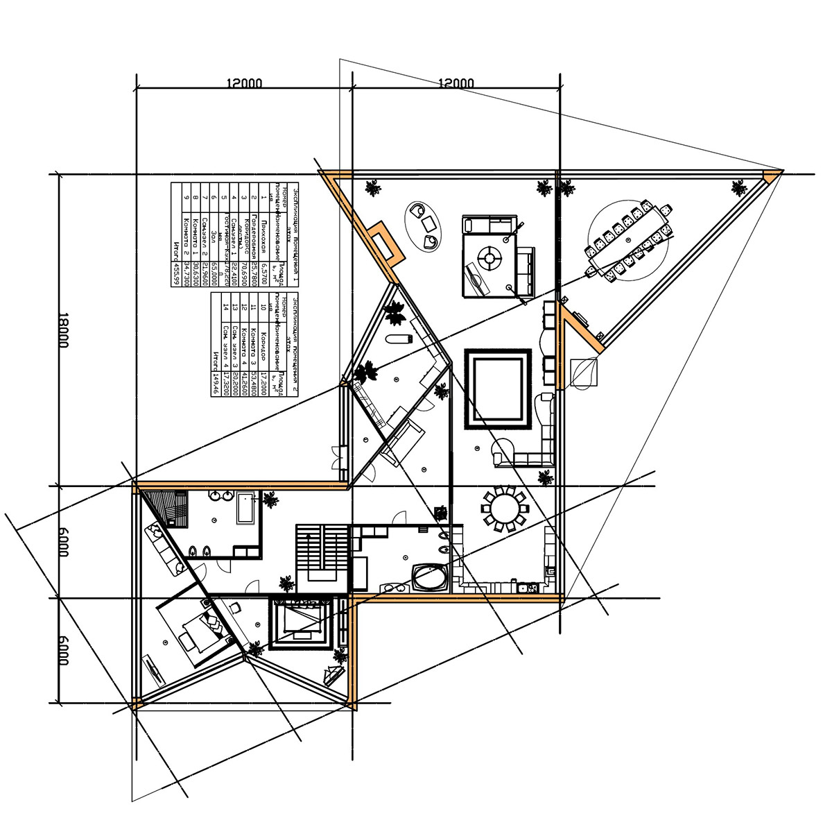
«Софка в соснах» — это главный дом гостевой усадьбы, расположенной на Алтае. Леса и горы — основное достоинство этой усадьбы. Цель проекта — сделать максимально интегрированный в ландшафт дом, вокруг которого будут затем выстроены комплексные сооружения и гостевые домики.
Сам образ дома это — это вид растянутой на стойках тент-палатки, временный приют для путешественников. Здесь можно спрятаться от непогоды и всегда найти друзей. Здесь со всех сторон есть выход наружу.
Для возможности возведения в удаленной местности выбрана каркасная конструкция. Некоторые модули унифицированы и привозятся к монтажу уже готовыми. Остекление разбито на сборную витражную конструкцию, которая снаружи объединена декоративной накладной решеткой.
Цвет дома — это часть его мимикрирующего под внешнюю среду образа.
Обожженное дерево фасадной зашивки из придает тонировке эффект перелива птичьего пера.
И зимой, в снегах, он будет прекрасен своей изумрудной графичностью.
Архитектурный «текучий» образ здания дает возможность в дальнейшем его достройки-пристройки без нарушения архитектурной концепции.










