Современная элегантность
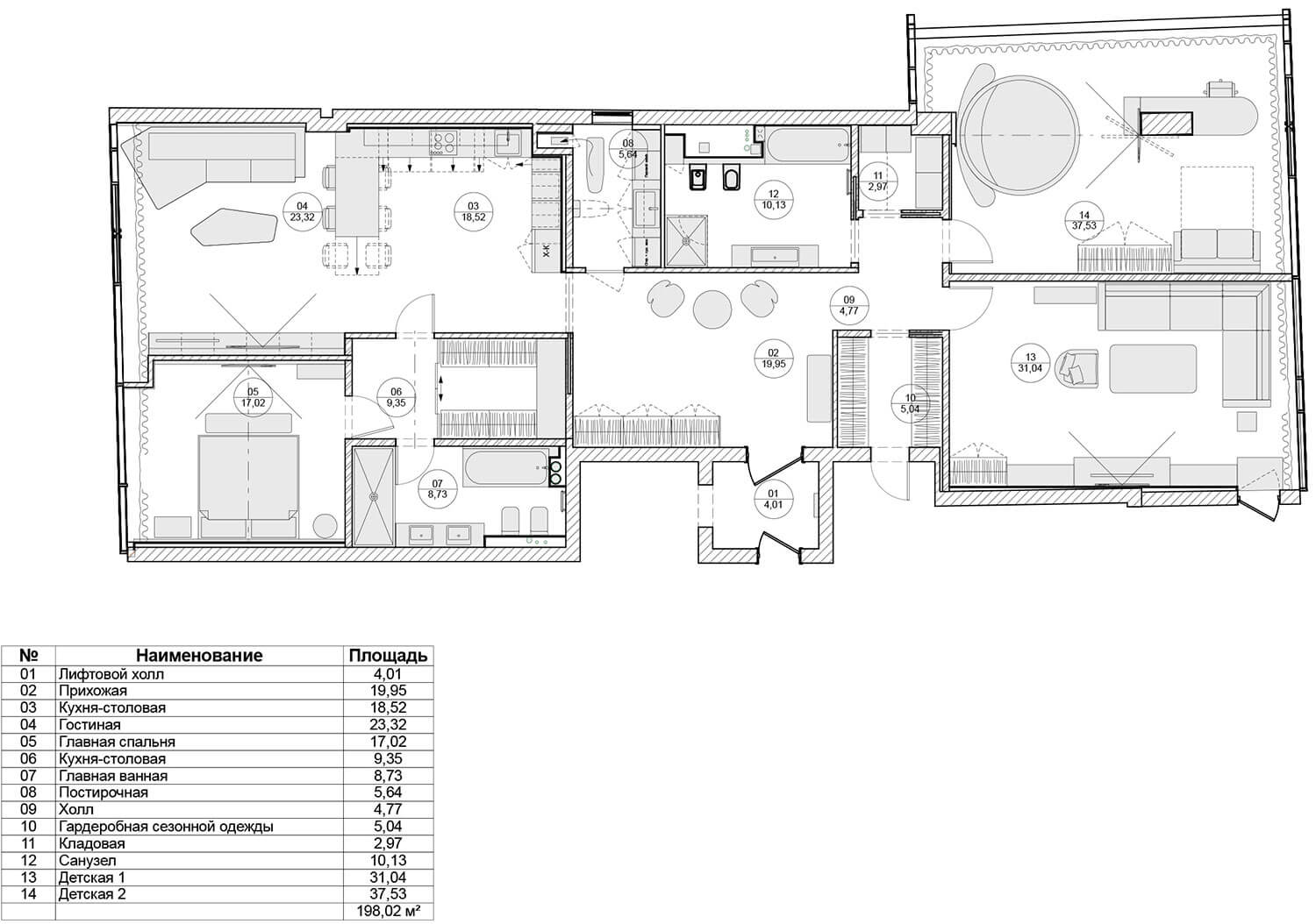
Квартира общей площадью 198 кв.м.
Интересная особенность — панорамные тонированные стекла по всему периметру и три входа в квартиру (главный и два эвакуационных). Интерьер строится на концепции роскошной элегантности: сочетание лаконичной геометрии со сложными фактурами в отделке — шпон эвкалипта, слэбы оникса, кожаные и замшевые панели, теплый блеск латуни.
Проработана сложная система подсветки и различные световые сценарии, интегрированы системы вентиляции и мультирум-акустики.
Встроенная мебель и стеновые панели — индивидуальное изготовление по эскизам архитекторов проекта.
Отзывы
Пока отзывов нет. Будьте первым.











