Множественный выбор
Выбрать номинацию

Современный загородный коттедж

Коттедж на одну-две семьи, выполненный в стиле хай-тек, сочетает в себе элегантные формы с эффективной планировкой помещений.

Белоснежный кирпич на фасаде контрастирует с зелеными оттенками елового леса, выступающего в качестве природного фона для постройки. Декоративные элементы, выполненные из темного дерева, прекрасно дополняют фасад.

Особое место в проекте уделено террасам и балконам. Просторные террасы располагают к умиротворенному настроению. Важное место в проекте играют оригинальные окна, которые придают зданию некую изюминку и шарм.

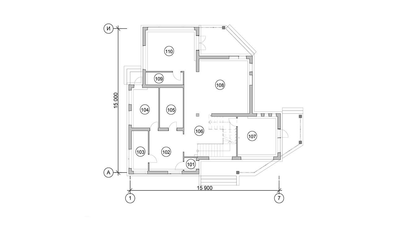
Экспликация помещений на отметке 0.000:
101 — тамбур 1,82 кв.м
102 — прихожая 15,2 кв.м
103 — гардероб 7,50 кв.м
104 — котельная 12,17 кв.м
105 — с/у 10,51 кв.м
106 — холл 15,74 кв.м
107 — спальня 18,06 кв.м
108 — гостиная 37,74 кв.м
109 — кладовая 5,2 кв.м
110 — кухня/столовая 23,22 кв.м
Общая площадь помещений на отметке 0.000 — 147,16 кв.м

Экспликация помещений на отметке +3.600:
201 — коридор 17,24 кв.м
202 — спальня 23,10 кв.м
203 — гардероб 5,47 кв.м
204 — гардероб 5,47 кв.м
205 — с/у 11,47 кв.м
206 — спальня 30,78 кв.м
207 — кабинет 30,78 кв.м
Общая площадь помещений на отметке +3.600 — 124,28 кв.м.

Выставка конкурсных проектов
ВЫСТАВКА КРАСИВЫЕ ДОМА - 2026

ФОТОГАЛЕРЕЯ
ЭКСПОЗИЦИИ
КОНКУРСНЫХ
ПРОЕКТОВ

КАК ЭТО БЫЛО
Выставка конкурсных проектов проходит дважды в год (Весна | Осень)

Отзывы

Можно использовать **жирный**, *курсив*, [ссылку](https://example.com), списки через - или 1.
Пока отзывов нет. Будьте первым.