Множественный выбор
Выбрать номинацию

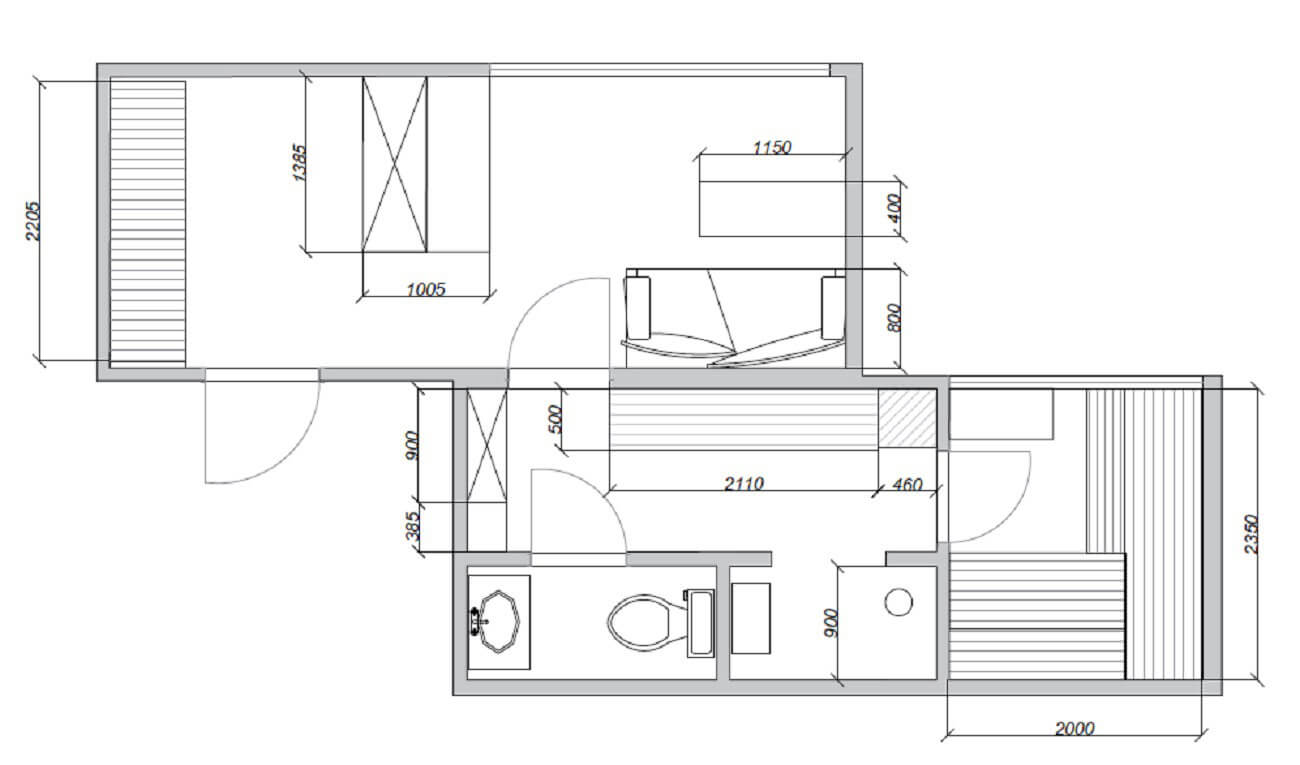
СПА-комплекс Адема

Дизайн проект СПА-комплекса предназначен для отдыха одного человека, для компании из 3-4 человек.

Спа-комплекс включает отделения:
1) Предбанник
2) Зона отдыха (с мини-кухней)
3) Коридор
4) Санузел
4) Душ
5) Парная

В проекте предусмотрены основные элементы для полноценного отдыха. Помещение, состоящее из двух контейнеров, соединенных друг с другом, может использоваться как небольшой загородный дом.

Площадь комплекса 26 кв. м

Интерьер разработан в скандинавском стиле

Стены отделаны вагонкой из канадского кедра и панелями МДФ. Полы облицованы керамогранитной плиткой. Укладка плитки формирует декоративный узор.

В зонах отдыха и парной предусмотрены панорамные окна.

Предбанник и комната отдыха разделены шкафом и кухонным гарнитуром, установленными задними стенками друг к другу. В комнате отдыха расположен трансформируемый диван (на нем можно спать) и откидной столик. Тут можно провести не только на пару часов, но и остаться на ночь.

Второй контейнер оборудован помещением парной душем и Мыльной с обливочным устройством, унитазом, раковиной и оборудованием для хранения и использования уходовой продукции.

Таким образом, разработанный дизайн-проект предлагает множество функциональных сценариев. Обладая сравнительно небольшими габаритными размерами, модульный комплекс может использоваться не только по своему прямому назначению, но как гостевой дом или дом для сезонного проживания.

Выставка конкурсных проектов
ВЫСТАВКА КРАСИВЫЕ ДОМА - 2026

ФОТОГАЛЕРЕЯ
ЭКСПОЗИЦИИ
КОНКУРСНЫХ
ПРОЕКТОВ

КАК ЭТО БЫЛО
Выставка конкурсных проектов проходит дважды в год (Весна | Осень)

Отзывы

Можно использовать **жирный**, *курсив*, [ссылку](https://example.com), списки через - или 1.
Пока отзывов нет. Будьте первым.