СПА-комплекс Катя
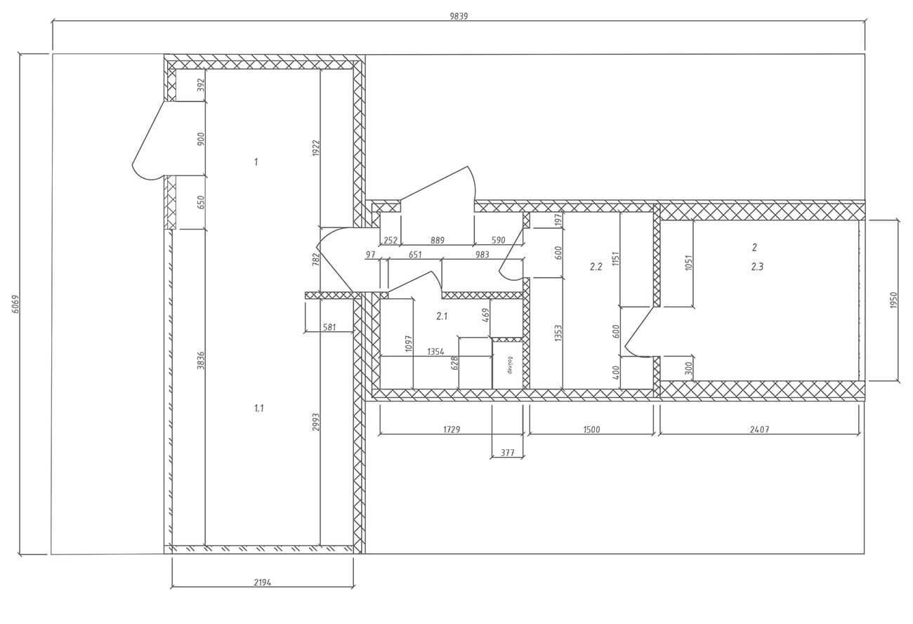
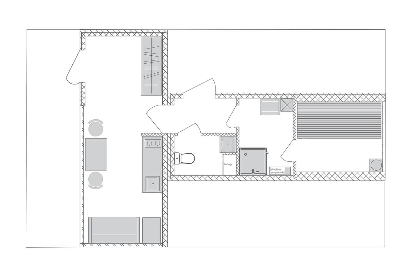
В помещении, состоящем из двух морских контейнеров 20 футов, размещен СПА-комплекс, включающий все необходимое для полноценного отдыха.
СПА-комплекс оснащен прихожей, комнатой отдыха, санузлом, душевой и парной. В санузле размещен бойлер, спрятанный во встроенный шкаф, в душевой находится обливное устройство. Стены и пол душевой и санузла облицованы широкоформатной плиткой. Помещение первого контейнера и парной облицованы деревянными панелями из липы. Встроенные потолочные светильник используются в качестве источника света. В парной в качестве освещения используются термостойкие ЛЕД-ленты, расположенные за спинкой и в стыках полок. Полки выполнены из канадского кедра.
Первый контейнер оборудован местами хранения, место отдыха оснащено небольшой кухней и обеденной зоной.











