СПА-комплекс Лида
Спа-комплекс изготовлен из морского контейнера 20 футов HC, внутреннее пространство которого теплоизолировано 100 мм пенополистиролом, а также а также оснащено вентиляцией, водоотводом и электричеством для функционального использования.
Фасад сооружения выполнен из бетонного декоративного орнамента, полости которого обшиты металлической каёмкой и деревянной вагонкой.
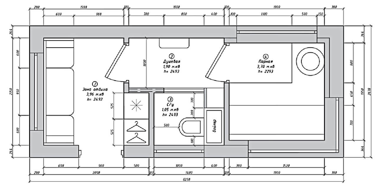
Внутреннее пространство разделено на 4 зоны. Зона отдыха: при входе в зону отдыха справа от двери находится компактный деревянный шкаф для вещей со встроенным холодильником и розетками для электроприборов. У окна расположена полка трансформер, которую при необходимости можно разложить в стол с 2двумя креслами или в спальное место.
Душевая зона. Помещение оборудовано обливным устройством и душевой лейкой. У двери в парную находятся встроенные полки для душевых принадлежностей.
Санузел. В целях экономии пространства в санузле установлена раздвижная дверь. В помещении оборудована инсталляция, над которой находится шкаф для бойлера.
Парная. При разработке проектного решения парной, был использован образно-ассоциативный метод проектирования, образ текучей лавы был выбран как источник вдохновения, поскольку этот природный феномен ассоциируется с теплым и уютным ощущением, что характерно для релаксации в парной. В данной зоне находится двухуровневая дизайнерская скамья, при свечении светодиодной LED подсветки внешне напоминающая потоки лавы. Ограждение для печи выполнено в форме вулкана. При подаче воды на печь образуется пар, который будет напоминать действующий вулкан. Стены украшены подсвеченной гималайской солью, формы которой повторяют формы окна.













