Спальня в стиле лофт
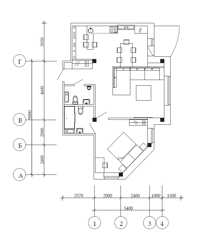
Спальня площадью 16 м² спроектирована для квартиры в стиле лофт. Несмотря на то, что комната отличается непрямоугольной конфигурацией, автору удалось получить интересный и в то же время эргономичный дизайн. Спальня имеет выходы в примыкающий к ней санузел и гостиную. Обе двери равноудалены от двуспальной кровати, что облегчает движение по комнате и проход в смежные помещения.
Благодаря удачному расположению окон обеспечена идеальная инсоляция организованного в спальне рабочего места и гардеробной зоны. Интерьерным акцентом помещения стала глухая стена, декорированная авангардным белым холстом и светильниками, стилизованными под прожекторы и размещенными под потолком.
Другое интересное решение — каркасные конструкции «под бетон», обрамляющие окна и «перетекающие» в шкаф и рабочий стол. Стена с дверью в санузел покрашена специальной черной краской под рисунки мелом. Для отделки также использованы паркет и кирпич.



