Стальное крыло
1.Легенда
Район Сочи и прилегающее к нему черноморское побережье имеют древнюю историю, о чём свидетельствуют археологические раскопки в регионе. Свои следы здесь оставили доантичные времена, античность, раннее и позднее Средневековье.
Сочинский маяк - одно из старейших сооружений города. На его свет шли суда древних цивилизаций и разных континентов.
В исторически неопределенный момент времени с целью изучения местности на свет маяка прибыли пять неизвестных кораблей. Экспедиция, не найдя пристань, села на мель и была вынуждена покинуть и оставить свои средства передвижения у подножья Маяка.
Со временем вода отступала, береговая линия увеличивалась, город развивался, а судна, утопающие в зелени, превратились в таинственные объекты города. Днём они отражают солнце, а ночью светятся мягким тёплым светом, вступая в диалог с Сочинским маяком.
Время и ход событий оставили свой след на металлической обшивке кораблей.
Поддавшись воздействию окружающей среды, один проржавел, другой потускнел, третий был обожжен, четвёртый выцвел, и лишь пятый остался в своём первозданном виде.
Легенда не является исторической справкой, это альтернативный художественный вымысел концепции возникновения жилой застройки.
2. Концепция
Пять вымышленных кораблей иной цивилизации по своей сути есть пять вилл на одной из древнейших улиц города, ведущей к морской пристани. Виллы находятся в историческом центре Сочи с видом на Чёрное море, гавань для яхт, сочинский морской вокзал.
200 метров до Чёрного моря и несколько минут до главного променада города, набережной «Маяк».
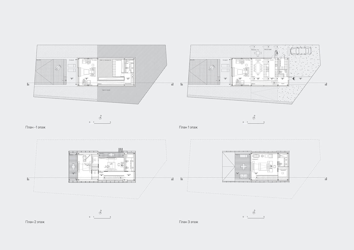
Как у каждого корабля есть имя, так и у наших объектов есть название - Steel wing (стальное крыло). Это отсылка к материалу и форме объекта. Форма даёт возможность поразмышлять какими были пришедшие к маяку корабли. Каждый корабль, севший на мель, частично погружён в землю. И это говорит о времени: событие произошло уже очень давно, земля успела подняться. Таким жестом мы связываем наш дом с крутым рельефом на участке. Отношение к перепаду высот подсказало, как устроить внутренне пространство. При входе в виллу мы попадаем в каскадно спускающееся по рельефу пространство гостиной. Это самая активная часть дома, где мы встречаем гостей и проводим большую часть времени.
Благодаря каскадной планировке, мы автоматически получаем зонирование, при этом не возводя дополнительных конструкций - перегородок. Четыре яруса - четыре функциональные зоны. Первый ярус - холл и гардероб. Второй - кухня. Третий - столовая. Четвёртый - гостиная. У каждой зоны есть своя связь с улицей. В хорошую погоду мы можем объединить зону открытого бассейна и гостиной в одну, тем самым стереть границы между внутренним и внешним пространством. Каждая гостиная имеет обзор на 360 градусов. Приватность обеспечивается рулонными шторами- «блэкаутами». На каждом участке с южной стороны растёт живая изгородь, которая тоже обеспечивает приватность между домами соседей. Из гостиной мы можем спуститься на минус первый этаж по пандусу. Там разместились: гостевой санузел, прачечная и зона хранения инвентаря такого, как: мангал, шезлонги, зонтики, лежаки, лыжи, сноуборд, и т.д. Второй и третий этаж виллы приобретают обособленность и являются пространствами только для хозяев. Это спальни, гардеробы и ванные комнаты. Все спальни имеют вид на море и свой собственный балкон или выход на террасу. Над террасой светопрозрачный навес из перфорированного метала. Перфорированный метал заходит в интерьер и это объединяет внутреннее и внешнее пространство. Под перфорированными панелями разведена система подсветки и освещения, которая даёт общий свет помещениям и одновременно является декоративной подсветкой фасада в темное время суток.
Все вышесказанное вместе делает дизайн вилл уникальным. Форма корабля даёт знаковость, узнаваемость и характер комплексу. Это приближает «Steel wing» к объекту искусства.
3. Дополнительные материалы
В этом блоке раскрываются детали проекта такие как: отделочные материалы в интерьере и экстерьере, озеленение, внутреннее освещение и наружная подсветка. Все примеры имеют степень условности и нуждаются в дополнительной проработке на следующей стадии проектирования. Окончательный выбор отделочных материалов полов и стен, мебели, освещения должен обсуждаться с будущим хозяином виллы. Отдельное внимание необходимо уделить ландшафтному озеленению и ландшафтному дизайну - подбору зелёных насаждений в соответствии с условиями их произрастания, установке малых архитектурных форм, устройству лестничных сходов, ограждений , которые не должны перекрывать виды соседним земельным участкам. Общая подсветка и интенсивность освещения территории всех вилл должна быть выполнена в едином стиле и рассчитана специализированной организацией- выбранным подрядчиком по свету.
Применяемые материалы
Кортен, черный окрашенный металл, белый окрашенный металл, бетон, алюминий стекло, дубовая доска.













