Старая добрая классика
Проект был разработан для большой семьи на западе Подмосковья.
Стиль дома - классика
Дом двухэтажный с цокольным и мансардным этажом
Цветовое решение: светло-бежевые стены с серой крышей и бежевым цоколем
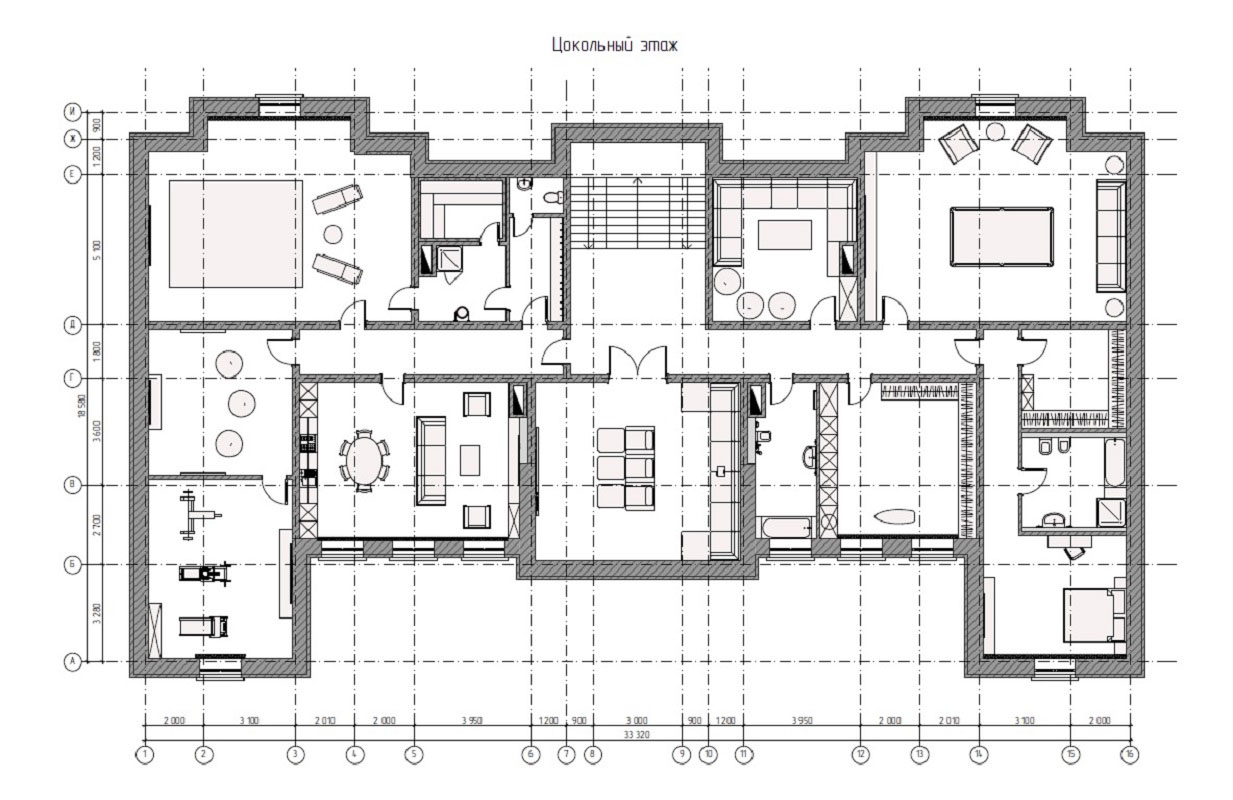
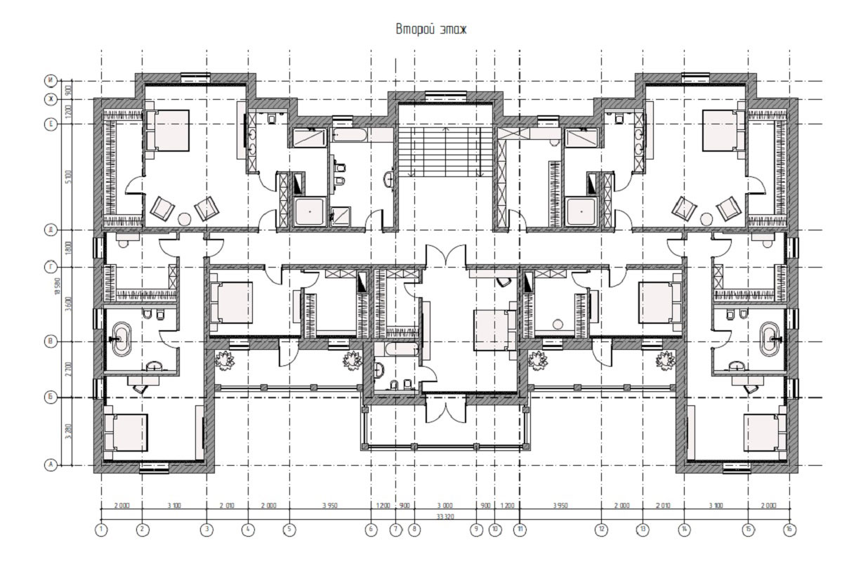
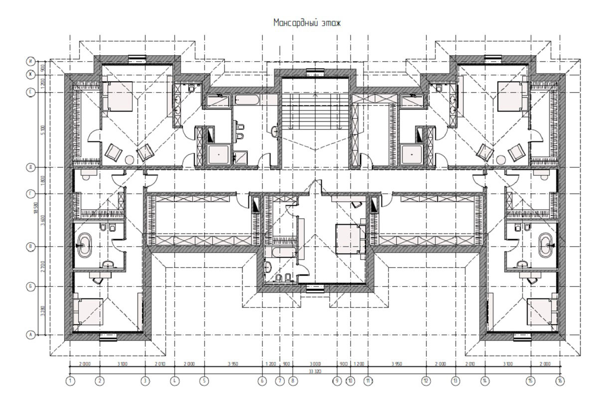
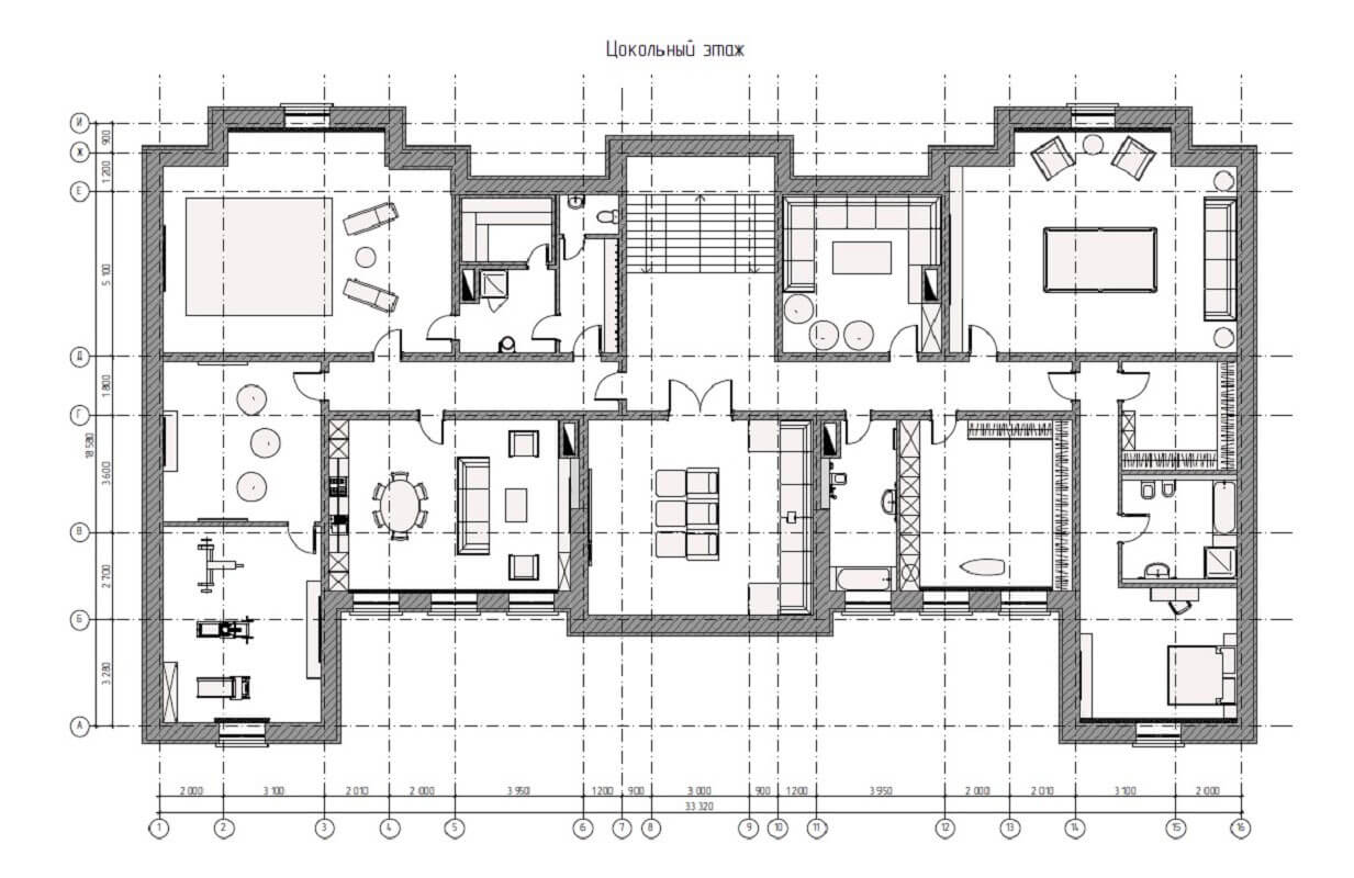
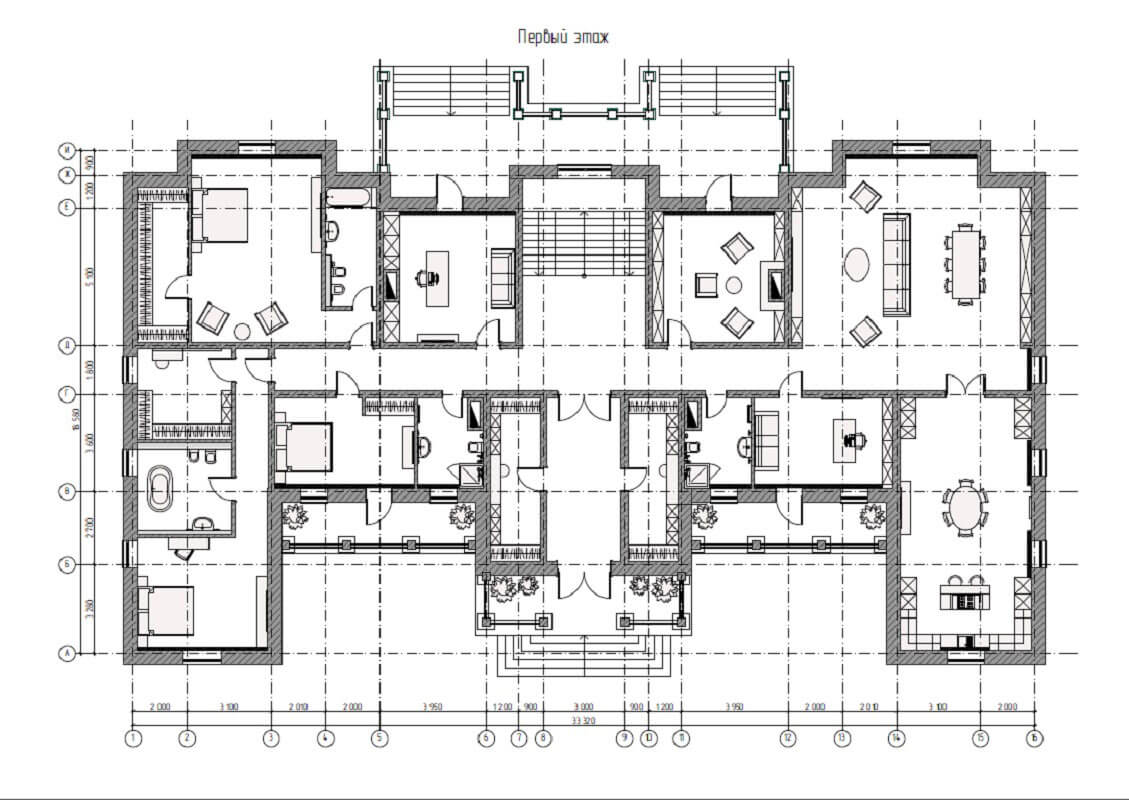
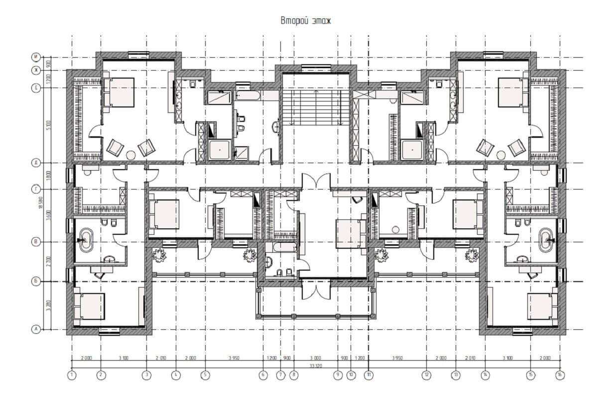
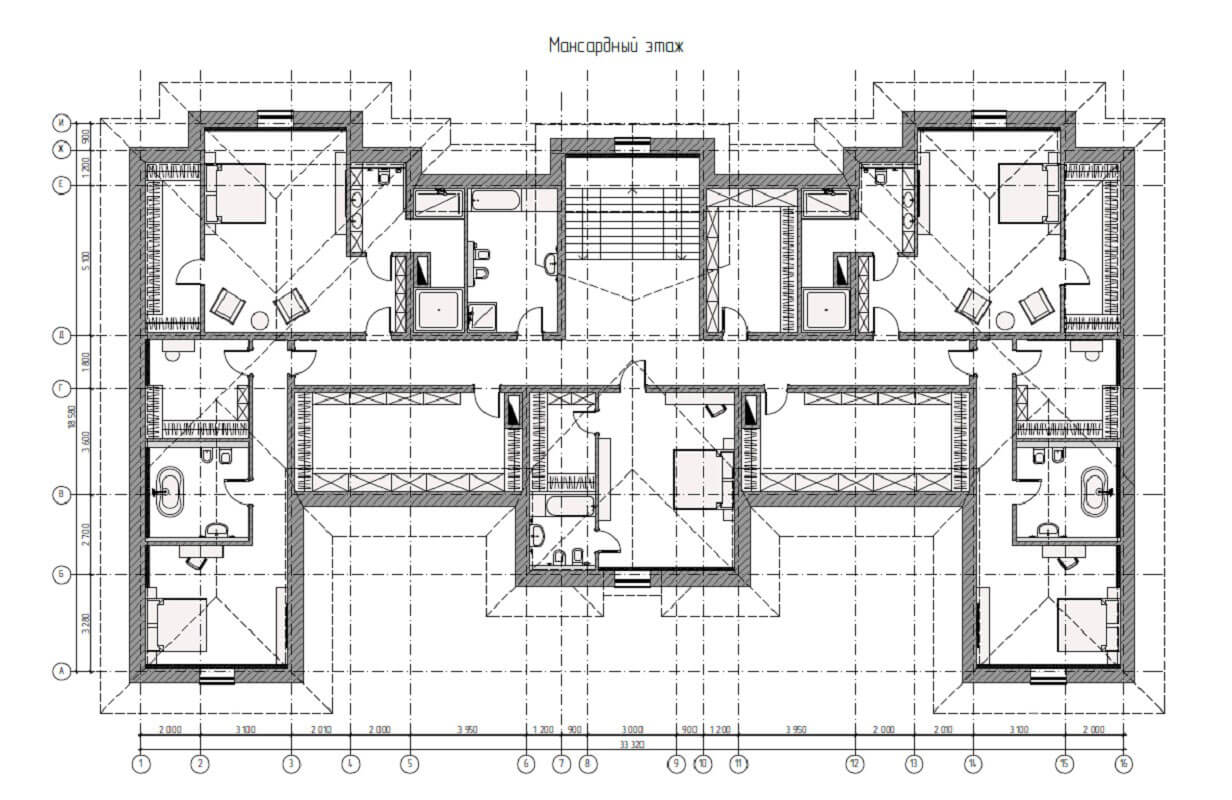
Планировочное решение:
на цокольном этаже: тренажерный зал, сауна с бассейном и комнатой отдыха, с.у., кинотеатр, бильярдная, кальянная, спальня для прислуги.
на 1 этаже: гостиная-столовая, кухня, кабинет, с.у., каминная, 3 спальные комнаты с с.у. и гардеробными
на 2 этаже: 7 спальных комнаты с с.у. и гардеробными
на мансардном этаже: 5 спальных комнаты с с.у. и гардеробными
Несущие конструкции:
фундамент и перекрытия - ж.б. плита
стены - керамические блоки
крыша - деревянный каркас
Фасады: цоколь - плитка, стены штукатурка
Отзывы
Пока отзывов нет. Будьте первым.
























