Множественный выбор
Выбрать номинацию

Старая добрая классика

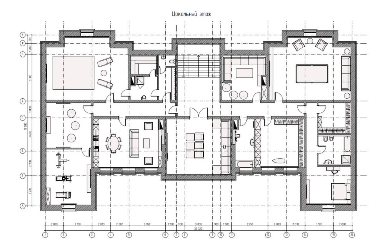
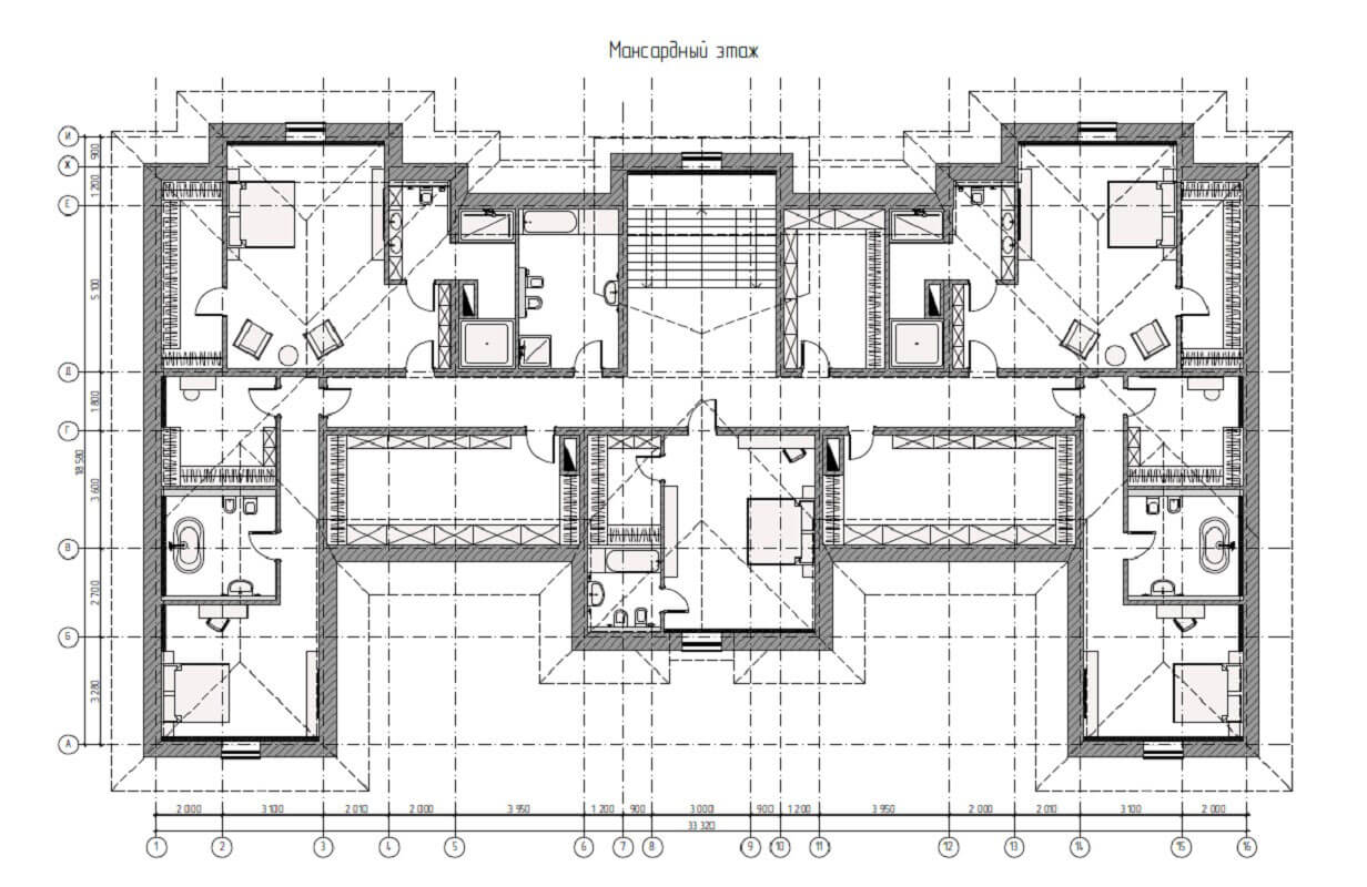
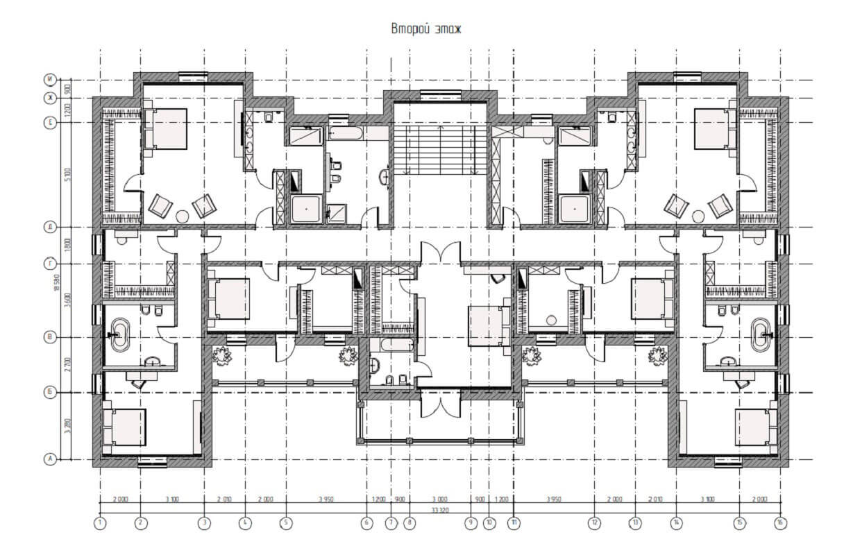
Проект был разработан для большой семьи на западе Подмосковья.
Стиль дома - классика
Дом двухэтажный с цокольным и мансардным этажом
Цветовое решение: светло-бежевые стены с серой крышей и бежевым цоколем

Планировочное решение:
на цокольном этаже: тренажерный зал, сауна с бассейном и комнатой отдыха, с.у., кинотеатр, бильярдная, кальянная, спальня для прислуги.
на 1 этаже: гостиная-столовая, кухня, кабинет, с.у., каминная, 3 спальные комнаты с с.у. и гардеробными
на 2 этаже: 7 спальных комнаты с с.у. и гардеробными
на мансардном этаже: 5 спальных комнаты с с.у. и гардеробными

Несущие конструкции:
фундамент и перекрытия - ж.б. плита
стены - керамические блоки
крыша - деревянный каркас
Фасады: цоколь - плитка, стены штукатурка

Выставка конкурсных проектов
ВЫСТАВКА КРАСИВЫЕ ДОМА - 2026

ФОТОГАЛЕРЕЯ
ЭКСПОЗИЦИИ
КОНКУРСНЫХ
ПРОЕКТОВ

КАК ЭТО БЫЛО
Выставка конкурсных проектов проходит дважды в год (Весна | Осень)

Отзывы

Можно использовать **жирный**, *курсив*, [ссылку](https://example.com), списки через - или 1.
Пока отзывов нет. Будьте первым.