Множественный выбор
Выбрать номинацию

Усадьба Гартенталь в Крыму

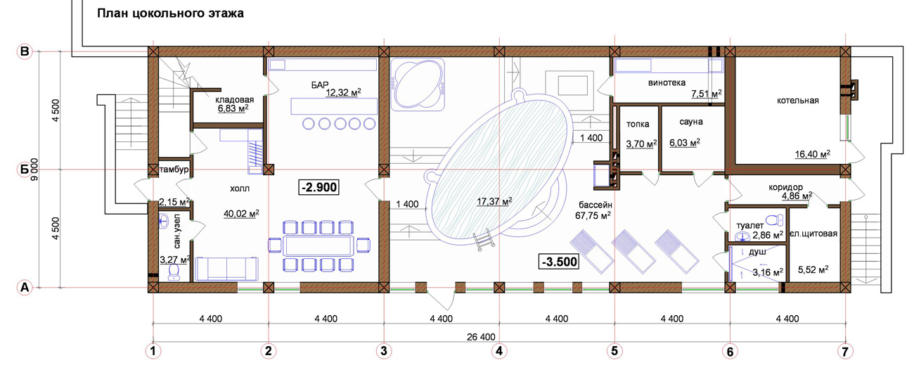
Здание жилого дома расположено на территории площадью 5 га, на которой размещены также вспомогательные здания и сооружения: гостевой дом, конюшня, ферма для животных, гостевой банный комплекс, летняя кухня, озеро и сад.

Жилой дом выполнен в немецком стиле фахверк с имитацией деревянных направляющих конструкций на стенах и состоит из четырех этажей. В цоколе расположены баня, комната отдыха с выходом на террасу, технические помещения.

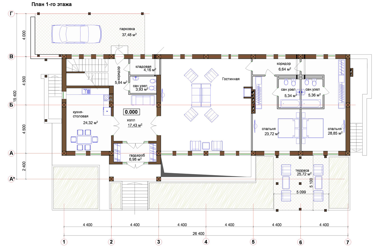
На первом этаже находятся кухня-столовая, гостиная и спальни, на втором и мансардном — только спальни. На каждом этаже также предусмотрены санузлы.

Технико-экономические показатели: общая площадь — 430 м², жилая площадь — 210 м², строительный объем — 1800 м³.

Выставка конкурсных проектов
ВЫСТАВКА КРАСИВЫЕ ДОМА - 2026

ФОТОГАЛЕРЕЯ
ЭКСПОЗИЦИИ
КОНКУРСНЫХ
ПРОЕКТОВ

КАК ЭТО БЫЛО
Выставка конкурсных проектов проходит дважды в год (Весна | Осень)

Отзывы

Можно использовать **жирный**, *курсив*, [ссылку](https://example.com), списки через - или 1.
Пока отзывов нет. Будьте первым.